Nabízíme k prodeji příjemný rodinný dům v oblíbené lokalitě města Kuřim, který je ideálním místem pro rodinný život v blízkosti přírody, a přitom s výbornou dostupností do Brna.
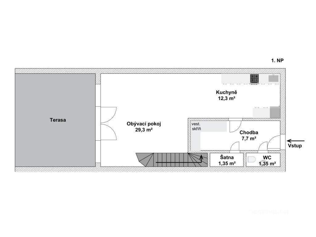
Dům o dispozici 4+kk byl zkolaudován v roce 2002 a prošel řadou modernizací. V přízemí najdete prostorný obývací pokoj propojený s kuchyňským koutem, šatnu a samostatnou toaletu. V patře se nachází tři ložnice, které poskytují dostatek prostoru a soukromí všem členům domácnosti. Celková užitná plocha domu činí 105 m² a každý detail zde byl navržen s ohledem na pohodlí a funkčnost.
Dům je pečlivě udržovaný a připravený k okamžitému nastěhování. V roce 2019 byla kompletně vyměněna okna za nová s trojskly, zateplení, fasáda a položena nová střešní krytina. O další komfort se postará nový plynový kondenzační kotel a moderní kuchyňská linka, obojí z roku 2023.
Součástí domu je příjemná terasa se zahradou, která poskytuje prostor pro relaxaci, dětské hry nebo letní grilování. Pozemek má celkovou výměru 252 m² a před domem se nachází praktické parkování na vlastním pozemku pod krytým přístřeškem.
Kuřim nabízí vynikající občanskou vybavenost – najdete zde školy, školky, obchody, zdravotnická zařízení, sportoviště i kulturní vyžití. Díky vlakovému spojení, autobusům i rychlému dojezdu autem je spojení do Brna naprosto bezproblémové.
Tento dům není jen nemovitost. Je to místo, kde budete tvořit nové vzpomínky, kam se budete rádi vracet a kde najdete opravdový domov.
Ráda Vás provedu osobně, ukážu všechny přednosti tohoto domu a zodpovím Vaše dotazy.
Neváhejte mě kontaktovat — možná právě tady začíná Váš nový příběh.
Pomocí naší hypoteční kalkulačky si můžete udělat orientační představu o výši měsíčních splátek hypotéky. O vše ostatní se pak postaráme my ve spolupráci s našimi obchodními partnery.
58 666 Kč
* Odhadovaná měsíční splátka vychází z výše úvěru Kč s pevnou úrokovou sazbou % po celou dobu trvání úvěru.
Uživatel serveru RealityMIX.cz (dále jen „Server“) dostupného na internetové adrese (URL) https://www.realitymix.cz, který provozuje společnost DALTEN media s.r.o., se sídlem Na Harfě 916/9a, Praha 9, 190 00, IČO: 271 35 306 (dále jen „Správce“) jako provozovateli tohoto Serveru uděluje svůj výslovný souhlas v souladu s ustanovením § 5 zákona č. 101/2000 Sb. O ochraně osobních údajů a o změně některých zákonů, v platném znění (dále jen „zákon o ochraně osobních údajů“), se zpracováním uživatelem poskytnutých osobních údajů a dalších dat.
Uživatel poskytuje Správci osobní údaje v rozsahu: jméno, příjmení, e-mailová adresa, telefonický kontakt a další data, a to z důvodu projeveného zájmu o nemovitost, kde prostřednictvím služby Serveru Správce osloví Uživatel inzerenta uvedeného v detailu
nemovitosti - Nemovision reality s.r.o. (IČ 08351538) se zájmem o jeho služby.
Uživatel tyto osobní údaje poskytuje dobrovolně a bere na vědomí, že součástí služeb Správce, které Správce Uživateli poskytuje, je vyhledání všech Uživateli vyhovujících (dle parametrů - cena, typ nemovitosti, lokalita atd.) nemovitostí. Správce za tímto účelem provozuje aplikace Hlídací pes a newsletter. Tyto služby je možné z každého zaslaného emailu odhlásit. Souhlas se zpracováním osobních údajů Uživatel poskytuje Správci na dobu neurčitou s tím, že svůj udělený souhlas může Uživatel kdykoliv na drese správce info@realitymix.cz odvolat. Správce garantuje Uživateli i další práva uvedené v ustanovení §11 a §21 zákoba č. 101/200 Sb. Ve znění pozdějších předpisů.
Více informací o zpracování údajů získáte zde (realitymix.cz/zasady-ochrany-osobnich-udaju)