Prémiová investiční příležitost v srdci Kutné Hory
Hotová ubytovací jednotka s výnosovým potenciálem, moderním a efektivním způsobem využitelnosti.
Nabízíme k prodeji nově dokončenou ubytovací jednotku v historickém centru města Kutná Hora, na adrese Nádražní 631/3 – Vnitřní Město.
Jednotka je vedena v katastru nemovitostí jako jiný nebytový prostor a je plně připravena k okamžitému spuštění krátkodobých pronájmů.
Dispozice a standard
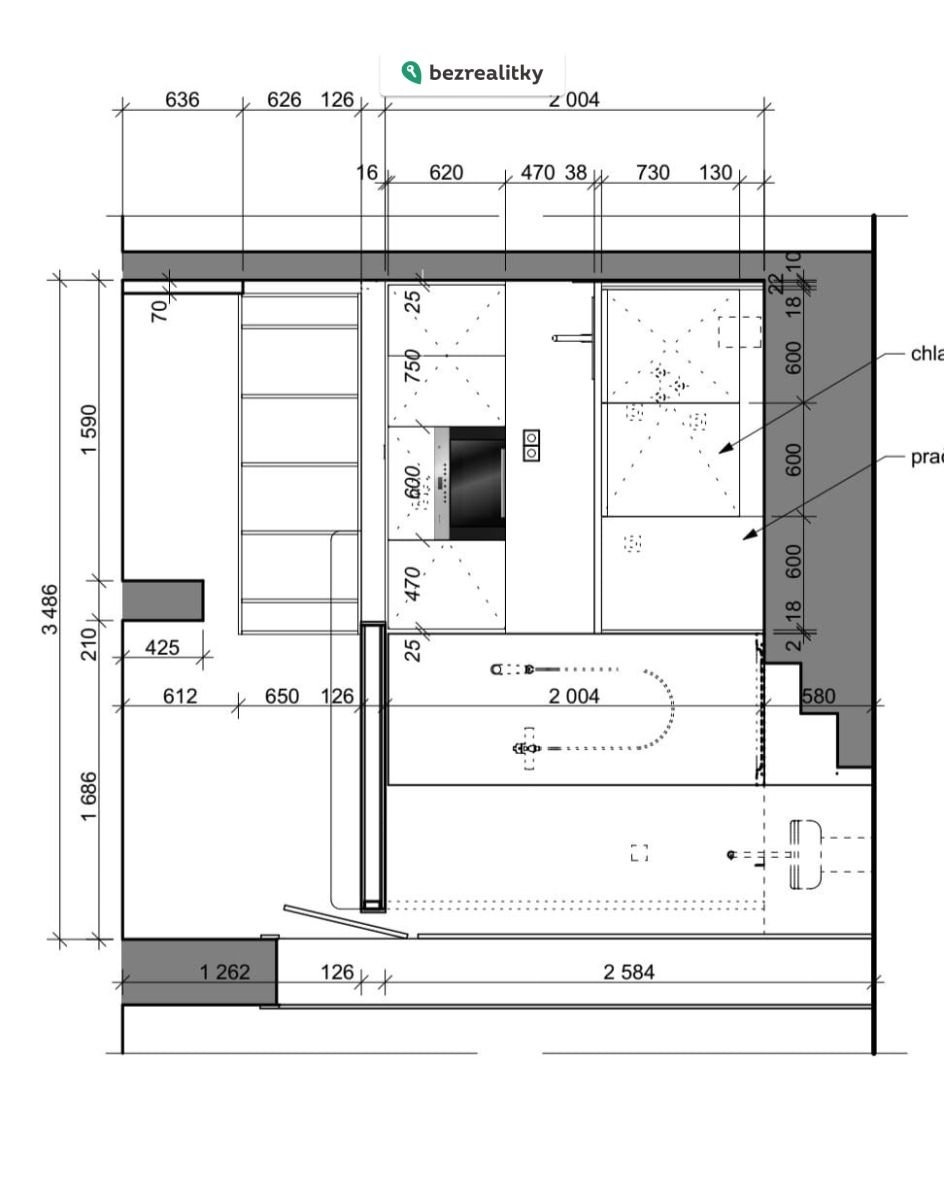
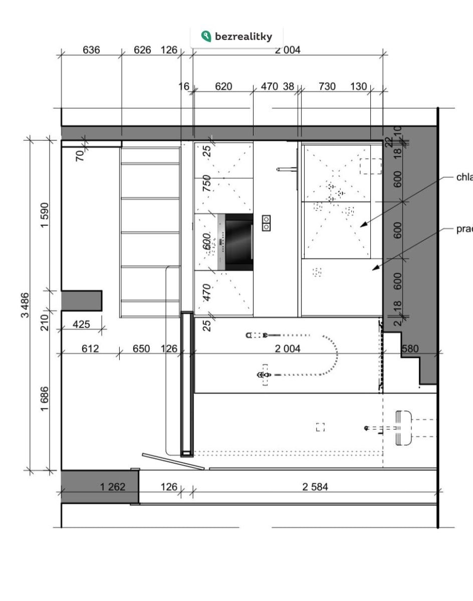
Celková plocha cca
cca 8,5 m² hlavní obytná část,
cca 7,5 m² galerie / spací prostor se sníženým stropem (cca 125 cm)
Kompletně nově dokončeno,
nové elektrické spotřebiče
lednice,vestavěná mikrovlnná trouba Whirlpool.
Připraveno bez dalších investic
ke krátkodobému pronájmu.
Historické centrum Kutné Hory patří mezi turisticky stabilní lokality s celoroční poptávkou.
Proč tato investice dává smysl?
Nízké pořizovací i provozní náklady
malometrážní jednotky mají nejvyšší procentuální výnos
Turisticky silná lokalita (UNESCO)
Možnost osobního využití mezi pronájmy.
Okamžitý start bez rekonstrukce
Tato jednotka představuje efektivní nástroj pro investory hledající vyšší zhodnocení než u tradičních nájmů nebo konzervativních finančních produktů.
Nemovitost je připravena k okamžitému užívání a díky své kvalitní realizaci a současnému designu pro toho kdo hledá praktické a funkční řešení pro podnikatelské účely či kreativní činnost.
Díky dostupnosti parkovacího místa a výbornému umístění, včetně energetického štítku třídy G.
Pro bližší informace a domluvení případné prohlídky mne můžete kontaktovat / komunikační platformu. Tato nemovitost je určena výhradně přímým zájemcům o koupi. Na inzerát můžete také reagovat přímo na webu Bezrealitky.
Pomocí naší hypoteční kalkulačky si můžete udělat orientační představu o výši měsíčních splátek hypotéky. O vše ostatní se pak postaráme my ve spolupráci s našimi obchodními partnery.
7 085 Kč
* Odhadovaná měsíční splátka vychází z výše úvěru Kč s pevnou úrokovou sazbou % po celou dobu trvání úvěru.
reklama
reklama
Mapa
* Umístění na mapě je na základě GPS informací dodaných realitní kanceláří.
* Pozice na mapě je pouze orientační.
Souhlas se zpracováním osobních údajů
Uživatel serveru RealityMIX.cz (dále jen „Server“) dostupného na internetové adrese (URL) https://www.realitymix.cz, který provozuje společnost DALTEN media s.r.o., se sídlem Na Harfě 916/9a, Praha 9, 190 00, IČO: 271 35 306 (dále jen „Správce“) jako provozovateli tohoto Serveru uděluje svůj výslovný souhlas v souladu s ustanovením § 5 zákona č. 101/2000 Sb. O ochraně osobních údajů a o změně některých zákonů, v platném znění (dále jen „zákon o ochraně osobních údajů“), se zpracováním uživatelem poskytnutých osobních údajů a dalších dat.
Uživatel poskytuje Správci osobní údaje v rozsahu: jméno, příjmení, e-mailová adresa, telefonický kontakt a další data, a to z důvodu projeveného zájmu o nemovitost, kde prostřednictvím služby Serveru Správce osloví Uživatel inzerenta uvedeného v detailu
nemovitosti - Bezrealitky s.r.o. (IČ 08063168) se zájmem o jeho služby.
Uživatel tyto osobní údaje poskytuje dobrovolně a bere na vědomí, že součástí služeb Správce, které Správce Uživateli poskytuje, je vyhledání všech Uživateli vyhovujících (dle parametrů - cena, typ nemovitosti, lokalita atd.) nemovitostí. Správce za tímto účelem provozuje aplikace Hlídací pes a newsletter. Tyto služby je možné z každého zaslaného emailu odhlásit. Souhlas se zpracováním osobních údajů Uživatel poskytuje Správci na dobu neurčitou s tím, že svůj udělený souhlas může Uživatel kdykoliv na drese správce info@realitymix.cz odvolat. Správce garantuje Uživateli i další práva uvedené v ustanovení §11 a §21 zákoba č. 101/200 Sb. Ve znění pozdějších předpisů.
Více informací o zpracování údajů získáte zde (realitymix.cz/zasady-ochrany-osobnich-udaju)