Dvougenerační rodinný dům 6+2, pozemek 778m2, Květnice
Upozornění: Tato nabídka je rezervována konkrétním zájemcem a v rezervační lhůtě není k dispozici!
Exkluzivně doporučujeme ke koupi prostorný dvoug enerační rodinný dům o dispozici 6+2 (celková dispozice je dokonce 7+2 i s pracovnou či pokojem pro hosty), který se nachází v klidné obci Květnice, jen 20 minut jízdy od centra Prahy. Dům je ideální pro vícegenerační bydlení, kombinaci bydlení a podnikání nebo pro rodinu, která hledá dostatek prostoru a soukromí.
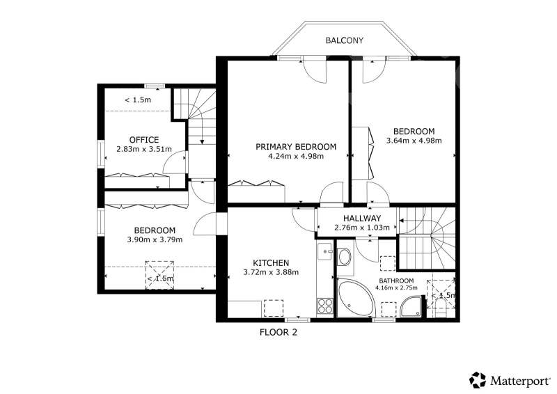
Celková podlahová plocha domu je 194 m2. Dům má dvě samostatné bytové jednotky, každá s vlastním vstupem, koupelnou a toaletou. Jedna koupelna je vybavena sprchovým koutem, druhá rohovou vanou a taktéž sprchovým koutem. Dispozičně je nemovitost velmi praktická a umožňuje pohodlné soužití dvou domácností bez omezení soukromí.
Pozemek o výměře 778 m2 nabízí upravenou zahradu s plně vzrostlou zelení, krytý bazénem se slanou vodou, protiproudem a tepelným čerpadlem a samozřejmě zahradní domek. Vjezd na pozemek zajišťuje elektrická brána na dálkové ovládání, parkování je možné přímo na pozemku.
Technický stav domu je velmi dobrý. Objekt je zděný, napojený na obecní vodovod, kanalizaci a elektřinu (230/400 V + plyn je na hranici pozemku). Vytápění je řešené tepelným čerpadlem pohánějící vyspělé fancoily, které nejen v zimě topí, ale v léta naopak zase chladí. Plastová okna zajišťují dobré tepelně-izolační vlastnosti. Krbová vložka už jen dokresluje příjemnou atmosféru.
Internet je aktuálně formou ADSL, ale v přípravě je přivedené optického vlákna.
Květnice je vyhledávaná lokalita s klidným rezidenčním charakterem. Obec je dobře dostupná z Prahy jak autem, tak hromadnou dopravou. V místě se nachází základní občanská vybavenost, širší nabídku služeb poskytují sousední Úvaly a Říčany.
Dopravní spojení:
- autobusová linka 391 - přímé spojení do Klánovic a Úval
- vlakové spojení z Úval nebo Klánovic do centra Prahy
- autem cca 20 minut do centra města nebo na Černý Most
Shrnutí hlavních výhod:
- dvě samostatné bytové jednotky
- celková dispozice 6+2 (7+2)
- bazén se slanou vodou a zastřešením
- vzrostlá a udržovaná zahrada
- elektrická vjezdová brána
- možnost vícegeneračního bydlení nebo kombinace s podnikáním
- výborná dostupnost do Prahy
Nemovitost je připravena k okamžitému nastěhování bez nutnosti větších investic. Vhodná pro rodiny, které hledají prostor, klid a výbornou dostupnost města.
V případě zájmu o prohlídku nás neváhejte kontaktovat.
Pomocí naší hypoteční kalkulačky si můžete udělat orientační představu o výši měsíčních splátek hypotéky. O vše ostatní se pak postaráme my ve spolupráci s našimi obchodními partnery.
72 837 Kč
* Odhadovaná měsíční splátka vychází z výše úvěru Kč s pevnou úrokovou sazbou % po celou dobu trvání úvěru.
Uživatel serveru RealityMIX.cz (dále jen „Server“) dostupného na internetové adrese (URL) https://www.realitymix.cz, který provozuje společnost DALTEN media s.r.o., se sídlem Na Harfě 916/9a, Praha 9, 190 00, IČO: 271 35 306 (dále jen „Správce“) jako provozovateli tohoto Serveru uděluje svůj výslovný souhlas v souladu s ustanovením § 5 zákona č. 101/2000 Sb. O ochraně osobních údajů a o změně některých zákonů, v platném znění (dále jen „zákon o ochraně osobních údajů“), se zpracováním uživatelem poskytnutých osobních údajů a dalších dat.
Uživatel poskytuje Správci osobní údaje v rozsahu: jméno, příjmení, e-mailová adresa, telefonický kontakt a další data, a to z důvodu projeveného zájmu o nemovitost, kde prostřednictvím služby Serveru Správce osloví Uživatel inzerenta uvedeného v detailu
nemovitosti - Bidli reality, a.s. (IČ 06790763) se zájmem o jeho služby. Tato společnost je součástí seskupení/sítě/franšízového modelu realitních kanceláří, jejich seznam můžete zobrazit kliknutím na tento odkaz.
Hypocentrum modré pyramidy - Praha (IČ ) , Hypocentrum modré pyramidy - Brno (IČ ) , Hypocentrum Modré pyramidy - Hradec Králové (IČ ) , Hypocentrum Modré pyramidy - České Budějovice (IČ ) , Hypocentrum Modré pyramidy - Pardubice (IČ ) , Hypocentrum Modré pyramidy - Plzeň (IČ ) , Hypocentrum Modré pyramidy - Ústí nad Labem (IČ ) , Hypocentrum Modré pyramidy - Ostrava (IČ ) , Hypocentrum Modré pyramidy - Olomouc (IČ ) , Bidli reality, a.s. (IČ 06790763)
Uživatel tyto osobní údaje poskytuje dobrovolně a bere na vědomí, že součástí služeb Správce, které Správce Uživateli poskytuje, je vyhledání všech Uživateli vyhovujících (dle parametrů - cena, typ nemovitosti, lokalita atd.) nemovitostí. Správce za tímto účelem provozuje aplikace Hlídací pes a newsletter. Tyto služby je možné z každého zaslaného emailu odhlásit. Souhlas se zpracováním osobních údajů Uživatel poskytuje Správci na dobu neurčitou s tím, že svůj udělený souhlas může Uživatel kdykoliv na drese správce info@realitymix.cz odvolat. Správce garantuje Uživateli i další práva uvedené v ustanovení §11 a §21 zákoba č. 101/200 Sb. Ve znění pozdějších předpisů.
Více informací o zpracování údajů získáte zde (realitymix.cz/zasady-ochrany-osobnich-udaju)