Hledáte byt v Ledči nad Sázavou, kam se můžete rovnou nastěhovat bez dalších investic a každý den si užívat krásné bydlení?
Nabízíme k prodeji byt o dispozici 2+1 v ulici Na Sibiři v Ledči nad Sázavou, který nabízí příjemné a prakticky řešené bydlení.
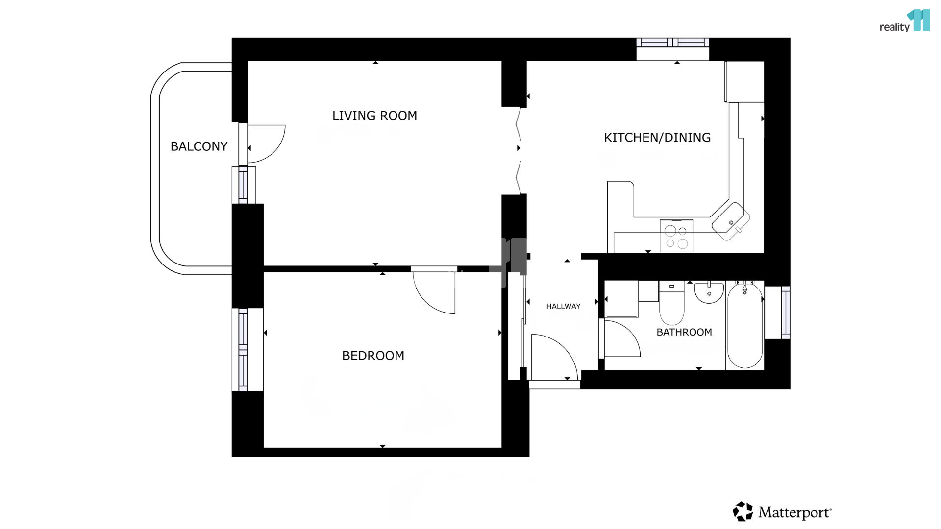
Dispozice bytu je navržena tak, aby nabídla pohodlné a praktické bydlení na užitné ploše 47,3 m². Najdete zde vstupní chodbu, koupelnu s WC, prostornou kuchyni, obývací pokoj i samostatnou ložnici, takže každý prostor má své jasné využití. Příjemným benefitem je také balkón o velikosti 4 m², kde si můžete dopřát čerstvý vzduch a chvíle klidu kdykoliv během dne. K bytu dále náleží dva sklepy o velikosti 5,05 m² a 1,40 m², které nabídnou dostatek úložného prostoru pro všechny vaše potřeby. Za domem navíc najdete dostatek parkovacích míst, což vám výrazně usnadní každodenní fungování.
Ledeč nad Sázavou leží v srdci Vysočiny a nabízí ideální kombinaci klidného bydlení a kompletní občanské vybavenosti. Najdete zde mateřské i základní školy, obchody, lékaře, restaurace i sportovní zázemí. Okolí města je doslova protkané krásnou přírodou – ať už se vydáte na cyklostezku podél řeky Sázavy, vyrazíte na procházku do přírodní rezervace Stvořidla, nebo se projdete na vrchol Melechov, vždy budete mít přírodu na dosah ruky. Dominantou města je navíc hrad, který dotváří jedinečnou atmosféru celého místa.
K dispozici máme také 3D virtuální prohlídku, díky které si můžete byt projít z pohodlí domova. Na vyžádání ji velmi rádi zašleme.
Zaujal vás tento byt?
Neváhejte mě kontaktovat. Ev. číslo: 28122.
Pomocí naší hypoteční kalkulačky si můžete udělat orientační představu o výši měsíčních splátek hypotéky. O vše ostatní se pak postaráme my ve spolupráci s našimi obchodními partnery.
14 130 Kč
* Odhadovaná měsíční splátka vychází z výše úvěru Kč s pevnou úrokovou sazbou % po celou dobu trvání úvěru.
Prodáváte nemovitost a potřebujete zjistit její reálnou hodnotu?
Uživatel serveru RealityMIX.cz (dále jen „Server“) dostupného na internetové adrese (URL) https://www.realitymix.cz, který provozuje společnost DALTEN media s.r.o., se sídlem Na Harfě 916/9a, Praha 9, 190 00, IČO: 271 35 306 (dále jen „Správce“) jako provozovateli tohoto Serveru uděluje svůj výslovný souhlas v souladu s ustanovením § 5 zákona č. 101/2000 Sb. O ochraně osobních údajů a o změně některých zákonů, v platném znění (dále jen „zákon o ochraně osobních údajů“), se zpracováním uživatelem poskytnutých osobních údajů a dalších dat.
Uživatel poskytuje Správci osobní údaje v rozsahu: jméno, příjmení, e-mailová adresa, telefonický kontakt a další data, a to z důvodu projeveného zájmu o nemovitost, kde prostřednictvím služby Serveru Správce osloví Uživatel inzerenta uvedeného v detailu
nemovitosti - Reality 11 (IČ 29132886) se zájmem o jeho služby. Tato společnost je součástí seskupení/sítě/franšízového modelu realitních kanceláří, jejich seznam můžete zobrazit kliknutím na tento odkaz.
Dumrealit.cz (IČ 00537861) , HOME 4 PEOPLE (IČ 29132886) , Reality 11 (IČ 29132886) , REAL ESTATE CZECH REPUBLIC a.s. (IČ 29132886) , Národní Realitní Holding a.s. (IČ 02918897)
Uživatel tyto osobní údaje poskytuje dobrovolně a bere na vědomí, že součástí služeb Správce, které Správce Uživateli poskytuje, je vyhledání všech Uživateli vyhovujících (dle parametrů - cena, typ nemovitosti, lokalita atd.) nemovitostí. Správce za tímto účelem provozuje aplikace Hlídací pes a newsletter. Tyto služby je možné z každého zaslaného emailu odhlásit. Souhlas se zpracováním osobních údajů Uživatel poskytuje Správci na dobu neurčitou s tím, že svůj udělený souhlas může Uživatel kdykoliv na drese správce info@realitymix.cz odvolat. Správce garantuje Uživateli i další práva uvedené v ustanovení §11 a §21 zákoba č. 101/200 Sb. Ve znění pozdějších předpisů.
Více informací o zpracování údajů získáte zde (realitymix.cz/zasady-ochrany-osobnich-udaju)