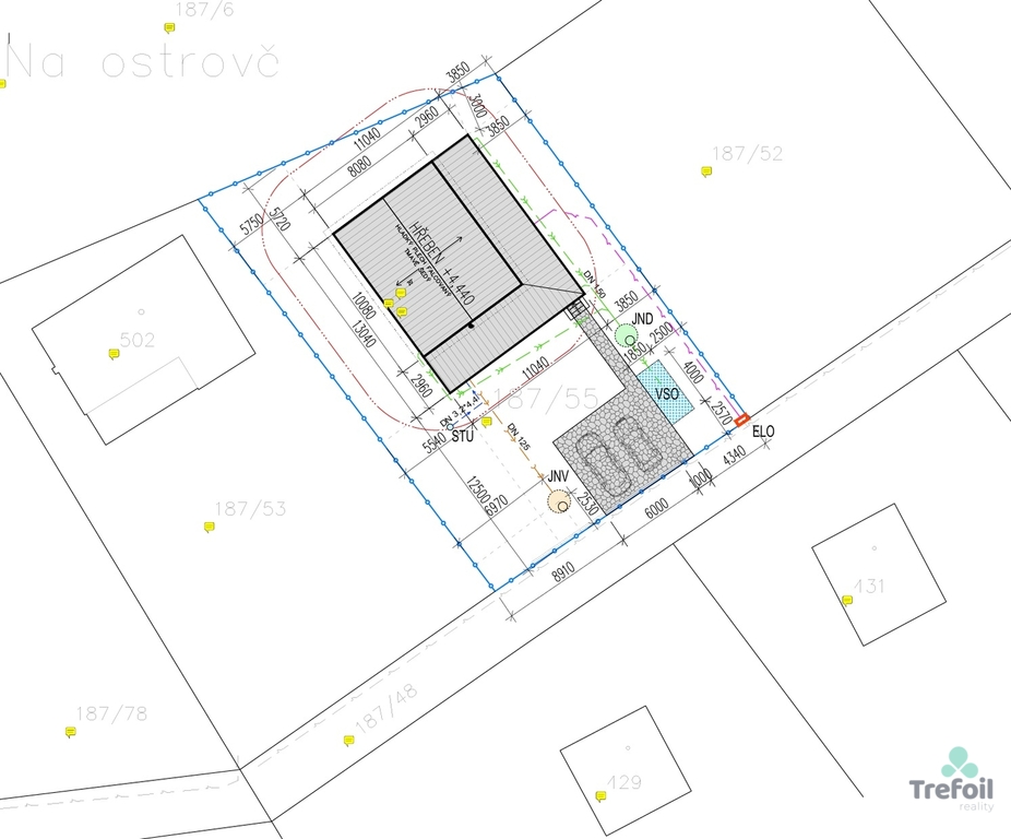
Pozemek s hotovým projektem domu a stavebním povolením – Ledečko u Sázavy, 621 m²
Hledáte místo, kde můžete začít stavět hned?
Nabízíme pozemek o výměře 621 m² v klidné části obce Ledečko (okres Kutná Hora) – jen pár minut od řeky Sázavy.
Součástí nabídky je kompletní projekt přízemního domu a platné stavební povolení, takže se můžete pustit do výstavby okamžitě, bez zdlouhavého papírování.
Na pozemku je přivedena elektřina. Je nutné vybudovat vlastní studnu a septik. Přístup je po obecní komunikaci.
???? Projekt domu
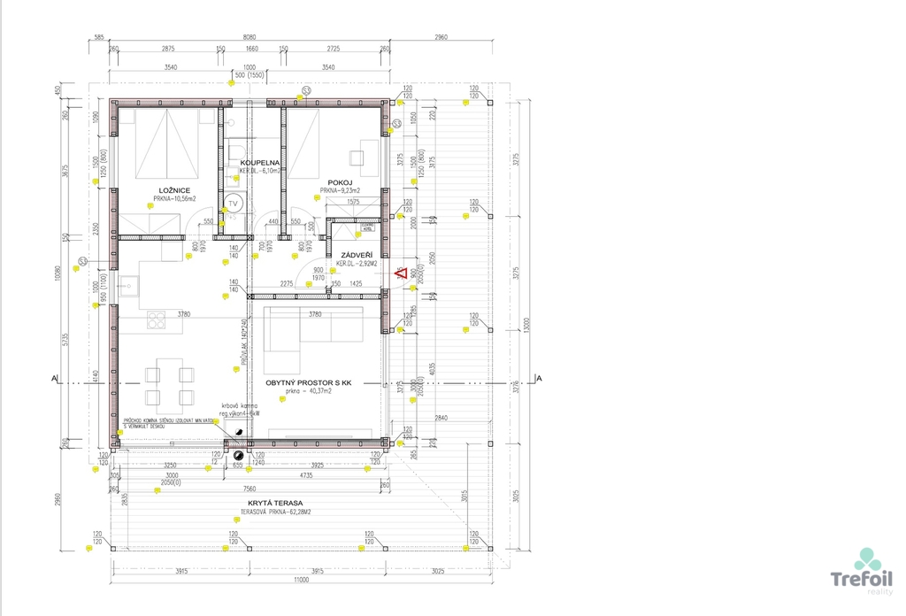
Součástí nabídky je projekt moderní dřevostavby s podlahovým vytápěním a elektrokotlem.
Zastavěná plocha činí 142 m² (včetně terasy).
Dispozice:
Obývací pokoj s kuchyňským koutem – 40,4 m², 2 ložnice, koupelna, zádveří
Terasa kolem jižní a západní části domu – 61 m²
???? Lokalita
Ledečko leží v malebném prostředí Posázaví, zhruba 50 km od Prahy.
V obci je železniční stanice s přímým spojením do Prahy, což zajišťuje pohodlné dojíždění.
V blízkosti se nachází města Sázava (7 km) a Rataje nad Sázavou (3 km) s veškerou občanskou vybaveností.
Okolí nabízí turistiku, cyklostezky, vodní sporty i klid pro odpočinek.
Ledečko je ideální volbou pro ty, kteří hledají klidné bydlení v přírodě, aniž by se vzdali komfortu města.
Pomocí naší hypoteční kalkulačky si můžete udělat orientační představu o výši měsíčních splátek hypotéky. O vše ostatní se pak postaráme my ve spolupráci s našimi obchodními partnery.
10 081 Kč
* Odhadovaná měsíční splátka vychází z výše úvěru Kč s pevnou úrokovou sazbou % po celou dobu trvání úvěru.
Uživatel serveru RealityMIX.cz (dále jen „Server“) dostupného na internetové adrese (URL) https://www.realitymix.cz, který provozuje společnost DALTEN media s.r.o., se sídlem Na Harfě 916/9a, Praha 9, 190 00, IČO: 271 35 306 (dále jen „Správce“) jako provozovateli tohoto Serveru uděluje svůj výslovný souhlas v souladu s ustanovením § 5 zákona č. 101/2000 Sb. O ochraně osobních údajů a o změně některých zákonů, v platném znění (dále jen „zákon o ochraně osobních údajů“), se zpracováním uživatelem poskytnutých osobních údajů a dalších dat.
Uživatel poskytuje Správci osobní údaje v rozsahu: jméno, příjmení, e-mailová adresa, telefonický kontakt a další data, a to z důvodu projeveného zájmu o nemovitost, kde prostřednictvím služby Serveru Správce osloví Uživatel inzerenta uvedeného v detailu
nemovitosti - Trefoil Reality, s.r.o. (IČ 06814972) se zájmem o jeho služby.
Uživatel tyto osobní údaje poskytuje dobrovolně a bere na vědomí, že součástí služeb Správce, které Správce Uživateli poskytuje, je vyhledání všech Uživateli vyhovujících (dle parametrů - cena, typ nemovitosti, lokalita atd.) nemovitostí. Správce za tímto účelem provozuje aplikace Hlídací pes a newsletter. Tyto služby je možné z každého zaslaného emailu odhlásit. Souhlas se zpracováním osobních údajů Uživatel poskytuje Správci na dobu neurčitou s tím, že svůj udělený souhlas může Uživatel kdykoliv na drese správce info@realitymix.cz odvolat. Správce garantuje Uživateli i další práva uvedené v ustanovení §11 a §21 zákoba č. 101/200 Sb. Ve znění pozdějších předpisů.
Více informací o zpracování údajů získáte zde (realitymix.cz/zasady-ochrany-osobnich-udaju)