Toužíte po místě, kde načerpáte energii, obklopeni přírodou a přitom s výbornou dostupností do Prahy?
Pak pro vás máme ideální nabídku zděná chata 2+kk o užitné ploše 45 m, nacházející se v klidné lokalitě Břežany u Lešan.
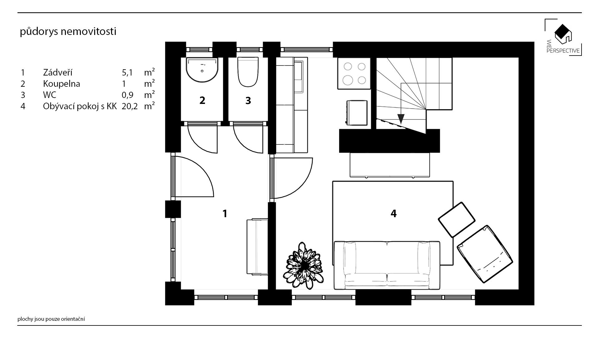
Chata má zcela novou koupelnu vybavenou sprchovým koutem, WC a umyvadlem, což výrazně zvyšuje komfort jejího využívání a dává možnost pohodlného pobytu během celého roku.
Pozemek o rozloze 967 m nabízí dostatek prostoru pro zahradničení, relaxaci i rodinné aktivity. Vzrostlá zeleň a malebná přírodní scenérie vytvářejí harmonické prostředí pro odpočinek po celý rok.
Součástí areálu je také samostatný domek pro hosty, který může sloužit jako ubytování pro návštěvy, dílna, ateliér nebo klidné pracovní zázemí.
Chata je vybavena elektrickými přímotopy a bojlerem, takže nabízí plnohodnotné a komfortní využití i v chladnějších měsících.
Lokalita patří mezi vyhledávané oblasti jen pár kroků od řeky Sázavy, která láká k procházkám, cyklistice, rybaření i vodním sportům.
Výhody pozemku dle schváleného územního plánu (plocha rekreace R):
Možnost 2 nadzemních podlaží + obytné podkroví
Celkem lze vytvořit až 240 m podlahové plochy
Maximální výška stavby 6 m k římsové hraně od terénu
Zastavěnost pozemku max. 20 % (cca 193 m)
Zeleň minimálně 65 % plochy klid a soukromí zajištěno
Doplňkové stavby povoleny např. zahradní domek, dílna, altán nebo objekt pro hosty
Výborná investice vhodné jak pro rekreaci, tak pro budoucí trvalé bydlení
Výborná dostupnost:
Týnec nad Sázavou (3 km) obchody, školy, zdravotnická zařízení
Benešov (13 km) okresní město s kompletní občanskou vybaveností
Dálnice D1 rychlé spojení do Prahy (cca 35 km)
V okolí také autobusová doprava
Neváhejte přijďte se osobně přesvědčit o kouzlu této nemovitosti.
Pomocí naší hypoteční kalkulačky si můžete udělat orientační představu o výši měsíčních splátek hypotéky. O vše ostatní se pak postaráme my ve spolupráci s našimi obchodními partnery.
12 915 Kč
* Odhadovaná měsíční splátka vychází z výše úvěru Kč s pevnou úrokovou sazbou % po celou dobu trvání úvěru.
Uživatel serveru RealityMIX.cz (dále jen „Server“) dostupného na internetové adrese (URL) https://www.realitymix.cz, který provozuje společnost DALTEN media s.r.o., se sídlem Na Harfě 916/9a, Praha 9, 190 00, IČO: 271 35 306 (dále jen „Správce“) jako provozovateli tohoto Serveru uděluje svůj výslovný souhlas v souladu s ustanovením § 5 zákona č. 101/2000 Sb. O ochraně osobních údajů a o změně některých zákonů, v platném znění (dále jen „zákon o ochraně osobních údajů“), se zpracováním uživatelem poskytnutých osobních údajů a dalších dat.
Uživatel poskytuje Správci osobní údaje v rozsahu: jméno, příjmení, e-mailová adresa, telefonický kontakt a další data, a to z důvodu projeveného zájmu o nemovitost, kde prostřednictvím služby Serveru Správce osloví Uživatel inzerenta uvedeného v detailu
nemovitosti - Irena Trojanová (IČ 61662313) se zájmem o jeho služby.
Uživatel tyto osobní údaje poskytuje dobrovolně a bere na vědomí, že součástí služeb Správce, které Správce Uživateli poskytuje, je vyhledání všech Uživateli vyhovujících (dle parametrů - cena, typ nemovitosti, lokalita atd.) nemovitostí. Správce za tímto účelem provozuje aplikace Hlídací pes a newsletter. Tyto služby je možné z každého zaslaného emailu odhlásit. Souhlas se zpracováním osobních údajů Uživatel poskytuje Správci na dobu neurčitou s tím, že svůj udělený souhlas může Uživatel kdykoliv na drese správce info@realitymix.cz odvolat. Správce garantuje Uživateli i další práva uvedené v ustanovení §11 a §21 zákoba č. 101/200 Sb. Ve znění pozdějších předpisů.
Více informací o zpracování údajů získáte zde (realitymix.cz/zasady-ochrany-osobnich-udaju)