Tento dům je přesně ten typ místa, kde všechno dává smysl.
Kompletní rekonstrukcí prošel v prosinci 2017 a od té doby je navržen tak, aby se v něm opravdu dobře žilo – bez kompromisů, bez nutnosti dalších investic, s důrazem na kvalitu, detail a praktičnost.
Na pozemku o výměře 342 m² se kromě hlavního podsklepeného domu (cca 138 m2) nachází také samostatný výměnek s kuchyní (cca 40 m2), vinný sklep, vířivka a wellness se saunou, sprchou a toaletou.
Přízemí domu působí otevřeně a přirozeně propojeně. obývací pokoj s jídelnou navazuje na dubovou kuchyň vyrobenou na míru vč. úložného systému a vybavenou spotřebiči Miele. Interiér je laděný do teplých přírodních tónů a plynový krb na dálkové ovládání v obývacím pokoji dotváří atmosféru.
Použito zařízení jako dubové podlahy, dveře JAP, designové prvky Decento. V přízemí je dále koupelna se sprchovým koutem, toaletou a praktickým shozem prádla do sklepa, šatna a vstupní předsíň.
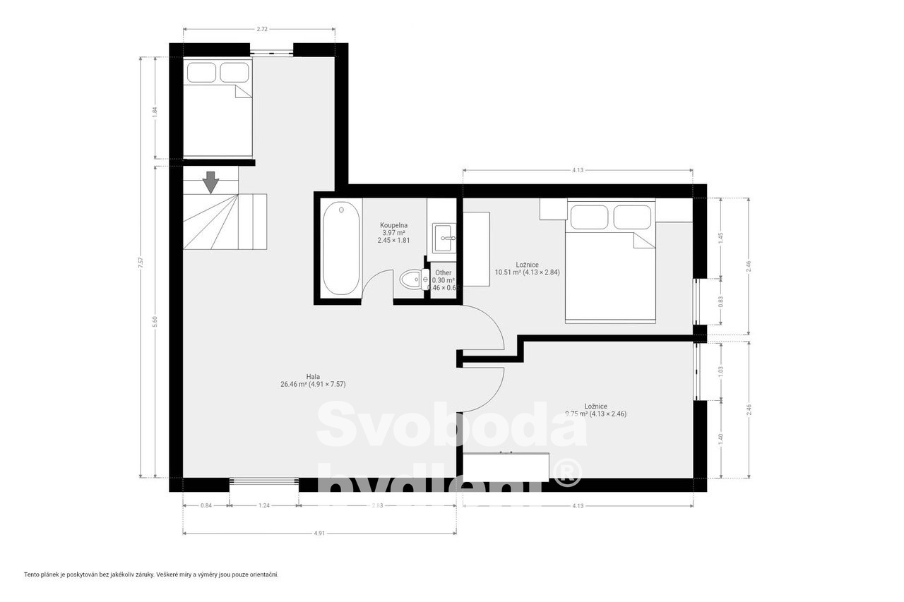
V patře najdeme dva samostatné pokoje, čítárnu a velký otevřený prostor, který může sloužit jako herna, pracovna nebo jej lze snadno upravit na další pokoj. Druhou koupelnu s vanou a toaletou, která nabízí stejný komfort včetně dalšího shozu prádla. Sklep poskytuje dostatek úložného prostoru, technické zázemí domu i samostatnou místnost vhodnou na kola či zahradní vybavení.
Dům je vybaven tepelným čerpadlem s možností dálkového ovládání přes aplikaci, druhým tepelným čerpadlem sloužícím jako klimatizace a plynovým krbem. Veškeré rozvody i elektroinstalace byly předmětem rekonstrukce, vše je ve velmi dobrém stavu a připravené k okamžitému užívání.
Součástí pozemku je také samostatný výměnek o velikosti cca 40 m², který lze využít jako pracovnu, ateliér, hostinský apartmán nebo zázemí pro dospívající děti. I zde je kuchyň na míru se spotřebiči Miele a vytápění zajišťují elektrická šamotová kamna nebo krb na dřevo. Pod výměnkem se nachází vinný sklep s dubovými policemi vyrobenými na míru.
Exteriér nabízí příjemnou relaxační zónu – saunu pro čtyři osoby se sprchou a toaletou, finskou vířivku a zastřešenou terasu pro posezení s rodinou či přáteli. Zahrada je udržovaná a prakticky řešená tak, aby poskytovala soukromí i pohodlí bez zbytečné náročnosti na údržbu.
Nemovitost se nachází v klidné rezidenční lokalitě s rychlým vlakovým spojením do centra Prahy (cca 25minut), což z ní dělá ideální kombinaci pohodového bydlení a výborné dostupnosti velkoměsta.
V Libčicích nad Vltavou je velmi dobrá občanská vybavenost, MŠ, ZŠ, UŠ, praktický lékař, lékárna, obchod, atd.. V místě se dále nachází velmi příjemná relaxační zóna při údolí Vltavy, les a množství možností pro trávení volného času při sportu, či v přírodě.
V případě zájmu o více informací či sjednání prohlídky neváhejte kontaktovat makléře nabídky.
Pomocí naší hypoteční kalkulačky si můžete udělat orientační představu o výši měsíčních splátek hypotéky. O vše ostatní se pak postaráme my ve spolupráci s našimi obchodními partnery.
54 617 Kč
* Odhadovaná měsíční splátka vychází z výše úvěru Kč s pevnou úrokovou sazbou % po celou dobu trvání úvěru.
Uživatel serveru RealityMIX.cz (dále jen „Server“) dostupného na internetové adrese (URL) https://www.realitymix.cz, který provozuje společnost DALTEN media s.r.o., se sídlem Na Harfě 916/9a, Praha 9, 190 00, IČO: 271 35 306 (dále jen „Správce“) jako provozovateli tohoto Serveru uděluje svůj výslovný souhlas v souladu s ustanovením § 5 zákona č. 101/2000 Sb. O ochraně osobních údajů a o změně některých zákonů, v platném znění (dále jen „zákon o ochraně osobních údajů“), se zpracováním uživatelem poskytnutých osobních údajů a dalších dat.
Uživatel poskytuje Správci osobní údaje v rozsahu: jméno, příjmení, e-mailová adresa, telefonický kontakt a další data, a to z důvodu projeveného zájmu o nemovitost, kde prostřednictvím služby Serveru Správce osloví Uživatel inzerenta uvedeného v detailu
nemovitosti - Svoboda bydlení s.r.o. (IČ 27595153) se zájmem o jeho služby.
Uživatel tyto osobní údaje poskytuje dobrovolně a bere na vědomí, že součástí služeb Správce, které Správce Uživateli poskytuje, je vyhledání všech Uživateli vyhovujících (dle parametrů - cena, typ nemovitosti, lokalita atd.) nemovitostí. Správce za tímto účelem provozuje aplikace Hlídací pes a newsletter. Tyto služby je možné z každého zaslaného emailu odhlásit. Souhlas se zpracováním osobních údajů Uživatel poskytuje Správci na dobu neurčitou s tím, že svůj udělený souhlas může Uživatel kdykoliv na drese správce info@realitymix.cz odvolat. Správce garantuje Uživateli i další práva uvedené v ustanovení §11 a §21 zákoba č. 101/200 Sb. Ve znění pozdějších předpisů.
Více informací o zpracování údajů získáte zde (realitymix.cz/zasady-ochrany-osobnich-udaju)