V centru Liberce, v ulici U Besedy, nabízím k prodeji garáž po částečné rekonstrukci – s novou střechou, právě obnoveným nátěrem a rekonstruovaným odvětráváním šachtami.
Garáž je uzamykatelná a její dispozice umožňuje nejen parkování běžného osobního vozu, ale i praktické skladování. Vaše budoucí skladovací/parkovací prostory jsou rozměrově lehce netradiční - co ale mohou ztrácet na délku, dohání na šířku. Vedle Vašeho osobního auta se bez problémů vejde pracovní deska, regálový systém nebo třeba motorka.
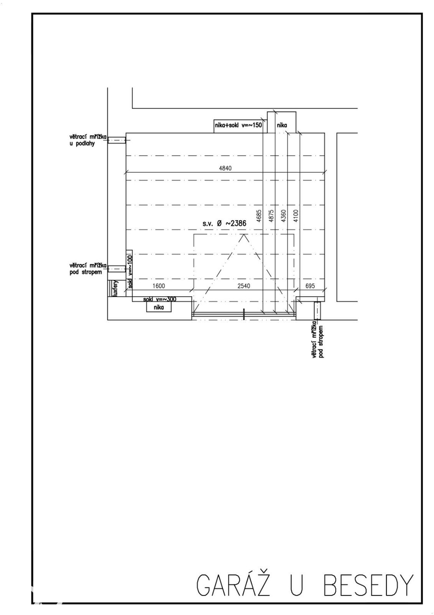
Vnitřní rozměry: (viz nákres)
Šířka 4,8m
Délka 4,68m (použitelná délka pro zaparkování auta, měřeno od vrat po výklenek)
Výška 2,38m
Stavební otvor výklopných vrat má na šířku 2,5m, výšku cca 2m
A jaká auta se dovnitř vejdou? Na délku se tam bezpečně vejde například:
Škoda Scala nebo třeba Karoq
Hyundai i30
Kia Ceed
VW Golf
Toyota Yaris Cross
Renault Clio
Peugeot Mokka
Dacia Duster nebo Sandero
Ford Fiesta
..a jestli se tam vejde to Vaše? Přijďte se na prohlídku přesvědčit!
Elektřinu lze v garáži dle ČEZu zařídit, zavolejte pro více informací a postup - vše jsme pro Vás s majiteli již předpřipravili.
K dispozici ihned. Pro domluvení prohlídky neváhejte zavolat.
Pomocí naší hypoteční kalkulačky si můžete udělat orientační představu o výši měsíčních splátek hypotéky. O vše ostatní se pak postaráme my ve spolupráci s našimi obchodními partnery.
2 020 Kč
* Odhadovaná měsíční splátka vychází z výše úvěru Kč s pevnou úrokovou sazbou % po celou dobu trvání úvěru.
Uživatel serveru RealityMIX.cz (dále jen „Server“) dostupného na internetové adrese (URL) https://www.realitymix.cz, který provozuje společnost DALTEN media s.r.o., se sídlem Na Harfě 916/9a, Praha 9, 190 00, IČO: 271 35 306 (dále jen „Správce“) jako provozovateli tohoto Serveru uděluje svůj výslovný souhlas v souladu s ustanovením § 5 zákona č. 101/2000 Sb. O ochraně osobních údajů a o změně některých zákonů, v platném znění (dále jen „zákon o ochraně osobních údajů“), se zpracováním uživatelem poskytnutých osobních údajů a dalších dat.
Uživatel poskytuje Správci osobní údaje v rozsahu: jméno, příjmení, e-mailová adresa, telefonický kontakt a další data, a to z důvodu projeveného zájmu o nemovitost, kde prostřednictvím služby Serveru Správce osloví Uživatel inzerenta uvedeného v detailu
nemovitosti - eDO reality, s.r.o. (IČ 07268602) se zájmem o jeho služby.
Uživatel tyto osobní údaje poskytuje dobrovolně a bere na vědomí, že součástí služeb Správce, které Správce Uživateli poskytuje, je vyhledání všech Uživateli vyhovujících (dle parametrů - cena, typ nemovitosti, lokalita atd.) nemovitostí. Správce za tímto účelem provozuje aplikace Hlídací pes a newsletter. Tyto služby je možné z každého zaslaného emailu odhlásit. Souhlas se zpracováním osobních údajů Uživatel poskytuje Správci na dobu neurčitou s tím, že svůj udělený souhlas může Uživatel kdykoliv na drese správce info@realitymix.cz odvolat. Správce garantuje Uživateli i další práva uvedené v ustanovení §11 a §21 zákoba č. 101/200 Sb. Ve znění pozdějších předpisů.
Více informací o zpracování údajů získáte zde (realitymix.cz/zasady-ochrany-osobnich-udaju)