Prodej bytu 3+kk 97 m² Jáchymovská, Liberec - Liberec X-Františkov
Dovolujeme si představit světlý a prostorný byt 3+kk se soukromou předzahrádkou v novostavbě v části Františkov. Byt má celkovou výměru 97 m2, umístěný je v přízemí menšího bytového domu, který má celkem čtyři podlaží.
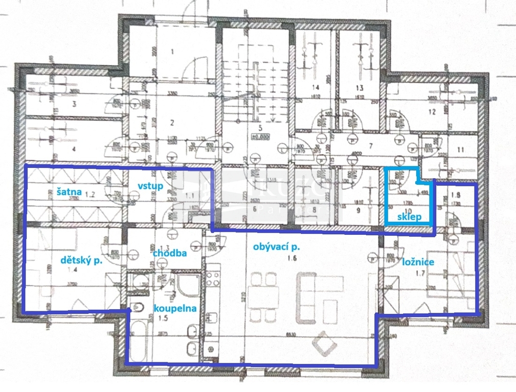
Jednou z předností bytu je přístupná předzahrádka z každé obytné místnosti. Dokončovací práce byly provedeny v nadstandardu (vinylová podlaha, dlažba Piemme - limestone v dekoru kamene, dveře Sapeli). Obývací pokoj je velkoryse navržen, aby bylo možné prostor rozdělit na část kuchyňskou, jídelní a odpočinkovou. Kuchyně byla navržena do tvaru L a je vybavena vestavěnými spotřebiči AEG. V bytě naleznete dostatek úložných ploch, které nijak nezasahují do obytných místností. První úložný prostor je ve vstupní chodbě v podobě vestavěné skříně. Další již samostatná šatna s vestavěným úložným systémem je přístupná taktéž z chodby a poslední šatní prostor patří k ložnici. Dalším bonusem je rozvedený internet do každé místnosti, optický kabel zavedený do bytu a pro venkovní prostor jsou umístěny rozvody na kamerový systém.
Tento prostorný byt má výhled pouze do vlastní zahrady a na nejbližší okolí. Příjezdová místní komunikace je na opačné straně, do bytu tak nezasahuje ruch okolní komunikace.
Zahradu tvoří částečně travnatá plocha a částečně dlažba v prostoru terasy a zpevněný chodník, vedoucí až k vstupní brance k parkovišti. Pozemek je kompletně oplocen. Je možné používat hlavní vchod, ale i soukromý vstup z parkoviště.
Koupelna byla vybavena špičkovými podomítkovými zařizovací předměty Hans Grohe. Najdete tu vanu i sprchový kout, dále WC a místo pro pračku i sušičku. I přes to vše, je zde stále dost volného prostoru a místnost nepůsobí přeplněně.
Byt je velmi praktický, bezbariérový a poskytuje dostatečné soukromí a klid od ruchu města. Orientovaný je převážně západním směrem.
Na daném patře je k dispozici sklep vel. 3,8 m2 a na parkovišti jedno parkovací místo. Vjezd je umožněn pouze uživatelům bytového domu.
Kolaudace domu proběhla v roce 2021.
Jednotka je ve vynikajícím technickém stavu a není třeba očekávat žádné investice z důvodu potřeby okamžité údržby ani oprav.
Vytápění pro celý objekt zajišťují tepelná čerpadla. Byty mají podlahové vytápění, teplotu je možné nastavit na dálku přes aplikaci. En. náročnost objektu je třída A. Je zde velice nízká spotřeba na energie, vyúčtování za minulý rok je pro budoucí zájemce k dispozici. Bydlení uspokojí i náročnější uživatele, rodinu i osobu s omezenou pohyblivostí.
V těsné blízkosti najdete kompletní občanskou vybavenost (obchod, škola, školka, zastávka MHD, tramvaj, restaurace i přímé napojení na hlavní tah Libercem). V blízkém okolí je dostatek přírody a možnosti k procházkám (např. blízký Ještěd – cca 10 minut, okolí letiště). Více informací i prohlídku nemovitosti rádi zajistíme.
Pomocí naší hypoteční kalkulačky si můžete udělat orientační představu o výši měsíčních splátek hypotéky. O vše ostatní se pak postaráme my ve spolupráci s našimi obchodními partnery.
46 156 Kč
* Odhadovaná měsíční splátka vychází z výše úvěru Kč s pevnou úrokovou sazbou % po celou dobu trvání úvěru.
Prodáváte nemovitost a potřebujete zjistit její reálnou hodnotu?
Uživatel serveru RealityMIX.cz (dále jen „Server“) dostupného na internetové adrese (URL) https://www.realitymix.cz, který provozuje společnost DALTEN media s.r.o., se sídlem Na Harfě 916/9a, Praha 9, 190 00, IČO: 271 35 306 (dále jen „Správce“) jako provozovateli tohoto Serveru uděluje svůj výslovný souhlas v souladu s ustanovením § 5 zákona č. 101/2000 Sb. O ochraně osobních údajů a o změně některých zákonů, v platném znění (dále jen „zákon o ochraně osobních údajů“), se zpracováním uživatelem poskytnutých osobních údajů a dalších dat.
Uživatel poskytuje Správci osobní údaje v rozsahu: jméno, příjmení, e-mailová adresa, telefonický kontakt a další data, a to z důvodu projeveného zájmu o nemovitost, kde prostřednictvím služby Serveru Správce osloví Uživatel inzerenta uvedeného v detailu
nemovitosti - KUZO Partners s.r.o. (IČ 27602974) se zájmem o jeho služby.
Uživatel tyto osobní údaje poskytuje dobrovolně a bere na vědomí, že součástí služeb Správce, které Správce Uživateli poskytuje, je vyhledání všech Uživateli vyhovujících (dle parametrů - cena, typ nemovitosti, lokalita atd.) nemovitostí. Správce za tímto účelem provozuje aplikace Hlídací pes a newsletter. Tyto služby je možné z každého zaslaného emailu odhlásit. Souhlas se zpracováním osobních údajů Uživatel poskytuje Správci na dobu neurčitou s tím, že svůj udělený souhlas může Uživatel kdykoliv na drese správce info@realitymix.cz odvolat. Správce garantuje Uživateli i další práva uvedené v ustanovení §11 a §21 zákoba č. 101/200 Sb. Ve znění pozdějších předpisů.
Více informací o zpracování údajů získáte zde (realitymix.cz/zasady-ochrany-osobnich-udaju)