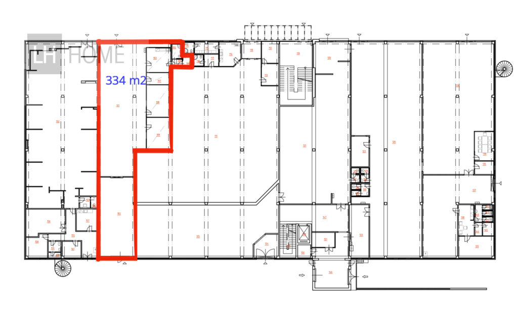
Nabídku k pronájmu nebytových obchodních prostor v Liberci o výměře 334 m2.
Součástí nebytového prostoru je vlastní kuchyňka a sociální zařízení, šatna, kanceláře. V zadní části se nachází sklad s garážovými vraty.
Obchodní prostory se nachází v OD SPECTRUM a jsou situovány vedle známého obchodního centra NISA Liberec. Vlastní parkoviště se 70 místy. Nabízíme výhodné podmínky pronájmu.
V obchodním centru NISA a jeho okolí jsou tito nájemci:
Sconto nábytek, McDonald, hypermarket Albert, Datart, iWant, Orsay, Deichmann, Bambule, DM Drogerie, Baťa, Uncle Sam, CCC, Cinestar, Reserved, HM, Tescoma, Pompo, New Yorker, A3 Sport, Intersport, Martes sport, Alpinepro a mnoho dalších.
Nájemné: 250,-Kč/m2 bez DPH (celkem 83.500,-Kč bez DPH)
Energie a služby jsou dle skutečné spotřeby.
Cena:
250 Kč / (za m2/měsíc)
Datum k nastěhování:
15.09.2016
Číslo zakázky:
REALITYMIX-0187
Podrobné informace
Plocha kanceláří:334 m²
Plocha parcely:334 m²
Druh objektu:smíšená
Stav objektu:velmi dobrý
Druh prostor:Obchodní
Energetická náročnost budovy:B - Velmi úsporná
Energetický ukazatel podle vyhlášky:č. 78/2013 Sb.
Uživatel serveru RealityMIX.cz (dále jen „Server“) dostupného na internetové adrese (URL) https://www.realitymix.cz, který provozuje společnost DALTEN media s.r.o., se sídlem Na Harfě 916/9a, Praha 9, 190 00, IČO: 271 35 306 (dále jen „Správce“) jako provozovateli tohoto Serveru uděluje svůj výslovný souhlas v souladu s ustanovením § 5 zákona č. 101/2000 Sb. O ochraně osobních údajů a o změně některých zákonů, v platném znění (dále jen „zákon o ochraně osobních údajů“), se zpracováním uživatelem poskytnutých osobních údajů a dalších dat.
Uživatel poskytuje Správci osobní údaje v rozsahu: jméno, příjmení, e-mailová adresa, telefonický kontakt a další data, a to z důvodu projeveného zájmu o nemovitost, kde prostřednictvím služby Serveru Správce osloví Uživatel inzerenta uvedeného v detailu
nemovitosti - Luxury Home Gamma (IČ 04970471) se zájmem o jeho služby.
Uživatel tyto osobní údaje poskytuje dobrovolně a bere na vědomí, že součástí služeb Správce, které Správce Uživateli poskytuje, je vyhledání všech Uživateli vyhovujících (dle parametrů - cena, typ nemovitosti, lokalita atd.) nemovitostí. Správce za tímto účelem provozuje aplikace Hlídací pes a newsletter. Tyto služby je možné z každého zaslaného emailu odhlásit. Souhlas se zpracováním osobních údajů Uživatel poskytuje Správci na dobu neurčitou s tím, že svůj udělený souhlas může Uživatel kdykoliv na drese správce info@realitymix.cz odvolat. Správce garantuje Uživateli i další práva uvedené v ustanovení §11 a §21 zákoba č. 101/200 Sb. Ve znění pozdějších předpisů.
Více informací o zpracování údajů získáte zde (realitymix.cz/zasady-ochrany-osobnich-udaju)