Pronájem slunného 2+1 v širším centru s krásným výhledem
Pronajmu zrekonstruovaný byt 2+1 s neprůchozími pokoji, o výměře 59m2 + lodžie 3,6m2 + sklep cca 2m2, ve zrekonstruovaném panelovém domě (energetický štítek C), kde lidem záleží na dobrém sousedském soužití. Byt se nalézá ve 12. předposledním patře s nádherným výhledem na centrum města a Jizerské hory.
Byt je po rekonstrukci se zděným jádrem a praktickou prostornou šatnou/komorou přístupnou z předsíně. Byt je vybaven kuchyňskou linkou s plynovou varnou deskou a troubou, digestoř je odvětrávaná do šachty. Lednici je možné schovat do linky či zvolit volně stojící (ledničkou není byt vybaven). Prostorná koupelna s vanou a místem pro pračku, wc oddělené. Vytápění a ohřev vody centrální z vlastní plynové kotelny. Plastová okna. Zasklená lodžie. Na podlahách je dlažba a v obytných místnostech jednotná vinylová podlaha.
Byt není zařízen nábytkem, pronajímá se tak, jak ho vidíte na fotografiích.
Okna jsou orientovaná na jihovýchod, sluníčko se v místnostech točí skoro celý den. Nerušený výhled z oken je zachycen ve fotogalerii.
Společné prostory domu jsou částečně zrekonstruované, 2 výtahy. Sklepní kóje se nachází v přízemí domu. Chodby a schodiště díky oknům působí vzdušně. Jedná se o slušnou a klidnou adresu s výbornou dopravní dostupností, 10 minut chůze od všeho, co k životu potřebujete: od obchodů, kaváren, restaurací, pivnice, úřadů, autobusového a vlakového nádraží, MHD, dětských hřišť a venkovních posiloven, parků, cyklostezky a centra Babylon.
V okolí domu jsou modré rezidenční parkovací zóny s nutností obstarat si parkovací kartu (3000Kč/rok pro osoby s trvalým bydlištěm v místě), případně lze zaparkovat na zelených zónách, které jsou zdarma přes noc 18h-8h a část víkendu: so od 13h až do pondělí do 8h).
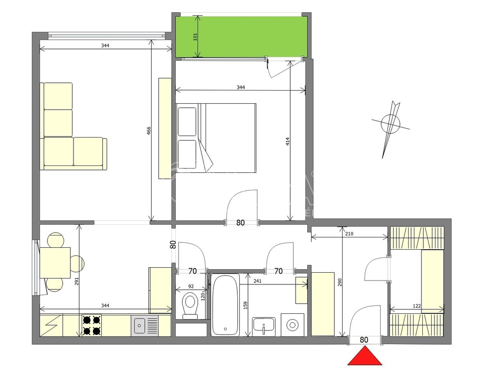
Rozmístění místností naleznete v přiloženém půdorysu.
Volný ihned, ideálně dlouhodobě.
Cenové podmínky:
Nájem: 16.000,- Kč/měs.
Poplatky: celkem cca 6.639Kč (poplatky dle evidenčního listu 5.239Kč + elektřina cca 1000Kč + plyn cca 400Kč) + případně internet. Elektřinu a plyn přehlásíme přímo na Vás, abyste měli kontrolu nad vlastní spotřebou.
Kauce: 20 000Kč, která Vám bude vrácena na konci nájemního vztahu
Provize RK: 10 000Kč.
Pro tento byt hledám ideálně dlouhodobého nájemce. Nekuřáky, co jim záleží na dobrých sousedských vztazích. Chceme, abyste zde strávili spokojeně klidně i několik let, i když to není absolutní podmínkou. Byt není vhodný pro krátkodobý pronájem. Vychovaný domácí mazlíček není problém.
Pokud by vás zajímaly další informace nebo byste se se mnou chtěli do bytu podívat, kontaktujte mě prosím na uvedených kontaktních údajích.
Cena:
16 000 Kč / (za měsíc)
Poznámka:
+ poplatky viz text inzerce
Datum k nastěhování:
07.04.2026
Dispozice/podlahová plocha:
2+1/64 m²
Číslo zakázky:
REALITYMIX-19383
Podrobné informace
Dispozice bytu:2+1
Číslo podlaží v domě:13
Počet podlaží objektu:14
Užitná plocha:59 m²
Celková podlahová plocha:64 m²
Druh objektu:panelová
Stav objektu:velmi dobrý
Vlastnictví:osobní
Lodžie:3 m²
Sklep:2 m²
Umístění objektu:centrum obce
Doprava:vlak, dálnice, silnice, MHD
Elektřina:Elektro - 230 V
Voda:Voda - dálkový vodovod
Telekomunikace:Internet
Plyn:Plynovod
Odpad:Kanalizace
Energetická náročnost budovy:C - Úsporná
Ukazatel energetické náročnosti budovy:104 kWh/m²
Energetický ukazatel podle vyhlášky:č. 264/2020 Sb.
Uživatel serveru RealityMIX.cz (dále jen „Server“) dostupného na internetové adrese (URL) https://www.realitymix.cz, který provozuje společnost DALTEN media s.r.o., se sídlem Na Harfě 916/9a, Praha 9, 190 00, IČO: 271 35 306 (dále jen „Správce“) jako provozovateli tohoto Serveru uděluje svůj výslovný souhlas v souladu s ustanovením § 5 zákona č. 101/2000 Sb. O ochraně osobních údajů a o změně některých zákonů, v platném znění (dále jen „zákon o ochraně osobních údajů“), se zpracováním uživatelem poskytnutých osobních údajů a dalších dat.
Uživatel poskytuje Správci osobní údaje v rozsahu: jméno, příjmení, e-mailová adresa, telefonický kontakt a další data, a to z důvodu projeveného zájmu o nemovitost, kde prostřednictvím služby Serveru Správce osloví Uživatel inzerenta uvedeného v detailu
nemovitosti - QARA s.r.o. (IČ 01740113) se zájmem o jeho služby. Tato společnost je součástí seskupení/sítě/franšízového modelu realitních kanceláří, jejich seznam můžete zobrazit kliknutím na tento odkaz.
QARA s.r.o. Ostrava (IČ 01740113) , QARA s.r.o. Brno (IČ 01740113) , QARA s.r.o. (IČ 01740113)
Uživatel tyto osobní údaje poskytuje dobrovolně a bere na vědomí, že součástí služeb Správce, které Správce Uživateli poskytuje, je vyhledání všech Uživateli vyhovujících (dle parametrů - cena, typ nemovitosti, lokalita atd.) nemovitostí. Správce za tímto účelem provozuje aplikace Hlídací pes a newsletter. Tyto služby je možné z každého zaslaného emailu odhlásit. Souhlas se zpracováním osobních údajů Uživatel poskytuje Správci na dobu neurčitou s tím, že svůj udělený souhlas může Uživatel kdykoliv na drese správce info@realitymix.cz odvolat. Správce garantuje Uživateli i další práva uvedené v ustanovení §11 a §21 zákoba č. 101/200 Sb. Ve znění pozdějších předpisů.
Více informací o zpracování údajů získáte zde (realitymix.cz/zasady-ochrany-osobnich-udaju)