Prodej dvougeneračního rodinného domu v Libiši, okr.Mělník
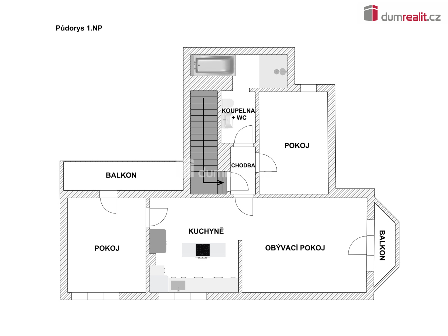
Předmětem nabídky je samostatně stojící, částečně podsklepený rodinný dům o dvou bytových jednotkách, 3+kk s koupelnou a samostatným WC v přízemí, a bytem 3+kk s koupelnou a balkonem ve II.nadzemním podlaží. Dům stojí na vlastním, oploceném pozemku o velikosti 879m², k příslušenství patří garáž, dílny a letní kuchyně v západní části zahrady, které tvoří hranici se sousedním pozemkem.
Dům byl postaven v roce 1939, v rámci přístavby v roce 1988 byly provedeny stavební úpravy a generální oprava původní části objektu. K posledním úpravám a modernizaci došlo v letech 2016-2018, kdy byl dům kompletně nákladně revitalizován. Dům je napojen na obecní vodovod, kanalizaci, plyn a elektriku, má vlastní studnu. Každá bytová jednotka má samostatné měřiče.
Nemovitostí se nachází v katastrálním území Libiš, v obci Libiš. Obec Libiš leží přibližně 12 km severně od hlavního města Prahy a necelých 7 km od města Mělník. Bezprostřední souvislost a provázanost má Libiš se svým sousedním městem Neratovice, jehož byla od r. 1950 až do r. 1990 administrativní součástí. Od 24. listopadu 1990 je Libiš opět samostatnou obcí. Obec se skládá ze dvou architektonických částí – Staré a Nové Libiše. Libiš má vlastní základní školu, malé zdravotní středisko, podací poštu i obchodní středisko ve stylu venkovského obchodního domu. Přibližně tři desítky podnikatelů přispívají k rozvoji služeb i celkové dynamice života obce. V obci je základní škola i školka, podací pošta, ordinace praktického lékaře, dětského lékaře i zubaře. V obci Libiš působí celá řada volno časových oddílů a sdružení, zejména TJ Sokol Libiš s oddíly fotbalu, tenisu, stolního tenisu, badmintonu, beach volejbalu, Sbor dobrovolných hasičů Libiš, který je jedním z největších na okrese Mělník, včelaři, zahrádkáři, myslivci, střelecký oddíl a další.
V souladu s platným zákonem je nemovitost dočasně, do předložení Průkazu energetické náročnosti, zařazena do energetické třídy G. Více informací požaduje v RK. Ev. číslo: 655184.
Pomocí naší hypoteční kalkulačky si můžete udělat orientační představu o výši měsíčních splátek hypotéky. O vše ostatní se pak postaráme my ve spolupráci s našimi obchodními partnery.
50 569 Kč
* Odhadovaná měsíční splátka vychází z výše úvěru Kč s pevnou úrokovou sazbou % po celou dobu trvání úvěru.
Uživatel serveru RealityMIX.cz (dále jen „Server“) dostupného na internetové adrese (URL) https://www.realitymix.cz, který provozuje společnost DALTEN media s.r.o., se sídlem Na Harfě 916/9a, Praha 9, 190 00, IČO: 271 35 306 (dále jen „Správce“) jako provozovateli tohoto Serveru uděluje svůj výslovný souhlas v souladu s ustanovením § 5 zákona č. 101/2000 Sb. O ochraně osobních údajů a o změně některých zákonů, v platném znění (dále jen „zákon o ochraně osobních údajů“), se zpracováním uživatelem poskytnutých osobních údajů a dalších dat.
Uživatel poskytuje Správci osobní údaje v rozsahu: jméno, příjmení, e-mailová adresa, telefonický kontakt a další data, a to z důvodu projeveného zájmu o nemovitost, kde prostřednictvím služby Serveru Správce osloví Uživatel inzerenta uvedeného v detailu
nemovitosti - Dumrealit.cz (IČ 00537861) se zájmem o jeho služby. Tato společnost je součástí seskupení/sítě/franšízového modelu realitních kanceláří, jejich seznam můžete zobrazit kliknutím na tento odkaz.
Dumrealit.cz (IČ 00537861) , HOME 4 PEOPLE (IČ 29132886) , Reality 11 (IČ 29132886) , REAL ESTATE CZECH REPUBLIC a.s. (IČ 29132886) , Národní Realitní Holding a.s. (IČ 02918897)
Uživatel tyto osobní údaje poskytuje dobrovolně a bere na vědomí, že součástí služeb Správce, které Správce Uživateli poskytuje, je vyhledání všech Uživateli vyhovujících (dle parametrů - cena, typ nemovitosti, lokalita atd.) nemovitostí. Správce za tímto účelem provozuje aplikace Hlídací pes a newsletter. Tyto služby je možné z každého zaslaného emailu odhlásit. Souhlas se zpracováním osobních údajů Uživatel poskytuje Správci na dobu neurčitou s tím, že svůj udělený souhlas může Uživatel kdykoliv na drese správce info@realitymix.cz odvolat. Správce garantuje Uživateli i další práva uvedené v ustanovení §11 a §21 zákoba č. 101/200 Sb. Ve znění pozdějších předpisů.
Více informací o zpracování údajů získáte zde (realitymix.cz/zasady-ochrany-osobnich-udaju)