Investiční příležitost v Českém ráji – tři samostatné chaty s výnosem
Rekreační areál tvoří tři samostatné stylové chaty u rybníka Žabák v klidné části obce Březka, jen 2 km od vstupu do Prachovských skal. Chaty byly dokončeny v roce 2019 a od té doby slouží jako celoročně provozovaný ubytovací areál se zavedenou klientelou a vysokou obsazeností.
Každá chata disponuje vlastní kuchyní, koupelnou, obytnou částí, ložnicemi a zastřešenou terasou. Standard vybavení zahrnuje podlahové vytápění, krbová kamna, Wi-Fi, TV a plně vybavenou kuchyni (včetně varné desky, mikrovlnky, lednice, rychlovarné konvice a Nespresso kávovaru). V exteriéru nechybí slaný bazén, solární sprcha, gril a kolárna.
Celý areál je navržen s důrazem na maximální soukromí, komfort a přírodní atmosféru. Umístění na konci vesnice, obklopené stromy a s výhledem na vodní plochu, nabízí výjimečný klid bez jakéhokoliv rušení.
Areál se nachází v turisticky nejatraktivnější části Českého ráje, v těsné blízkosti hlavních přírodních a kulturních cílů.
Hlavní investiční parametry
• atraktivní turistická lokalita v srdci Českého ráje
• žádané místo s vysokou poptávkou po krátkodobém pronájmu
• tři samostatné novostavby zkolaudované v roce 2019
• celková kapacita 10+1 lůžek (4, 4, 2+1)
• celková užitná plocha 178 m²
• pozemek o výměře 2 455 m² s výhledem na rybník a les
• bazény se slanou vodou
• značka Apardo.cz včetně profesionální prezentace: www.apardo.cz, Instagram, Facebook
• zpevněné parkování až pro 9 vozidel přímo na pozemku
• možnost okamžitého převzetí zavedeného provozu se stálou klientelou
• lokalita ideální i pro další rozvoj – přístavba, glamping, wellness
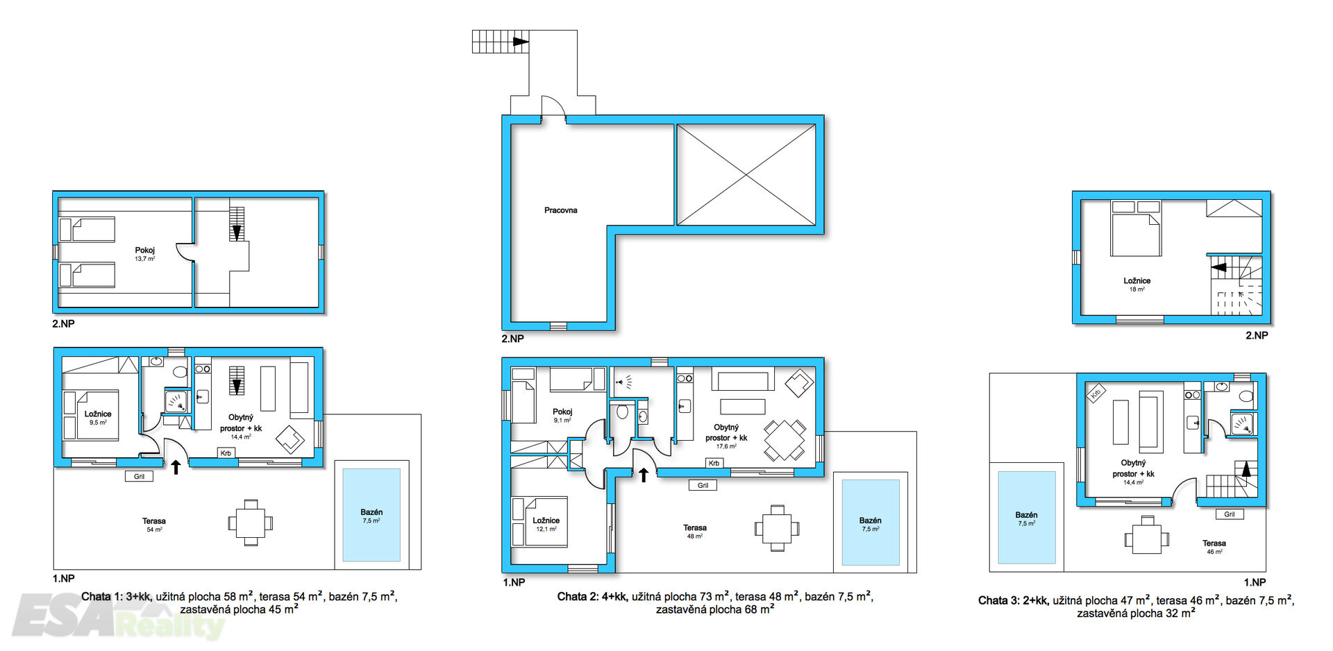
Specifikace jednotlivých chat
Chata 1 má dispozici 3+kk a nabízí užitnou plochu 58 m². K chatě náleží prostorná terasa o velikosti 54 m² a zapuštěný bazén se slanou vodou o ploše 7,5 m². Zastavěná plocha činí 45 m².
Chata 2 je největší z celého areálu, má dispozici 4+kk a užitnou plochu 73 m². Terasa o velikosti 48 m² plynule navazuje na obytnou část a nabízí výhled do zahrady. Také zde se nachází vlastní bazén o ploše 7,5 m². Zastavěná plocha objektu je 68 m².
Chata 3 je nejkompaktnější, s dispozicí 2+kk a užitnou plochou 47 m². Součástí je terasa o výměře 46 m², stejně jako bazén o velikosti 7,5 m². Zastavěná plocha této jednotky činí 32 m². Díky menší kapacitě je ideální například pro rodiny s dětmi, páry nebo jednotlivce hledající klid a soukromí.
Turisticky zajímavá místa v okolí
• Prachovské skály – 2 km
• Jinolické rybníky – 1 km
• Město Jičín – 8 km (plná občanská vybavenost)
• Hrad Trosky – 11 km
• Zámky a památky: Hrubá Skála, Kost, Valdštejn, Dětenice
• Turistika, cyklotrasy, rybaření, houbaření, přírodní koupaliště
• Zábava pro děti: Šťastná země v Radvánovicích, Rumcajsův Jičín
Lokalita a dostupnost
Březka je malebná obec na úpatí Prachovských skal, obklopená lesy a rybníky, s výbornou dostupností.
• Praha, Liberec, Hradec Králové 60–90 minut jízdy
• V místě: restaurace 200 m, obchod COOP 3 km
• Kompletní občanská vybavenost v Jičíně (lékaři, školy, kultura, sport)
Doplňující informace
Provoz je plně funkční, s možností okamžitého převzetí bez dalších investic. Vhodné jako rodinné podnikání, investice nebo víkendový retreat s podnikatelským přesahem. Na koupi lze čerpat klasickou hypotéku.
Podrobné informace o nájemních výnosech, nákladech, technickém stavu poskytneme výhradně vážným zájemcům.
Cena:
Cena na vyžádání
Plocha:
178 m²
Číslo zakázky:
REALITYMIX-N00034
Podrobné informace
Celková plocha:178 m²
Zastavěná plocha:145 m²
Užitná plocha:178 m²
Plocha parcely:2455 m²
Druh objektu:cihlová
Stav objektu:novostavba
Počet podlaží objektu:2
Umístění objektu:klidná část obce
Elektřina:Elektro - 230 V
Voda:Zdroj pro celý objekt
Telekomunikace:Internet
Topení:Lokální - elektrické
Odpad:ČOV pro celý objekt
Energetická náročnost budovy:E - Nehospodárná
Energetický ukazatel podle vyhlášky:č. 264/2020 Sb.
Uživatel serveru RealityMIX.cz (dále jen „Server“) dostupného na internetové adrese (URL) https://www.realitymix.cz, který provozuje společnost DALTEN media s.r.o., se sídlem Na Harfě 916/9a, Praha 9, 190 00, IČO: 271 35 306 (dále jen „Správce“) jako provozovateli tohoto Serveru uděluje svůj výslovný souhlas v souladu s ustanovením § 5 zákona č. 101/2000 Sb. O ochraně osobních údajů a o změně některých zákonů, v platném znění (dále jen „zákon o ochraně osobních údajů“), se zpracováním uživatelem poskytnutých osobních údajů a dalších dat.
Uživatel poskytuje Správci osobní údaje v rozsahu: jméno, příjmení, e-mailová adresa, telefonický kontakt a další data, a to z důvodu projeveného zájmu o nemovitost, kde prostřednictvím služby Serveru Správce osloví Uživatel inzerenta uvedeného v detailu
nemovitosti - Bc. Jaroslav Boucník - ESA Reality (IČ 28362888) se zájmem o jeho služby.
Uživatel tyto osobní údaje poskytuje dobrovolně a bere na vědomí, že součástí služeb Správce, které Správce Uživateli poskytuje, je vyhledání všech Uživateli vyhovujících (dle parametrů - cena, typ nemovitosti, lokalita atd.) nemovitostí. Správce za tímto účelem provozuje aplikace Hlídací pes a newsletter. Tyto služby je možné z každého zaslaného emailu odhlásit. Souhlas se zpracováním osobních údajů Uživatel poskytuje Správci na dobu neurčitou s tím, že svůj udělený souhlas může Uživatel kdykoliv na drese správce info@realitymix.cz odvolat. Správce garantuje Uživateli i další práva uvedené v ustanovení §11 a §21 zákoba č. 101/200 Sb. Ve znění pozdějších předpisů.
Více informací o zpracování údajů získáte zde (realitymix.cz/zasady-ochrany-osobnich-udaju)