V srdci přírody, v tiché části Lipna nad Vltavou - Plískově, vzniká výjimečný projekt Lipno Fores t Rezidence. Místo, kde se spojuje klid lesa, čistý vzduch a moderní architektura v dokonalé harmonii. Každý den vás přivítá panoramatický výhled na jezero a vzdálené Alpy. Díky nadmořské výšce 870 m a jižní orientaci si zde užijete více slunečných dnů po celý rok. Rezidence leží jen pár minut od promenády, pláže, kaváren a přístavu - ideální spojení soukromí a komfortu.
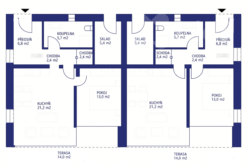
Samotná apartmánová vila je tvořena třemi samostatnými bytovými jednotkami, které nabízejí variabilní možnosti využití. V dolním podlaží (1. PP) se nachází velkorysý apartmán s užitnou plochou cca 138 m2, který lze podle potřeby rozdělit na dva stejně velké prostory - každý s vlastním vstupem, soukromím i zázemím. V horní části domu (1. NP a podkroví) jsou situovány dva samostatné byty, z nichž každý má užitnou plochu cca 69 m2 a nabízí podkrovní obytný prostor o rozloze 22,5 m2. Tato architektonická koncepce umožňuje flexibilitu - ideální jak pro vlastní rekreaci, tak pro investiční využití či kombinaci obojího.
Architektura v moderním skandinávském stylu přináší vzdušnost, funkčnost a přirozenou eleganci. Prosklené stěny otevírají prostor směrem k jezeru, venkovní žaluzie zajišťují soukromí a pohodlí. Každý apartmán nabízí terasu či zahradu s výhledem, některé i privátní panoramatickou saunu.
Okolí láká k aktivitám po celý rok - v létě koupání, jachting, cykloturistiku a rybaření, v zimě lyžování ve skiareálech Kramolín, Sternstein a Hochficht, bruslení na zamrzlém Lipně či běžkařské tratě v okolí. Lipno Forest Rezidence je projekt zasazený citlivě do krajiny - s kamennými zídkami z místní skály a zahradami osázenými vřesy. Nabízí nejen výjimečné bydlení, ale i investiční příležitost v jedné z nejžádanějších lokalit jižních Čech.
Vyberte si svůj VIP apartmán s výhledem na Lipno a začněte novou kapitolu života v dokonalé rovnováze mezi přírodou a komfortem. Zaujala vás tato příležitost?
Zanechte nám kontakt a rádi vám projekt osobně představíme.
Pomocí naší hypoteční kalkulačky si můžete udělat orientační představu o výši měsíčních splátek hypotéky. O vše ostatní se pak postaráme my ve spolupráci s našimi obchodními partnery.
193 934 Kč
* Odhadovaná měsíční splátka vychází z výše úvěru Kč s pevnou úrokovou sazbou % po celou dobu trvání úvěru.
Uživatel serveru RealityMIX.cz (dále jen „Server“) dostupného na internetové adrese (URL) https://www.realitymix.cz, který provozuje společnost DALTEN media s.r.o., se sídlem Na Harfě 916/9a, Praha 9, 190 00, IČO: 271 35 306 (dále jen „Správce“) jako provozovateli tohoto Serveru uděluje svůj výslovný souhlas v souladu s ustanovením § 5 zákona č. 101/2000 Sb. O ochraně osobních údajů a o změně některých zákonů, v platném znění (dále jen „zákon o ochraně osobních údajů“), se zpracováním uživatelem poskytnutých osobních údajů a dalších dat.
Uživatel poskytuje Správci osobní údaje v rozsahu: jméno, příjmení, e-mailová adresa, telefonický kontakt a další data, a to z důvodu projeveného zájmu o nemovitost, kde prostřednictvím služby Serveru Správce osloví Uživatel inzerenta uvedeného v detailu
nemovitosti - Bidli reality, a.s. (IČ 06790763) se zájmem o jeho služby. Tato společnost je součástí seskupení/sítě/franšízového modelu realitních kanceláří, jejich seznam můžete zobrazit kliknutím na tento odkaz.
Hypocentrum modré pyramidy - Praha (IČ ) , Hypocentrum modré pyramidy - Brno (IČ ) , Hypocentrum Modré pyramidy - Hradec Králové (IČ ) , Hypocentrum Modré pyramidy - České Budějovice (IČ ) , Hypocentrum Modré pyramidy - Pardubice (IČ ) , Hypocentrum Modré pyramidy - Plzeň (IČ ) , Hypocentrum Modré pyramidy - Ústí nad Labem (IČ ) , Hypocentrum Modré pyramidy - Ostrava (IČ ) , Hypocentrum Modré pyramidy - Olomouc (IČ ) , Bidli reality, a.s. (IČ 06790763)
Uživatel tyto osobní údaje poskytuje dobrovolně a bere na vědomí, že součástí služeb Správce, které Správce Uživateli poskytuje, je vyhledání všech Uživateli vyhovujících (dle parametrů - cena, typ nemovitosti, lokalita atd.) nemovitostí. Správce za tímto účelem provozuje aplikace Hlídací pes a newsletter. Tyto služby je možné z každého zaslaného emailu odhlásit. Souhlas se zpracováním osobních údajů Uživatel poskytuje Správci na dobu neurčitou s tím, že svůj udělený souhlas může Uživatel kdykoliv na drese správce info@realitymix.cz odvolat. Správce garantuje Uživateli i další práva uvedené v ustanovení §11 a §21 zákoba č. 101/200 Sb. Ve znění pozdějších předpisů.
Více informací o zpracování údajů získáte zde (realitymix.cz/zasady-ochrany-osobnich-udaju)