Nabízíme k prodeji velmi prostorný, zrekonstruovaný rodinný dům 6+kk (možno i sedm, nebo osm + kk) v klidné části obce Lišany. Aktuálně probíhají dokončovací práce.
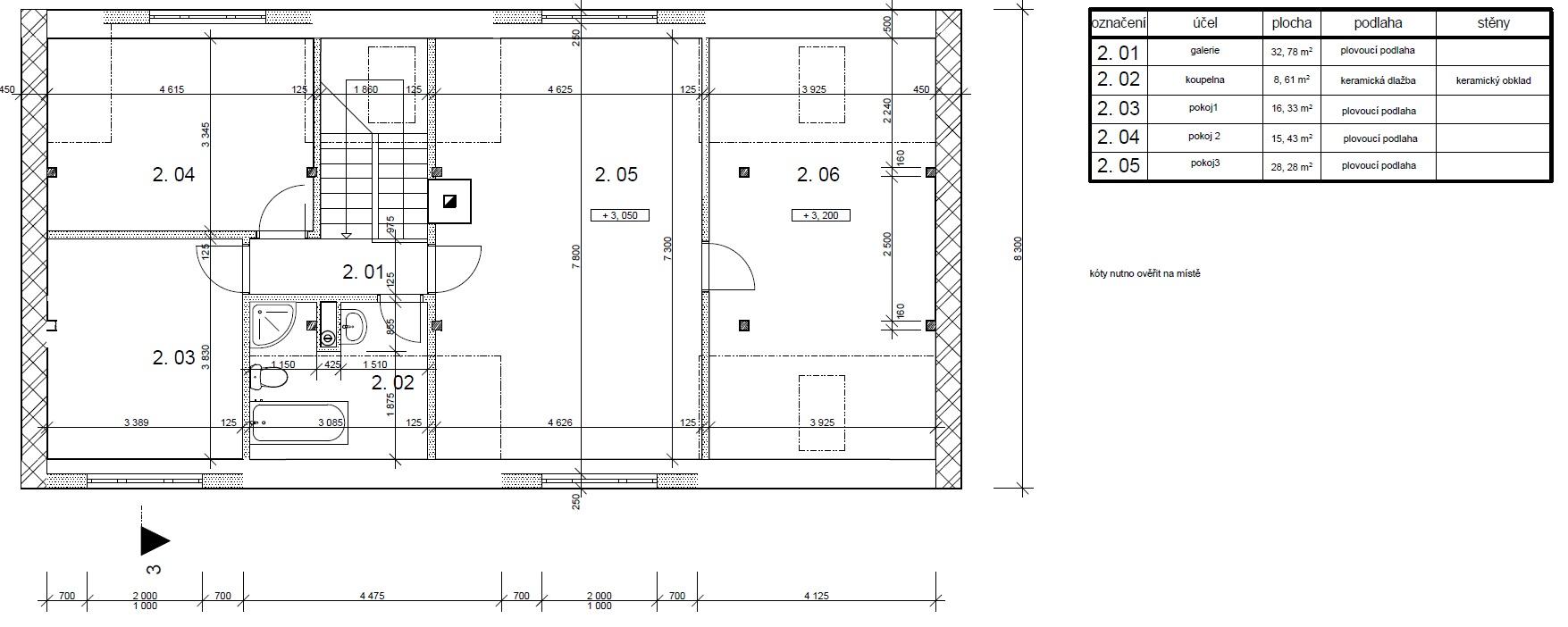
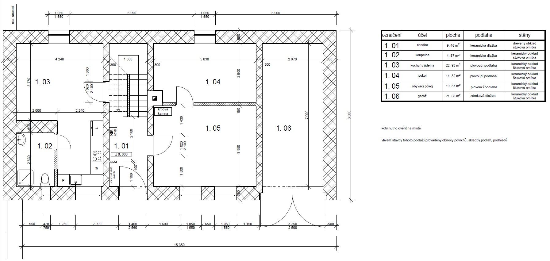
V přízemí domu nalezneme garáž (22 m2) se sekčními vraty na dálkové ovládání, vstupní chodbu, jídelnu, kuchyň, koupelnu s vanou a WC, obývací pokoj a ložnici. V patře dále nalezneme tři pokoje, z toho jeden velmi prostorný pokoj o výměře 28 m2, který může být v případě zájmu o dvougenerační bydlení využit jako obývací pokoj s kuchyňským koutem, dále koupelnu s podlahovým vytápěním, sprchovým koutem, vanou, WC, a dále prostornou půdu vhodnou i pro vestavbu dalšího pokoje.
V domě jsou kompletně nové rozvody vody, odpadů, elektřiny, plynu, topení. Kompletně nový krov včetně půdní vestavby a střešní krytiny, nový strop mezi 1 a 2.NP, dále také dům kompletně zateplen včetně nové fasády. Vytápění a ohřev domu řešeno novým plynovým kotlem se zásobníkem na teplou vodu. Obecní voda, odpady svedeny do kanalizace.
Čistá obytná plocha domu 181 m2 + 22 m2 půda + sklep s klenutým cihlovým stropem 15m2. Vjezd na pozemek bránou na dálkové ovládání. V ceně také včetně finální úpravy zahrady zahradní firmou. Doporučujeme osobní prohlídku. Financování možné hypotékou. Rádi vyřídíme.
Pomocí naší hypoteční kalkulačky si můžete udělat orientační představu o výši měsíčních splátek hypotéky. O vše ostatní se pak postaráme my ve spolupráci s našimi obchodními partnery.
30 730 Kč
* Odhadovaná měsíční splátka vychází z výše úvěru Kč s pevnou úrokovou sazbou % po celou dobu trvání úvěru.
Uživatel serveru RealityMIX.cz (dále jen „Server“) dostupného na internetové adrese (URL) https://www.realitymix.cz, který provozuje společnost DALTEN media s.r.o., se sídlem Na Harfě 916/9a, Praha 9, 190 00, IČO: 271 35 306 (dále jen „Správce“) jako provozovateli tohoto Serveru uděluje svůj výslovný souhlas v souladu s ustanovením § 5 zákona č. 101/2000 Sb. O ochraně osobních údajů a o změně některých zákonů, v platném znění (dále jen „zákon o ochraně osobních údajů“), se zpracováním uživatelem poskytnutých osobních údajů a dalších dat.
Uživatel poskytuje Správci osobní údaje v rozsahu: jméno, příjmení, e-mailová adresa, telefonický kontakt a další data, a to z důvodu projeveného zájmu o nemovitost, kde prostřednictvím služby Serveru Správce osloví Uživatel inzerenta uvedeného v detailu
nemovitosti - Orbisreality (IČ 09380850) se zájmem o jeho služby.
Uživatel tyto osobní údaje poskytuje dobrovolně a bere na vědomí, že součástí služeb Správce, které Správce Uživateli poskytuje, je vyhledání všech Uživateli vyhovujících (dle parametrů - cena, typ nemovitosti, lokalita atd.) nemovitostí. Správce za tímto účelem provozuje aplikace Hlídací pes a newsletter. Tyto služby je možné z každého zaslaného emailu odhlásit. Souhlas se zpracováním osobních údajů Uživatel poskytuje Správci na dobu neurčitou s tím, že svůj udělený souhlas může Uživatel kdykoliv na drese správce info@realitymix.cz odvolat. Správce garantuje Uživateli i další práva uvedené v ustanovení §11 a §21 zákoba č. 101/200 Sb. Ve znění pozdějších předpisů.
Více informací o zpracování údajů získáte zde (realitymix.cz/zasady-ochrany-osobnich-udaju)