Prodej rodinného domu o vel. 9+1, 263 m2, na samotě u lesa, na Lobendavském vrchu, už. plocha 325 m2
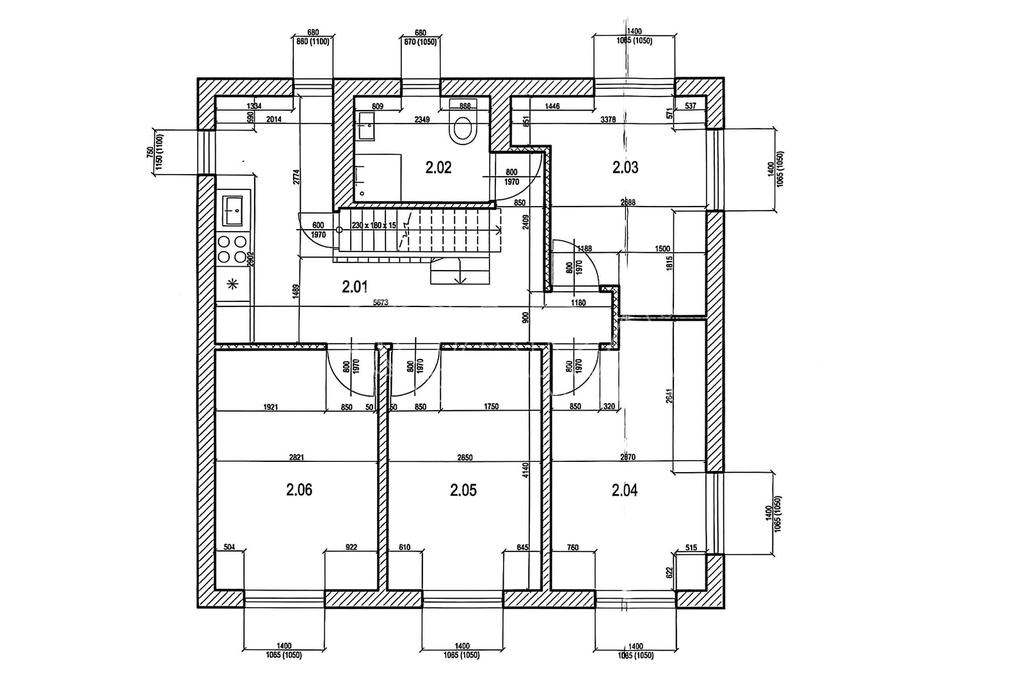
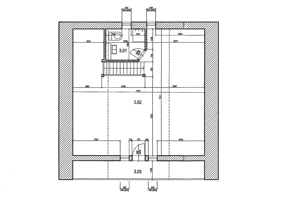
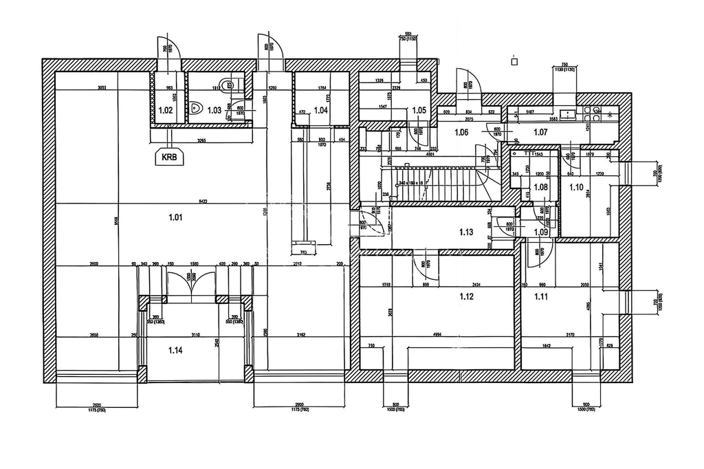
Prodej rodinného domu/chaty/penzionu o velikosti 9+1, 263 m2 + terasa 8 m2 a balkón 8 m2, na samotě u lesa, přímo na Lobendavském vrchu s užitnou plochou 325 m2 a kde se budete cítit jako na zámku. Pozemek u domu 771 m2. Vlastní přístupová cesta 4.827 m2. Okolní pozemky a část cesty jsou obecní. Dům je smíšená stavba (kombinace cihla, kámen, dřevo a sádrokarton) a byl znovu postavený v roce 2022. Možnosti využití jsou jak pro vlastní bydlení nebo rekreaci, tak i jako investiční nemovitost vhodná k krátkodobému pronájmu turistům. 1NP sestává z prostorného obývacího pokoje (72 m2) s krbem a výměníkem, terasy, tří pokojů (jeden nedokončený), dvou koupelen, předsíně, kuchyňky a skladu. 2NP sestává ze 4 pokojů, kuchyňského a jídelního koutu, koupelnou. 3NP sestává z podkrovního pokoje, balkónu a koupelny. V 1PP je sklep, kde je technické zázemí domu (16 m2) a druhá část s vířivkou, sprchou a místností je propojená vnitřním schodištěm s domem (30 m2). Topení domu je řešené přes krb s výměníkem, ohřev vody el. bojlerem a 1PP je vytápěno tepelným čerpadlem vzduch - vzduch. Střešní krytina je plechová, svislé nosné konstrukce jsou cihlové, dveře jsou plastové a i okna, která jsou dvojkomorová. Sklad/kůlna o velikosti 16 m2. Autobusové spojení na Dolní Poustevnu a na Varnsdorf. Hypoteční úvěr vám vyřídíme zdarma. Volejte a domluvte si prohlídku.
Uživatel serveru RealityMIX.cz (dále jen „Server“) dostupného na internetové adrese (URL) https://www.realitymix.cz, který provozuje společnost DALTEN media s.r.o., se sídlem Na Harfě 916/9a, Praha 9, 190 00, IČO: 271 35 306 (dále jen „Správce“) jako provozovateli tohoto Serveru uděluje svůj výslovný souhlas v souladu s ustanovením § 5 zákona č. 101/2000 Sb. O ochraně osobních údajů a o změně některých zákonů, v platném znění (dále jen „zákon o ochraně osobních údajů“), se zpracováním uživatelem poskytnutých osobních údajů a dalších dat.
Uživatel poskytuje Správci osobní údaje v rozsahu: jméno, příjmení, e-mailová adresa, telefonický kontakt a další data, a to z důvodu projeveného zájmu o nemovitost, kde prostřednictvím služby Serveru Správce osloví Uživatel inzerenta uvedeného v detailu
nemovitosti - QARA s.r.o. (IČ 01740113) se zájmem o jeho služby. Tato společnost je součástí seskupení/sítě/franšízového modelu realitních kanceláří, jejich seznam můžete zobrazit kliknutím na tento odkaz.
QARA s.r.o. Ostrava (IČ 01740113) , QARA s.r.o. Brno (IČ 01740113) , QARA s.r.o. (IČ 01740113)
Uživatel tyto osobní údaje poskytuje dobrovolně a bere na vědomí, že součástí služeb Správce, které Správce Uživateli poskytuje, je vyhledání všech Uživateli vyhovujících (dle parametrů - cena, typ nemovitosti, lokalita atd.) nemovitostí. Správce za tímto účelem provozuje aplikace Hlídací pes a newsletter. Tyto služby je možné z každého zaslaného emailu odhlásit. Souhlas se zpracováním osobních údajů Uživatel poskytuje Správci na dobu neurčitou s tím, že svůj udělený souhlas může Uživatel kdykoliv na drese správce info@realitymix.cz odvolat. Správce garantuje Uživateli i další práva uvedené v ustanovení §11 a §21 zákoba č. 101/200 Sb. Ve znění pozdějších předpisů.
Více informací o zpracování údajů získáte zde (realitymix.cz/zasady-ochrany-osobnich-udaju)