Na dosah historického centra města Loun nabízíme udržovaný byt 1+kk v osobním vlastnictví,
ve třetím patře panelového domu v ulici Lipová, obklopeném zelení s přilehlým travnatým prostorem
a dětským hřištěm. Ideální místo pro mladé rodiny.
Klidný dům na slunném místě se slušnými nájemníky se nachází v jižní části města v sousedství
rodinných domů, parku s léčivým pramenem Luna, plavecké a sportovní haly.
Absence výtahu zajišťuje nezbytný pohyb a dobrou fyzickou kondici.
Samotná bytová jednotka v původním stavu před rekonstrukcí přesto nabízí okamžité bydlení pro jednotlivce i pár,
přiměřená cena poskytuje také možnost použití finančních prostředků na vybudování moderního uspořádání
sociálního zařízení a kuchyně s využitím vlastní fantazie.
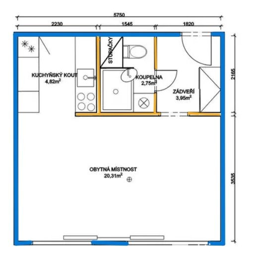
V bytě o celkové užitné ploše 34 m2 rozprostírající se z předsíně do obývacího pokoje spojeného s kuchyňským koutem
najdeme vše potřebné pro pohodlné bydlení.
Kuchyňská linka je vybavena elektrickým sporákem se sklokeramickou deskou, mikrovlnou troubou,
k dispozici je lednice.
Podlahy pokrývá PVC, plastová okna orientována na JZ jsou opatřena vnitřními žaluziemi a nově osazena venkovními roletami, zajišťujícími dostačující ochranu před zapadajícím sluncem a příjemnou pokojovou teplotu.
Vně bytu umístěna komora pro uskladnění všeho potřebného, součástí bytové jednotky je sklepní kóje.
Pořízení si vlastního bydlení nebo možnost investice a zajištění pravidelného výnosu z pronájmu umocňují nízké náklady
včetně záloh za služby v celkové výši 3.161 Kč ( FO 854 Kč ).
Výborná dostupnost veškeré občanské vybavenosti, kulturního a sportovního vyžití, škola, školka, MHD, sportoviště a přilehlé parky.
Pokud vás tato cenově dostupná nemovitost zaujala, neváhejte mě kontaktovat pro více informací a domluvení si nezávazné prohlídky.
S financováním rádi pomůžeme prostřednictvím našich hypotečních specialistů.
Cena:
2 199 000 Kč
Poznámka:
Včetně právního servisu, poplatků a provize RK, cena k jednání
Pomocí naší hypoteční kalkulačky si můžete udělat orientační představu o výši měsíčních splátek hypotéky. O vše ostatní se pak postaráme my ve spolupráci s našimi obchodními partnery.
8 903 Kč
* Odhadovaná měsíční splátka vychází z výše úvěru Kč s pevnou úrokovou sazbou % po celou dobu trvání úvěru.
Prodáváte nemovitost a potřebujete zjistit její reálnou hodnotu?
Uživatel serveru RealityMIX.cz (dále jen „Server“) dostupného na internetové adrese (URL) https://www.realitymix.cz, který provozuje společnost DALTEN media s.r.o., se sídlem Na Harfě 916/9a, Praha 9, 190 00, IČO: 271 35 306 (dále jen „Správce“) jako provozovateli tohoto Serveru uděluje svůj výslovný souhlas v souladu s ustanovením § 5 zákona č. 101/2000 Sb. O ochraně osobních údajů a o změně některých zákonů, v platném znění (dále jen „zákon o ochraně osobních údajů“), se zpracováním uživatelem poskytnutých osobních údajů a dalších dat.
Uživatel poskytuje Správci osobní údaje v rozsahu: jméno, příjmení, e-mailová adresa, telefonický kontakt a další data, a to z důvodu projeveného zájmu o nemovitost, kde prostřednictvím služby Serveru Správce osloví Uživatel inzerenta uvedeného v detailu
nemovitosti - Aktivreality (IČ 04581679) se zájmem o jeho služby.
Uživatel tyto osobní údaje poskytuje dobrovolně a bere na vědomí, že součástí služeb Správce, které Správce Uživateli poskytuje, je vyhledání všech Uživateli vyhovujících (dle parametrů - cena, typ nemovitosti, lokalita atd.) nemovitostí. Správce za tímto účelem provozuje aplikace Hlídací pes a newsletter. Tyto služby je možné z každého zaslaného emailu odhlásit. Souhlas se zpracováním osobních údajů Uživatel poskytuje Správci na dobu neurčitou s tím, že svůj udělený souhlas může Uživatel kdykoliv na drese správce info@realitymix.cz odvolat. Správce garantuje Uživateli i další práva uvedené v ustanovení §11 a §21 zákoba č. 101/200 Sb. Ve znění pozdějších předpisů.
Více informací o zpracování údajů získáte zde (realitymix.cz/zasady-ochrany-osobnich-udaju)