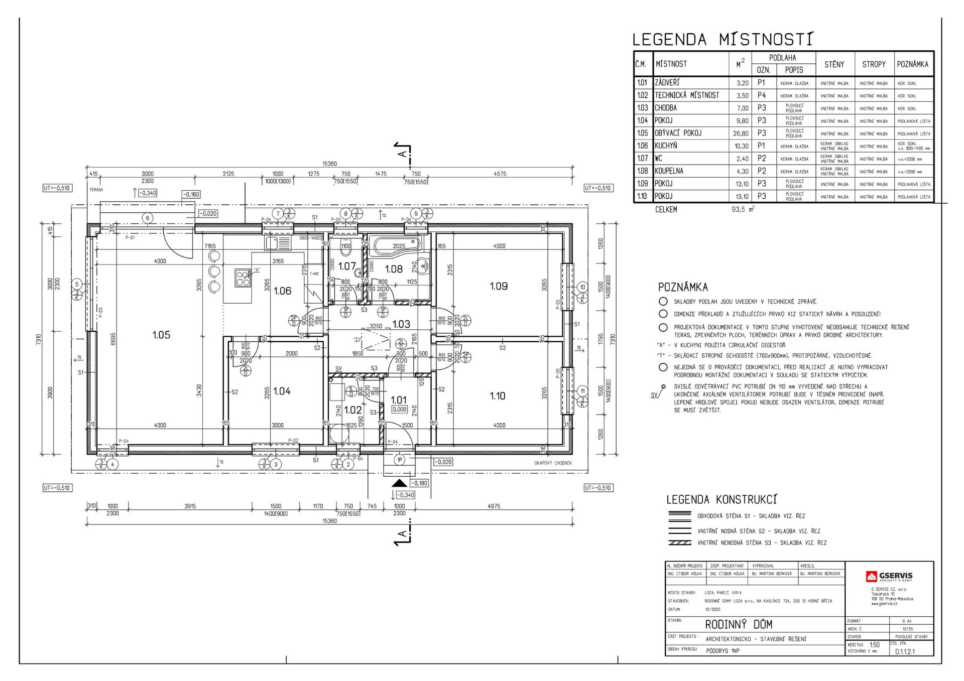
Prodej RD BUNGALOV užitná plocha 98.3 m², pozemek 726 m2 v obci LOZA , Plzeň - sever
Prodej RD BUNGALOV užitná plocha 98.3 m², pozemek 750 m2 v obci LOZA , Plzeň - sever
CENA VČETNĚ POZEMKU
Nabídka rodinného bydlení dřevostavby BUNGALOVU , celkem 5 rodinných domů v projektu RODINNÉ DOMY LOZA :
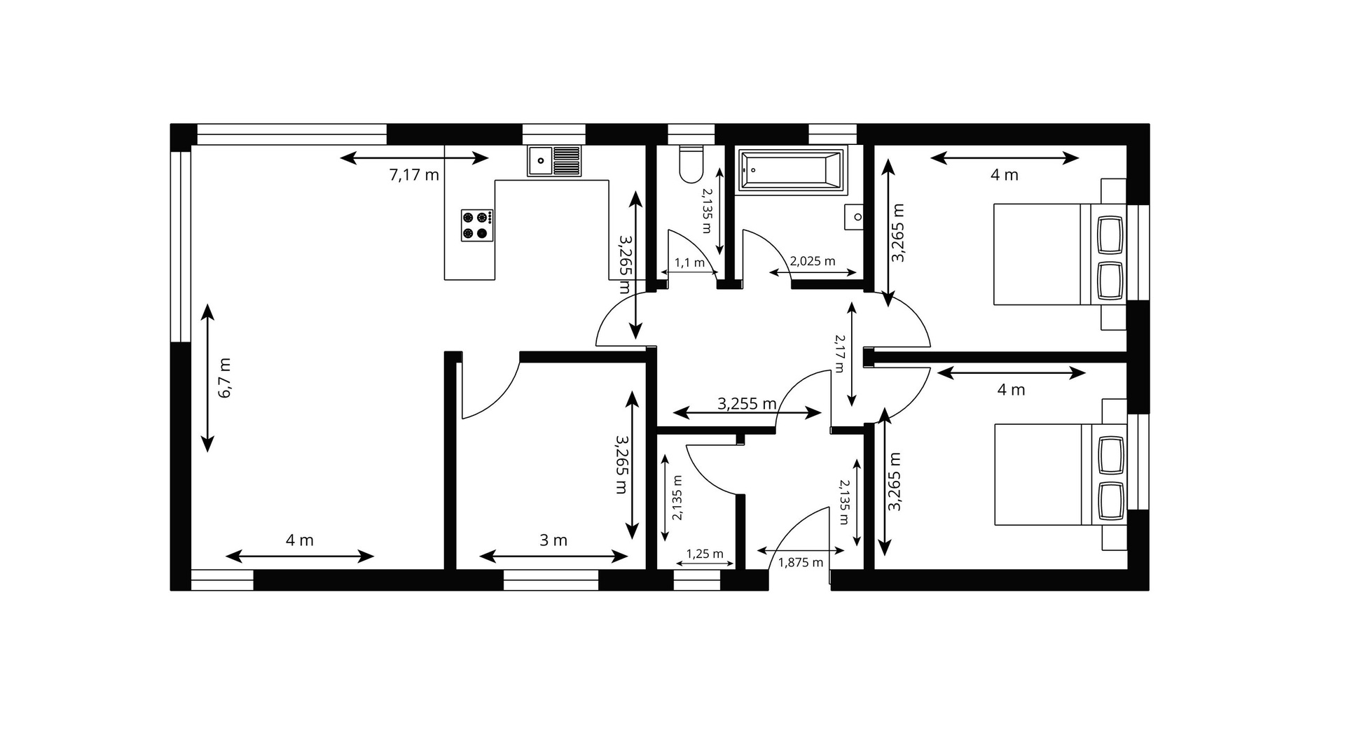
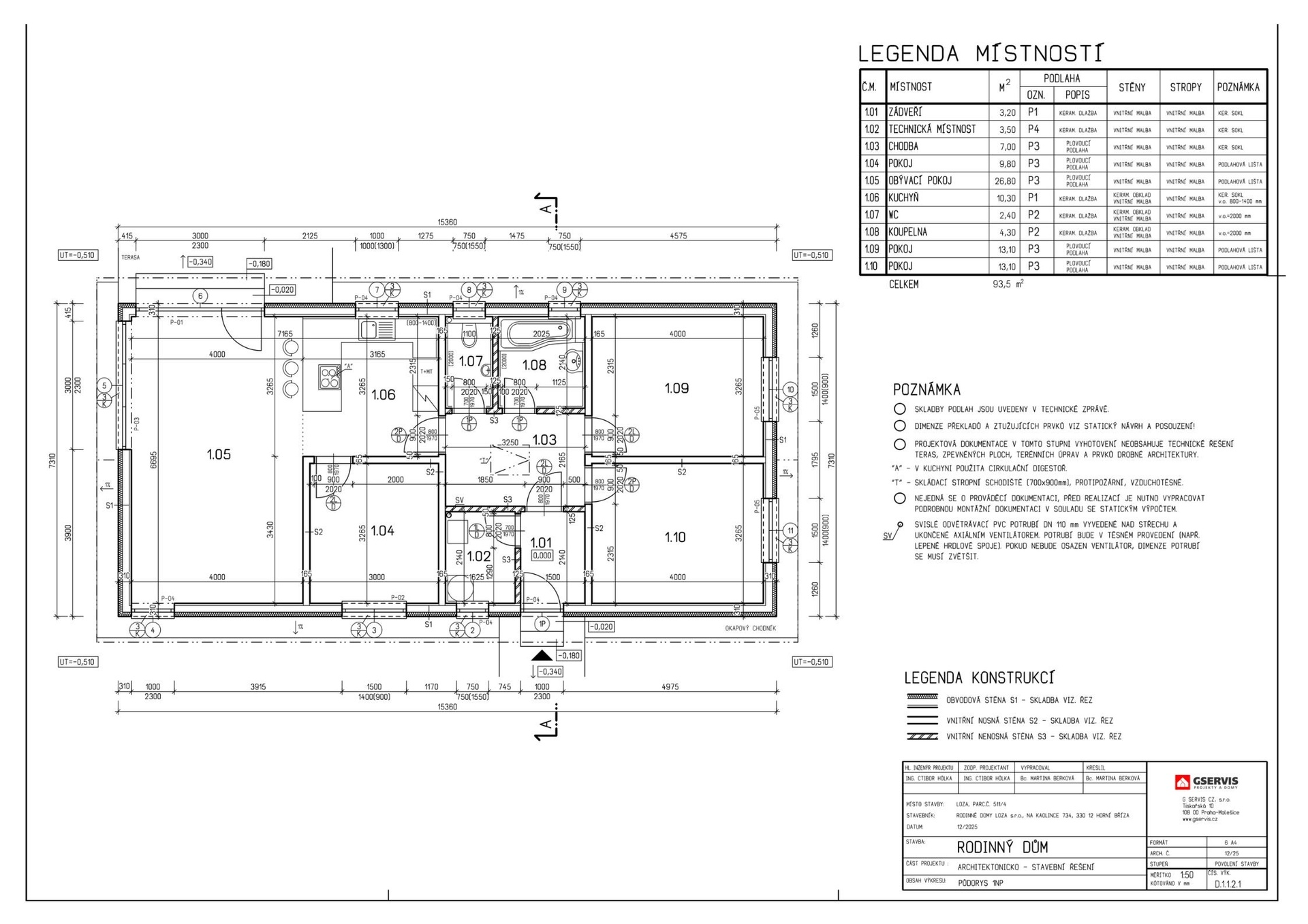
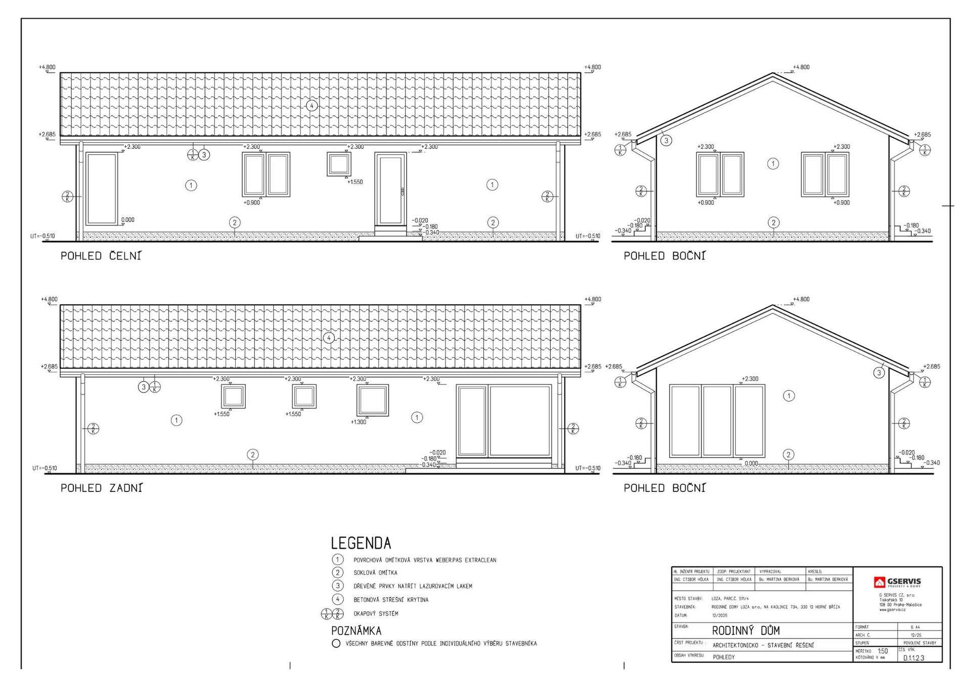
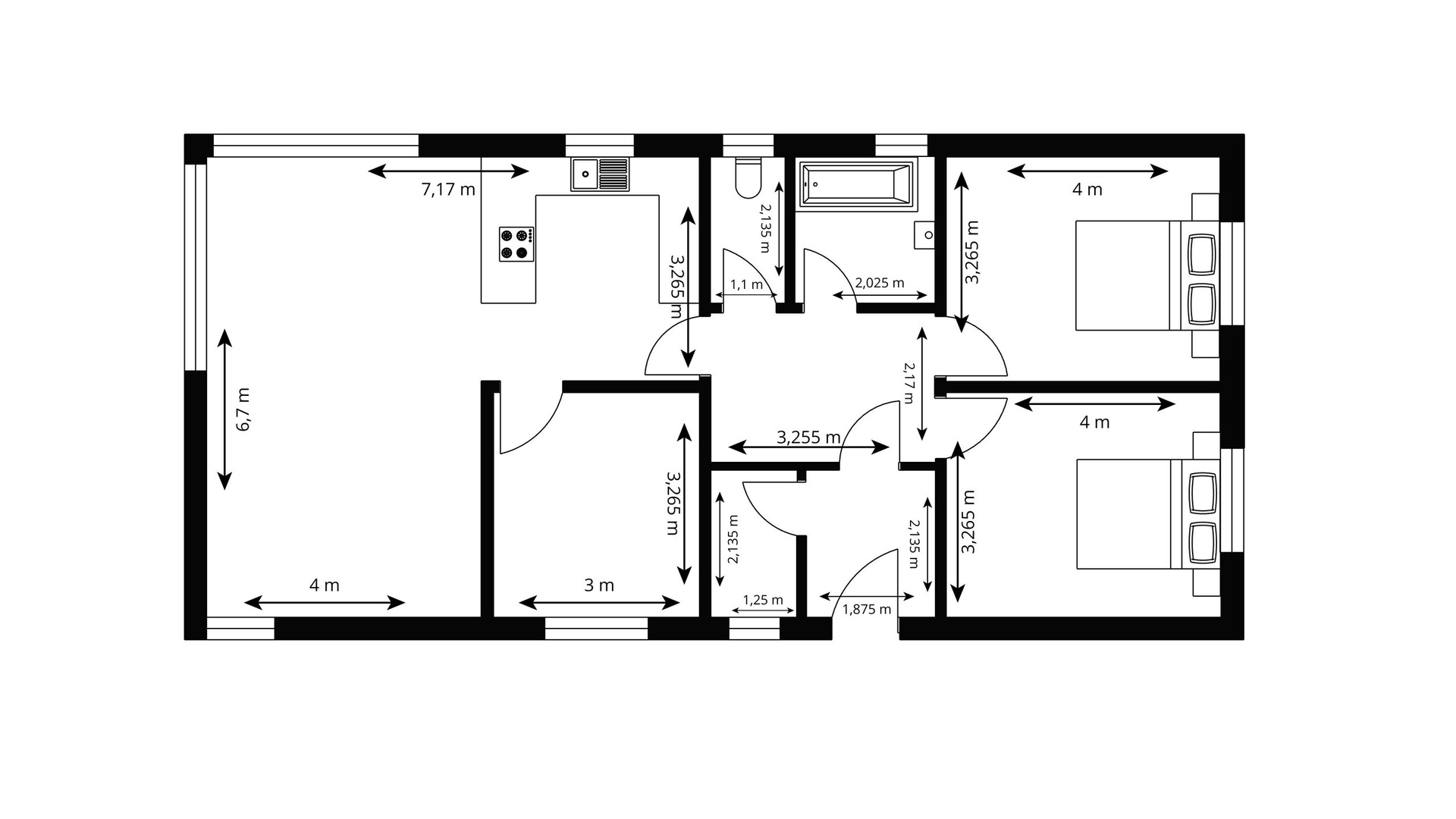
5 bunglalovů velikosti 4 kk užitné plochy 98.3 m2 pozemky o velikosti 726 m2 - 762 m2
V projektu lze realizovat bungalov dvou tvarů - klasický a "L" různých velikostí užitných ploch dle výběru.
Součástí kupní ceny je:
- pozemek
- obvodové příčky, fasáda včetně zateplení
- vnitřní příčky, vnitřní omítky
- střecha krov dřevěná konstrukce, krytina taška, svody okapy
- podhledy
- okna s trojskly , dveře vstup plast s IZ trojsky
- obklady, dlažba , sanita a zařiz. předměty wc a koupelen - výběr dle standardů projektu
- podlahové topení celého, tep.čerpadlo Viessmann (voda - vzduch),
- vodovod, odpady městská kanalizace ,vodoměr, připojení domu pro kompletní provoz
- elektro, rozvody a kompletace , přípr.pro elekt. rozvody v kuchyní, zásuvka pračky a sušičky, slaboproud NP a 2. NP, zvonek,
- venk. úpravy pozemku srovnání terénu bez příprav osevu trávy
- oplocení pozemku
- přípojky energií voda a elektřina kompl. napojení domu a uvedení do provozu, retenční zádržná nádrž dešť. vody 6m3
- příjezdová komunikace – viz vizualizace situace projektu
- nadstandardní klientské změny jsou možné
Součástí kupní ceny není :
- dveře interiér, podlahová krytina lepený vinyl, dlažba, venkovní okap chodník - tyto položky lze realizovat dle standardů u kvalitních dodavatelů projektu za cenu 300.000 Kč, kdy je tedy cena domu pro kompletní dokončení " na klíč" 7.280.000 Kč včetně DPH
Dále v ceně domu není :
- kuchyňská linka, krb , krbová kamna , předokenní rolety a jejich příprava
– přípr. TV a dat. antény, koaxiál. kabel a TV zásuvky v obýv. pokoji a v pokojích
- zabezpečovací zařízení včetně přípravy, klimatizace, rekoperace a další případné technologie
- v nadstandardu je možné realizovat přípr. FVE panelů střecha, rekuperace, přípr. a realizaci bezpečnost. systému domu, přípr. pozemku pro osev trávy, realizace zahrady, osazení krbu/krb kamen, výrobu kuchyň linky vč. spotřebičů, klimatizaci, internet dat kabel, a mnoho dalšího
- na pozemku lze vybudovat park. stání či garáž, zastavěnost umožňuje využití pozemku pro další drobné stavby
Veškerá projektová dokumentace, detailní specifikace použitých materiálů a technologií, katalogy standardů podlah, sanity, obkladů a interiér dveří projektu k náhledu u realitní makléřky či na webu tohoto projektu.
Vizualizace a plánky půdorysů jsou orientační - zájemci budou předány přesné plány a specifikace.
Velmi nízké provozní náklady domu PENB třídy B - kompletní PENB bude aktualizovat v roce 2026 a bude předán při podpisu smluvní dokumentace. Předpokládáme nižší číslo energetické spotřeby.
Kouzelná krajina okolních lesů a přírody, cyklostezky a možnosti sport aktivit i relaxace, blízkost veškeré občan vybavenosti.
Dojezd města Plzně cca 15 min , město Dolní Bělá a okolní města 5 min - lékaři ,obchody , školka , škola a další.
Možnost financování hypotečním úvěrem 80 – 90 % LVT se zvýhodněnou úrok sazbou.
Pomocí naší hypoteční kalkulačky si můžete udělat orientační představu o výši měsíčních splátek hypotéky. O vše ostatní se pak postaráme my ve spolupráci s našimi obchodními partnery.
28 260 Kč
* Odhadovaná měsíční splátka vychází z výše úvěru Kč s pevnou úrokovou sazbou % po celou dobu trvání úvěru.
Uživatel serveru RealityMIX.cz (dále jen „Server“) dostupného na internetové adrese (URL) https://www.realitymix.cz, který provozuje společnost DALTEN media s.r.o., se sídlem Na Harfě 916/9a, Praha 9, 190 00, IČO: 271 35 306 (dále jen „Správce“) jako provozovateli tohoto Serveru uděluje svůj výslovný souhlas v souladu s ustanovením § 5 zákona č. 101/2000 Sb. O ochraně osobních údajů a o změně některých zákonů, v platném znění (dále jen „zákon o ochraně osobních údajů“), se zpracováním uživatelem poskytnutých osobních údajů a dalších dat.
Uživatel poskytuje Správci osobní údaje v rozsahu: jméno, příjmení, e-mailová adresa, telefonický kontakt a další data, a to z důvodu projeveného zájmu o nemovitost, kde prostřednictvím služby Serveru Správce osloví Uživatel inzerenta uvedeného v detailu
nemovitosti - Hedvika Varcholková (IČ 66978203) se zájmem o jeho služby.
Uživatel tyto osobní údaje poskytuje dobrovolně a bere na vědomí, že součástí služeb Správce, které Správce Uživateli poskytuje, je vyhledání všech Uživateli vyhovujících (dle parametrů - cena, typ nemovitosti, lokalita atd.) nemovitostí. Správce za tímto účelem provozuje aplikace Hlídací pes a newsletter. Tyto služby je možné z každého zaslaného emailu odhlásit. Souhlas se zpracováním osobních údajů Uživatel poskytuje Správci na dobu neurčitou s tím, že svůj udělený souhlas může Uživatel kdykoliv na drese správce info@realitymix.cz odvolat. Správce garantuje Uživateli i další práva uvedené v ustanovení §11 a §21 zákoba č. 101/200 Sb. Ve znění pozdějších předpisů.
Více informací o zpracování údajů získáte zde (realitymix.cz/zasady-ochrany-osobnich-udaju)