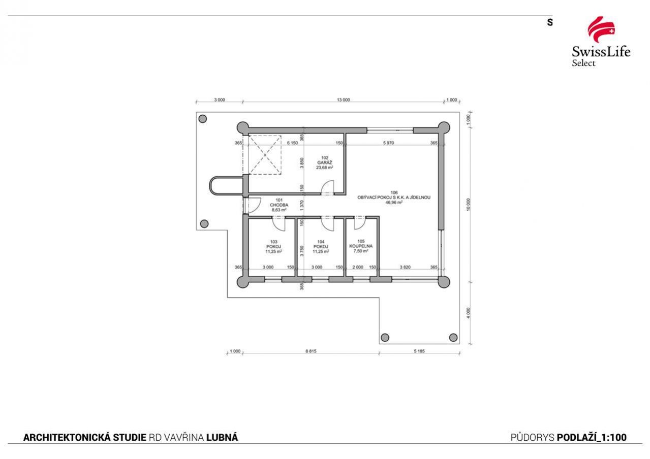
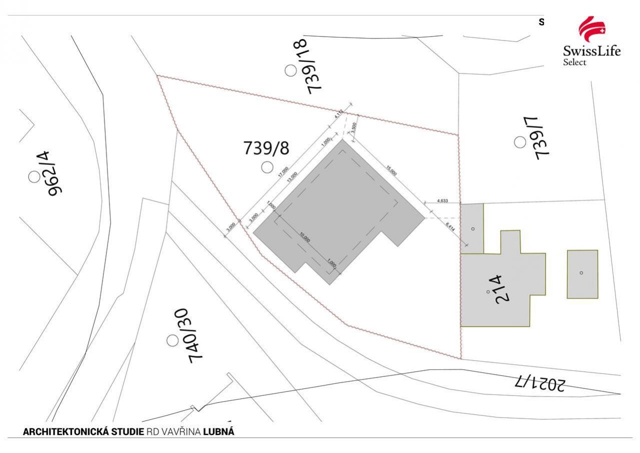
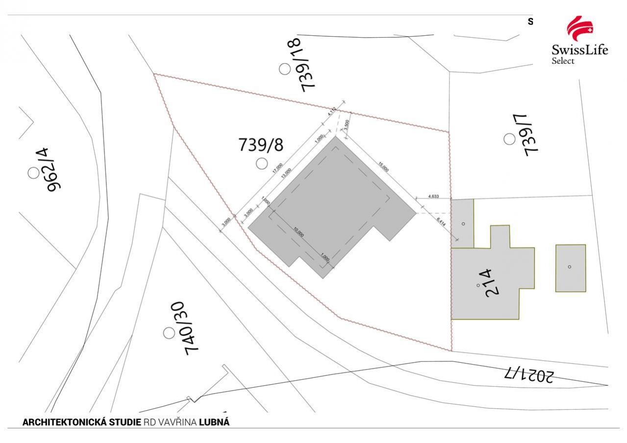
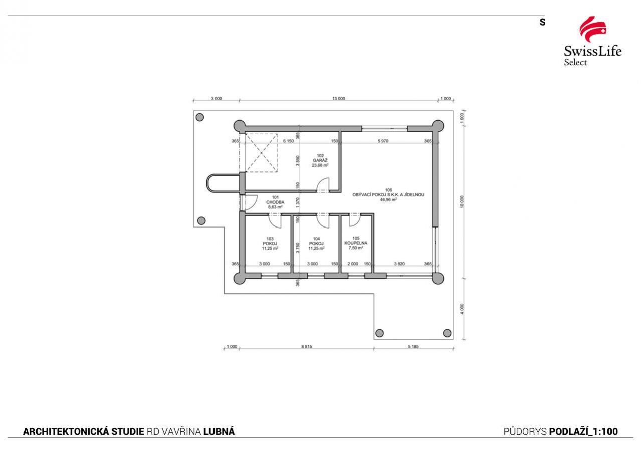
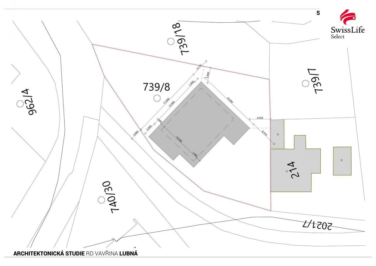
Nabízíme k prodeji pozemek p. č. 739/8, zapsaný na listu vlastnictví č. 807 v katastrálním území Lubná u Kroměříže. Pozemek je dle územního plánu určen k výstavbě rodinného domu a nachází se v plochách individuálního bydlení (BI). Je ideální pro realizaci dvoupodlažního domu s podkrovím či nízkopodlažního domu.
Pozemek trojúhelníkovitého tvaru se nachází v klidné zástavbě rodinných domů, která poskytuje dostatek soukromí i příjemné prostředí pro rodinný život. Obec Lubná leží na okraji malebného pohoří Chřiby a spojuje klid venkovského prostředí s pohodlnou dostupností do města. V okolí najdete vodní nádrž vhodnou ke koupání a rybaření, naučné stezky i cyklotrasy vedoucí lesy a poli, které vás zavedou třeba až k oblíbenému Baťovu kanálu.
Velkou předností tohoto pozemku je kompletní dostupnost inženýrských sítí přímo na jeho části a hranici. Veden je zde plyn, elektřina, obecní vodovodní řad s možností připojení, dále kanalizace a sdělovací kabel společnosti CETIN. Ochranná pásma těchto sítí jsou minimální a neomezují budoucí výstavbu. Díky tomu je pozemek prakticky připraven pro realizaci vašeho vysněného domu bez složitých a nákladných úprav.
V roce 2025 byl na pozemku proveden geologický průzkum, hydrogeologický průzkum a architektonická studie, které jsou na vyžádání k dispozici.
Swiss Life Select vám k této nabídce navíc poskytne možnost vypracování nezávislého srovnání hypoték a individuálního finančního plánu. Díky našim exkluzivním podmínkám u finančních institucí dokážeme zajistit to nejvýhodnější financování vaší nové nemovitosti.
Pomocí naší hypoteční kalkulačky si můžete udělat orientační představu o výši měsíčních splátek hypotéky. O vše ostatní se pak postaráme my ve spolupráci s našimi obchodními partnery.
7 126 Kč
* Odhadovaná měsíční splátka vychází z výše úvěru Kč s pevnou úrokovou sazbou % po celou dobu trvání úvěru.
Uživatel serveru RealityMIX.cz (dále jen „Server“) dostupného na internetové adrese (URL) https://www.realitymix.cz, který provozuje společnost DALTEN media s.r.o., se sídlem Na Harfě 916/9a, Praha 9, 190 00, IČO: 271 35 306 (dále jen „Správce“) jako provozovateli tohoto Serveru uděluje svůj výslovný souhlas v souladu s ustanovením § 5 zákona č. 101/2000 Sb. O ochraně osobních údajů a o změně některých zákonů, v platném znění (dále jen „zákon o ochraně osobních údajů“), se zpracováním uživatelem poskytnutých osobních údajů a dalších dat.
Uživatel poskytuje Správci osobní údaje v rozsahu: jméno, příjmení, e-mailová adresa, telefonický kontakt a další data, a to z důvodu projeveného zájmu o nemovitost, kde prostřednictvím služby Serveru Správce osloví Uživatel inzerenta uvedeného v detailu
nemovitosti - Swiss Life Select Reality (IČ 24260444) se zájmem o jeho služby. Tato společnost je součástí seskupení/sítě/franšízového modelu realitních kanceláří, jejich seznam můžete zobrazit kliknutím na tento odkaz.
Fincentrum a.s. (IČ 24260444) , Swiss Life Select Reality (IČ 24260444)
Uživatel tyto osobní údaje poskytuje dobrovolně a bere na vědomí, že součástí služeb Správce, které Správce Uživateli poskytuje, je vyhledání všech Uživateli vyhovujících (dle parametrů - cena, typ nemovitosti, lokalita atd.) nemovitostí. Správce za tímto účelem provozuje aplikace Hlídací pes a newsletter. Tyto služby je možné z každého zaslaného emailu odhlásit. Souhlas se zpracováním osobních údajů Uživatel poskytuje Správci na dobu neurčitou s tím, že svůj udělený souhlas může Uživatel kdykoliv na drese správce info@realitymix.cz odvolat. Správce garantuje Uživateli i další práva uvedené v ustanovení §11 a §21 zákoba č. 101/200 Sb. Ve znění pozdějších předpisů.
Více informací o zpracování údajů získáte zde (realitymix.cz/zasady-ochrany-osobnich-udaju)