Rodinný dům k rekonstrukci s velkým pozemkem – Lubník u Lanškrouna
Nabízíme ke koupi samostatně stojící rodinný dům s užitnou dispozicí 4+1, který se nachází na okraji obce Lubník, jen několik minut jízdy od Lanškrouna. Tato lokalita nabízí klidné venkovské prostředí obklopené přírodou, ideální pro rodinné bydlení nebo rekreační využití.
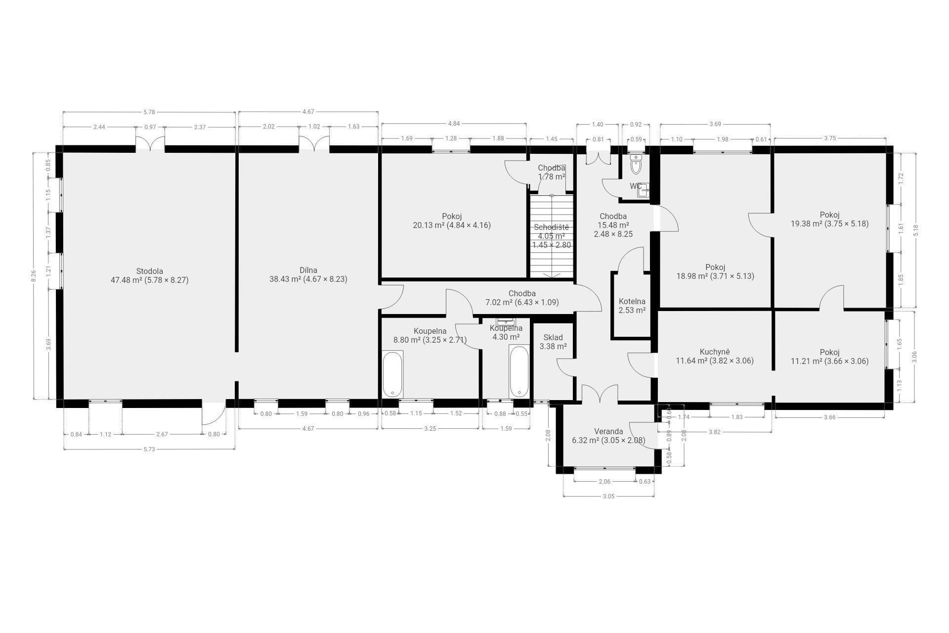
Dům je v původním, technicky horším stavu a je určen ke kompletní rekonstrukci. Nabízí však pevný základ pro vytvoření komfortního a prostorného domova. K dispozici jsou čtyři obytné místnosti, kuchyně, dvě koupelny, samostatné WC, chodby, spíž, sklad, kotelna a technické zázemí. Velkým benefitem jsou prostorné půdní prostory vhodné pro vestavbu dalších pokojů. Na dům navazuje také dílna a velká stodola, která rozšiřuje možnosti využití nemovitosti.
Dům je napojen na obecní vodovod, vytápění zajišťuje plynový kotel a alternativně také kotel na tuhá paliva. Pozemek o celkové výměře 2 518 m² poskytuje dostatek místa pro zahradu, chov zvířat či výstavbu dalších objektů.
Nemovitost je vhodná pro zájemce, kteří hledají klidné místo k životu s možností vlastního přetvoření domu na míru, případně jako investici do budoucna.
Pomocí naší hypoteční kalkulačky si můžete udělat orientační představu o výši měsíčních splátek hypotéky. O vše ostatní se pak postaráme my ve spolupráci s našimi obchodními partnery.
7 267 Kč
* Odhadovaná měsíční splátka vychází z výše úvěru Kč s pevnou úrokovou sazbou % po celou dobu trvání úvěru.
Uživatel serveru RealityMIX.cz (dále jen „Server“) dostupného na internetové adrese (URL) https://www.realitymix.cz, který provozuje společnost DALTEN media s.r.o., se sídlem Na Harfě 916/9a, Praha 9, 190 00, IČO: 271 35 306 (dále jen „Správce“) jako provozovateli tohoto Serveru uděluje svůj výslovný souhlas v souladu s ustanovením § 5 zákona č. 101/2000 Sb. O ochraně osobních údajů a o změně některých zákonů, v platném znění (dále jen „zákon o ochraně osobních údajů“), se zpracováním uživatelem poskytnutých osobních údajů a dalších dat.
Uživatel poskytuje Správci osobní údaje v rozsahu: jméno, příjmení, e-mailová adresa, telefonický kontakt a další data, a to z důvodu projeveného zájmu o nemovitost, kde prostřednictvím služby Serveru Správce osloví Uživatel inzerenta uvedeného v detailu
nemovitosti - Ing. Josef Fuchs, MBA (IČ 87130726) se zájmem o jeho služby.
Uživatel tyto osobní údaje poskytuje dobrovolně a bere na vědomí, že součástí služeb Správce, které Správce Uživateli poskytuje, je vyhledání všech Uživateli vyhovujících (dle parametrů - cena, typ nemovitosti, lokalita atd.) nemovitostí. Správce za tímto účelem provozuje aplikace Hlídací pes a newsletter. Tyto služby je možné z každého zaslaného emailu odhlásit. Souhlas se zpracováním osobních údajů Uživatel poskytuje Správci na dobu neurčitou s tím, že svůj udělený souhlas může Uživatel kdykoliv na drese správce info@realitymix.cz odvolat. Správce garantuje Uživateli i další práva uvedené v ustanovení §11 a §21 zákoba č. 101/200 Sb. Ve znění pozdějších předpisů.
Více informací o zpracování údajů získáte zde (realitymix.cz/zasady-ochrany-osobnich-udaju)