Prodej dvou ubytovacích zařízení 968 m2 užitné plochy, s pozemkem 4150 m2, Lučany nad Nisou
Váš sen o podnikání v srdci Jizerských hor se stává skutečností! Exkluzivní nabídka dvou rekreačních objektů v Lučanech nad Nisou. Představujeme vám jedinečnou investiční příležitost v malebné lokalitě Lučan nad Nisou, ideální brány do Jizerských hor. Tento rozsáhlý areál, obklopený horami, lesy a panenskou přírodou, nabízí dvě samostatné budovy s celkovým pozemkem o výměře 4150 m2. Připraveno pro okamžitý provoz a generování zisku, s flexibilním využitím pro krátkodobé i dlouhodobé pobyty.
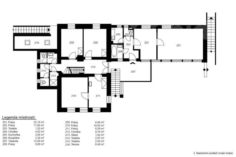
Hlavní chata - centrum zážitků (Užitná plocha 715 m2 + 90 m2 terasy): Dominantou areálu je prostorná hlavní chata, zčásti zděná (suterén a přízemí) a zčásti dřevěná (patro a podkroví). Její impozantní rozměry a vybavení ji předurčují pro skupinové akce, firemní teambuildingy, školy v přírodě nebo rodinné srazy.
Gurmánské zázemí: Plně zařízená profesionální kuchyň pro přípravu plné penze, velká jídelna s kapacitou 60 osob a oddělený bar pro 30 osob. K dispozici je i samostatná kuchyň pro vlastní vaření hostů.
Ubytování: 13 pokojů v patrech se společným sociálním zařízením na chodbě.
Zábava a relax: Dětský koutek, lyžárna a rozlehlá terasa pro více než 50 osob.
Technické zázemí: Prostorný suterén zajišťuje bezproblémový provoz.
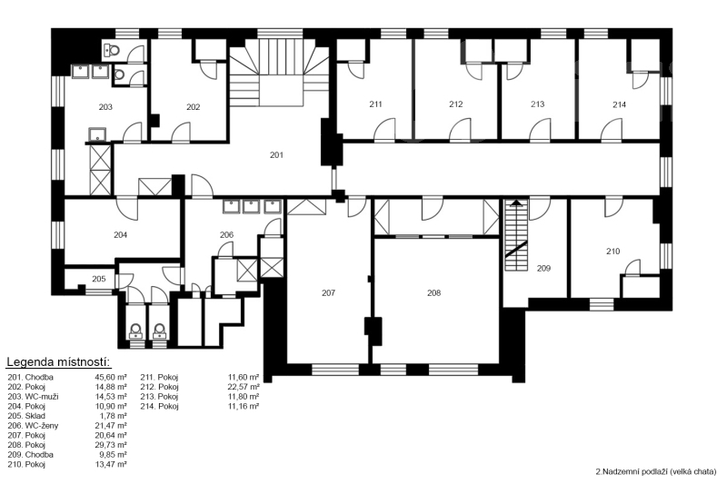
Druhá chata - soukromí a flexibilita (Užitná plocha 253 m2;): Třípodlažní chata nabízí větší míru soukromí a variability ubytování.
Přízemí: Lyžárna, sklady, garáže a jeden samostatný obytný pokoj (24 m2) s vlastním sociálním zařízením.
Druhé podlaží: Dva pokoje a apartmán v hlavní části, v přístavbě pak další prostorný apartmán se dvěma pokoji, samostatnou kuchyňkou, koupelnou a toaletou.
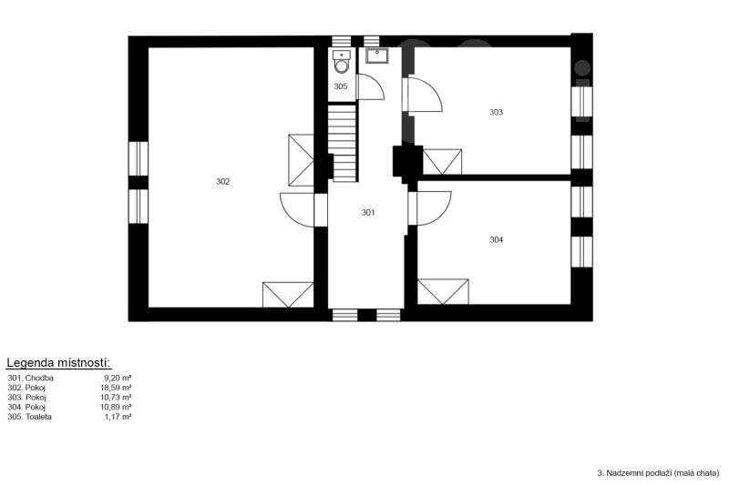
Podkroví: Další tři pokoje. Tato chata je ideální pro menší skupiny, rodiny nebo jako doplňkové ubytování k hlavnímu objektu.
Potenciál, který se nabízí: Oba objekty, oddělené obecní komunikací, mohou fungovat nezávisle, což otevírá dveře k mnoha podnikatelským modelům. Nemovitosti jsou v původním, avšak pečlivě udržovaném stavu, vybaveny novými plastovými okny a novou kotelnou. Prodávají se kompletně zařízené, připravené k okamžitému převzetí a provozu.
A co dál? Vaše vize pro Jizerské hory:
Wellness a relaxační centrum: Proměňte areál v oázu klidu s možností saun, vířivek či masáží, lákající individuální i firemní klientelu.
Sportovní akademie/rekondiční pobyty: Díky poloze přímo u turistických, cyklistických a běžkařských tras je areál ideální pro sportovní soustředění, kempy či rehabilitační pobyty.
Umělecké workshopy/retreaty: Inspirující přírodní prostředí pro kreativní setkání a tvůrčí dílny.
Rodinné sídlo s příjmem: Bydlete v jedné chatě a druhou pronajímejte pro generování stabilního příjmu.
Kombinace privátního ubytování a služeb: Nabídka prémiových apartmánů v kombinaci s prostory pro akce a firemní prezentace.
Financování: Za určitých podmínek je možné financování hypotékou. Případně zajistíme jiné financování.
Nenechte si ujít tuto výjimečnou šanci! Pro více informací nás neváhejte kontaktovat.
Pomocí naší hypoteční kalkulačky si můžete udělat orientační představu o výši měsíčních splátek hypotéky. O vše ostatní se pak postaráme my ve spolupráci s našimi obchodními partnery.
74 902 Kč
* Odhadovaná měsíční splátka vychází z výše úvěru Kč s pevnou úrokovou sazbou % po celou dobu trvání úvěru.
Uživatel serveru RealityMIX.cz (dále jen „Server“) dostupného na internetové adrese (URL) https://www.realitymix.cz, který provozuje společnost DALTEN media s.r.o., se sídlem Na Harfě 916/9a, Praha 9, 190 00, IČO: 271 35 306 (dále jen „Správce“) jako provozovateli tohoto Serveru uděluje svůj výslovný souhlas v souladu s ustanovením § 5 zákona č. 101/2000 Sb. O ochraně osobních údajů a o změně některých zákonů, v platném znění (dále jen „zákon o ochraně osobních údajů“), se zpracováním uživatelem poskytnutých osobních údajů a dalších dat.
Uživatel poskytuje Správci osobní údaje v rozsahu: jméno, příjmení, e-mailová adresa, telefonický kontakt a další data, a to z důvodu projeveného zájmu o nemovitost, kde prostřednictvím služby Serveru Správce osloví Uživatel inzerenta uvedeného v detailu
nemovitosti - Bidli reality, a.s. (IČ 06790763) se zájmem o jeho služby. Tato společnost je součástí seskupení/sítě/franšízového modelu realitních kanceláří, jejich seznam můžete zobrazit kliknutím na tento odkaz.
Hypocentrum modré pyramidy - Praha (IČ ) , Hypocentrum modré pyramidy - Brno (IČ ) , Hypocentrum Modré pyramidy - Hradec Králové (IČ ) , Hypocentrum Modré pyramidy - České Budějovice (IČ ) , Hypocentrum Modré pyramidy - Pardubice (IČ ) , Hypocentrum Modré pyramidy - Plzeň (IČ ) , Hypocentrum Modré pyramidy - Ústí nad Labem (IČ ) , Hypocentrum Modré pyramidy - Ostrava (IČ ) , Hypocentrum Modré pyramidy - Olomouc (IČ ) , Bidli reality, a.s. (IČ 06790763)
Uživatel tyto osobní údaje poskytuje dobrovolně a bere na vědomí, že součástí služeb Správce, které Správce Uživateli poskytuje, je vyhledání všech Uživateli vyhovujících (dle parametrů - cena, typ nemovitosti, lokalita atd.) nemovitostí. Správce za tímto účelem provozuje aplikace Hlídací pes a newsletter. Tyto služby je možné z každého zaslaného emailu odhlásit. Souhlas se zpracováním osobních údajů Uživatel poskytuje Správci na dobu neurčitou s tím, že svůj udělený souhlas může Uživatel kdykoliv na drese správce info@realitymix.cz odvolat. Správce garantuje Uživateli i další práva uvedené v ustanovení §11 a §21 zákoba č. 101/200 Sb. Ve znění pozdějších předpisů.
Více informací o zpracování údajů získáte zde (realitymix.cz/zasady-ochrany-osobnich-udaju)