Novostavba RD 5+kk v centu Luhačovic o výměře 175 m2 s terasou, zahradou a parkovacím stáním.
Zprostředkujeme Vám výstavbu novostavby rodinného domu 5+kk o celkové podlahové výměře 175 m² s terasou, zahradou a parkovacím místem přímo v srdci Luhačovic.
Představujeme vám jedinečnou příležitost vlastnit moderní a flexibilní dvoupodlažní rodinný dům na klíč, situovaný v samém centru prestižních Luhačovic.
Tato luxusní novostavba splňuje ty nejvyšší nároky na komfortní bydlení a zároveň otevírá neomezené možnosti pro investici a podnikání.
Bydlení, kde se potkává luxus s flexibilitou.
Bydlete v pěší dostupnosti centra města, lázeňské kolonády a veškeré občanské vybavenosti. Život v centru Luhačovic nikdy nebyl pohodlnější.
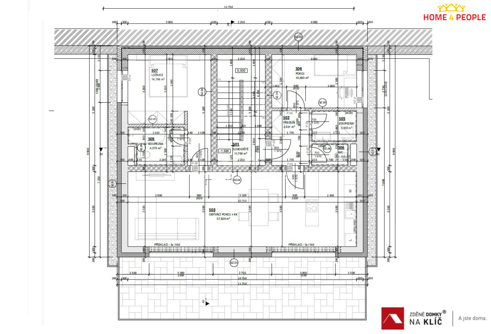
Dům o dispozici 5+kk s promyšleným dvoupodlažním uspořádáním poskytuje dostatek soukromí a prostoru pro velkou rodinu.
Každé podlaží je navrženo pro maximální pohodlí, včetně samostatné koupelny s WC.
Vychutnejte si ranní kávu nebo večerní posezení na prostorné terase s výhledem do privátní zahrady, která tvoří klidnou oázu uprostřed města.
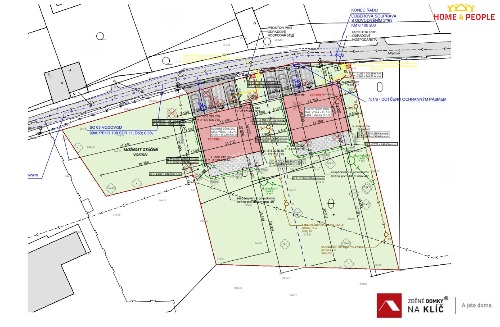
Zajištěno je parkovací stání pro 2 automobily přímo u domu.
Nenechte si ujít tuto exkluzivní šanci vlastnit luxusní rodinnou vilu v jedné z nejvyhledávanějších lázeňských lokalit v Česku.
Ať už hledáte ideální rodinné sídlo, nebo chytrou investiční příležitost, tento dům je připraven splnit vaše sny.
Projekt domu nakreslený a schválený. Stavební povolení vydané, můžeme zahájit stavbu do 14 dnů od podpisu smlouvy.
Pro kompletní specifikace, vizualizace a sjednání osobní schůzky nás neváhejte kontaktovat. Ev. číslo: 32002.
Cena:
13 699 000 Kč
Poznámka:
Cena včetně výstavby domu, kolaudace, pozemku, terasy, parkování a zahrady. Dům č.2.
Pomocí naší hypoteční kalkulačky si můžete udělat orientační představu o výši měsíčních splátek hypotéky. O vše ostatní se pak postaráme my ve spolupráci s našimi obchodními partnery.
55 464 Kč
* Odhadovaná měsíční splátka vychází z výše úvěru Kč s pevnou úrokovou sazbou % po celou dobu trvání úvěru.
Uživatel serveru RealityMIX.cz (dále jen „Server“) dostupného na internetové adrese (URL) https://www.realitymix.cz, který provozuje společnost DALTEN media s.r.o., se sídlem Na Harfě 916/9a, Praha 9, 190 00, IČO: 271 35 306 (dále jen „Správce“) jako provozovateli tohoto Serveru uděluje svůj výslovný souhlas v souladu s ustanovením § 5 zákona č. 101/2000 Sb. O ochraně osobních údajů a o změně některých zákonů, v platném znění (dále jen „zákon o ochraně osobních údajů“), se zpracováním uživatelem poskytnutých osobních údajů a dalších dat.
Uživatel poskytuje Správci osobní údaje v rozsahu: jméno, příjmení, e-mailová adresa, telefonický kontakt a další data, a to z důvodu projeveného zájmu o nemovitost, kde prostřednictvím služby Serveru Správce osloví Uživatel inzerenta uvedeného v detailu
nemovitosti - HOME 4 PEOPLE (IČ 29132886) se zájmem o jeho služby. Tato společnost je součástí seskupení/sítě/franšízového modelu realitních kanceláří, jejich seznam můžete zobrazit kliknutím na tento odkaz.
Dumrealit.cz (IČ 00537861) , HOME 4 PEOPLE (IČ 29132886) , Reality 11 (IČ 29132886) , REAL ESTATE CZECH REPUBLIC a.s. (IČ 29132886) , Národní Realitní Holding a.s. (IČ 02918897)
Uživatel tyto osobní údaje poskytuje dobrovolně a bere na vědomí, že součástí služeb Správce, které Správce Uživateli poskytuje, je vyhledání všech Uživateli vyhovujících (dle parametrů - cena, typ nemovitosti, lokalita atd.) nemovitostí. Správce za tímto účelem provozuje aplikace Hlídací pes a newsletter. Tyto služby je možné z každého zaslaného emailu odhlásit. Souhlas se zpracováním osobních údajů Uživatel poskytuje Správci na dobu neurčitou s tím, že svůj udělený souhlas může Uživatel kdykoliv na drese správce info@realitymix.cz odvolat. Správce garantuje Uživateli i další práva uvedené v ustanovení §11 a §21 zákoba č. 101/200 Sb. Ve znění pozdějších předpisů.
Více informací o zpracování údajů získáte zde (realitymix.cz/zasady-ochrany-osobnich-udaju)