Prodej hrubé stavby RD Maletín s možností dokončení na klíč
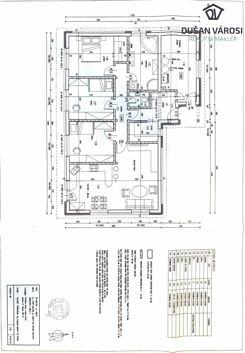
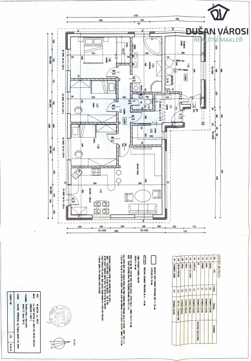
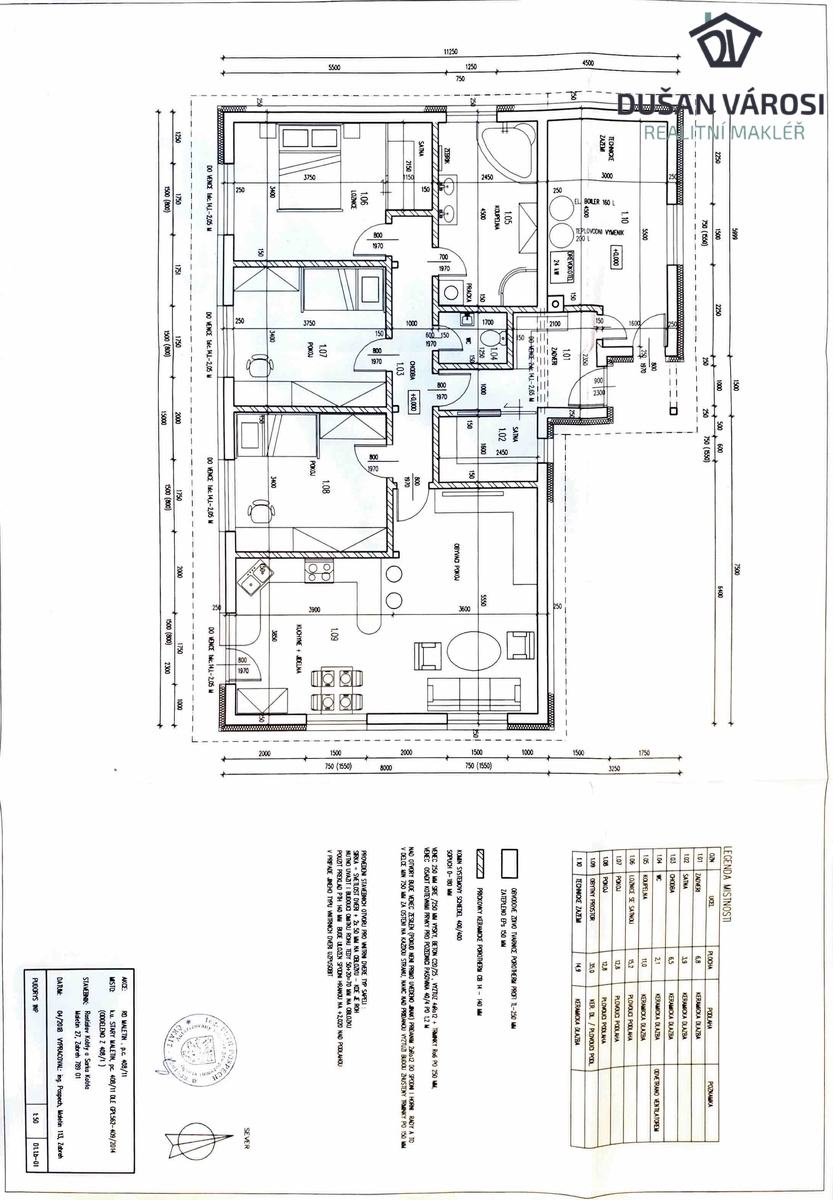
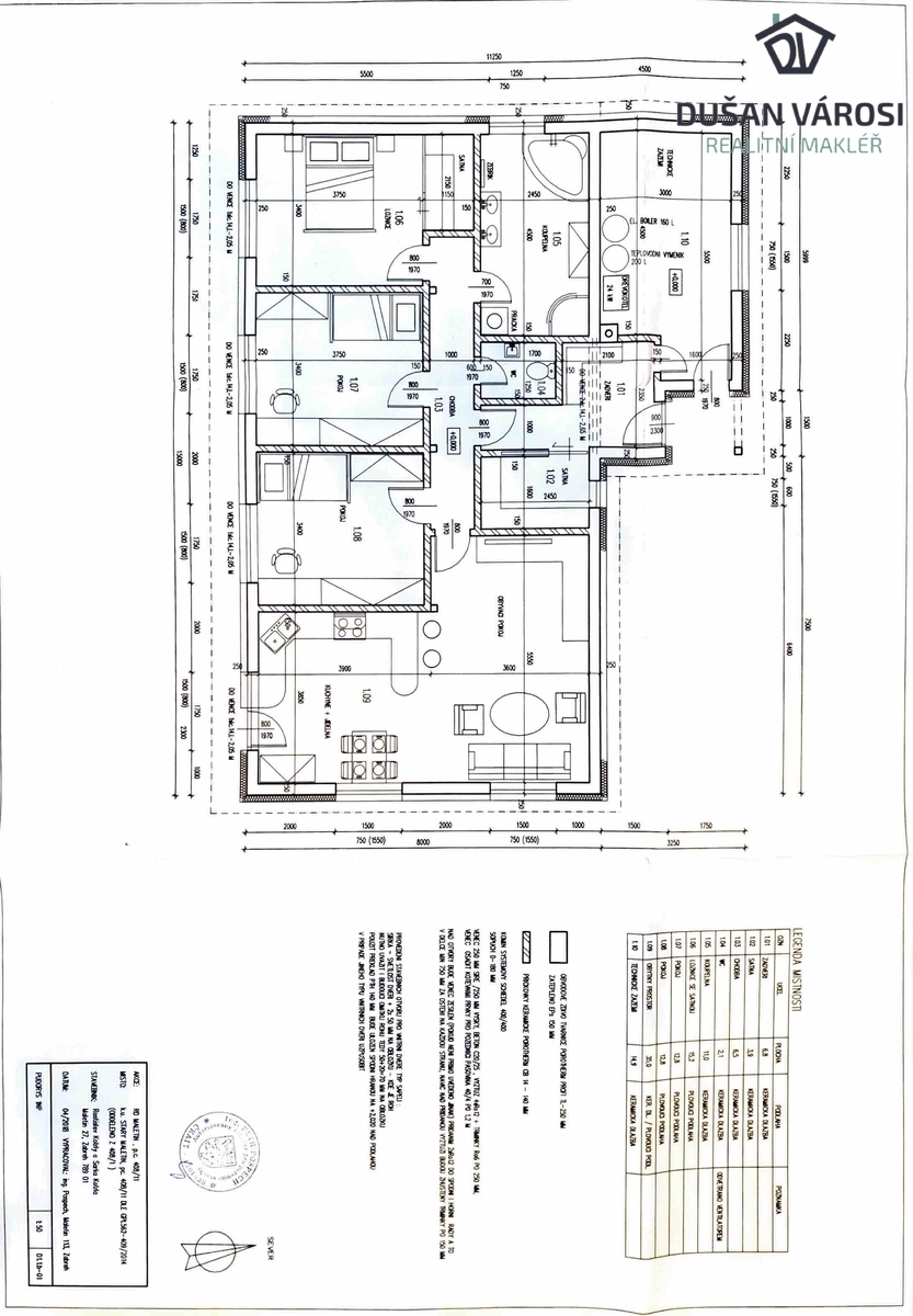
Hrubá stavba jednopodlažního rodinného domu 4+KK s možností dokončení na klíč. Součástí domu je i dvougaráž. Stavba se nachází na pozemku o rozloze 899m2 s přístupem po obecních cestách. V tuto chvíli je cesta připravená - zpevněná. Po dokončení stavby bude položen asfalt (to zajistí obec). Na hranici pozemku je sloup vedení nízkého napětí. Voda bude zajištěna z vlastní studny. Odvod splaškových vod je dotovaný obcí pří zřízení čističky odpadních vod. Plyn není v dosahu. Stavební povolení bylo vydáno v listopadu 2018, není tedy nutná fotovoltaická elektrárna, tepelné čerpadlo, rekuperace ani retenční nádrž na dešťovou vodu. (Celkově tedy nižší náklady na dostavbu domu.) Dům je orientovaný jižně.
Dům je jednopodlažní s plochou střechou krytou falcovaným plechem což jí zajišťuje dlouhou životnost. Oplechovaný je i komín. Trámy střechy i garáže mají finální hoblovanou úpravu, po zateplení domu s nimi není již třeba nic provádět. Stavba stojí na betonové desce a není podsklepená. Obvodové zdivo tvoří tvárnice Porfix tl 250 mm. Výplně oken jsou trojskla. Komín je připravený na osazení kotle na tuhá paliva, přičemž se počítalo s podlahovým vytápěním s okruhem teplé vody. Nicméně je možné využít i tepelné čerpadlo.
V případě zájmu Vás makléř seznámí se stavební dokumentací a možnostmi dostavby domu.
Pomocí naší hypoteční kalkulačky si můžete udělat orientační představu o výši měsíčních splátek hypotéky. O vše ostatní se pak postaráme my ve spolupráci s našimi obchodními partnery.
14 940 Kč
* Odhadovaná měsíční splátka vychází z výše úvěru Kč s pevnou úrokovou sazbou % po celou dobu trvání úvěru.
Uživatel serveru RealityMIX.cz (dále jen „Server“) dostupného na internetové adrese (URL) https://www.realitymix.cz, který provozuje společnost DALTEN media s.r.o., se sídlem Na Harfě 916/9a, Praha 9, 190 00, IČO: 271 35 306 (dále jen „Správce“) jako provozovateli tohoto Serveru uděluje svůj výslovný souhlas v souladu s ustanovením § 5 zákona č. 101/2000 Sb. O ochraně osobních údajů a o změně některých zákonů, v platném znění (dále jen „zákon o ochraně osobních údajů“), se zpracováním uživatelem poskytnutých osobních údajů a dalších dat.
Uživatel poskytuje Správci osobní údaje v rozsahu: jméno, příjmení, e-mailová adresa, telefonický kontakt a další data, a to z důvodu projeveného zájmu o nemovitost, kde prostřednictvím služby Serveru Správce osloví Uživatel inzerenta uvedeného v detailu
nemovitosti - Városi reality (IČ 06837468) se zájmem o jeho služby.
Uživatel tyto osobní údaje poskytuje dobrovolně a bere na vědomí, že součástí služeb Správce, které Správce Uživateli poskytuje, je vyhledání všech Uživateli vyhovujících (dle parametrů - cena, typ nemovitosti, lokalita atd.) nemovitostí. Správce za tímto účelem provozuje aplikace Hlídací pes a newsletter. Tyto služby je možné z každého zaslaného emailu odhlásit. Souhlas se zpracováním osobních údajů Uživatel poskytuje Správci na dobu neurčitou s tím, že svůj udělený souhlas může Uživatel kdykoliv na drese správce info@realitymix.cz odvolat. Správce garantuje Uživateli i další práva uvedené v ustanovení §11 a §21 zákoba č. 101/200 Sb. Ve znění pozdějších předpisů.
Více informací o zpracování údajů získáte zde (realitymix.cz/zasady-ochrany-osobnich-udaju)