Prodej bytu OV 5+1, Brno-venkov, Měnín, CP je 214m2, terasa, sklep
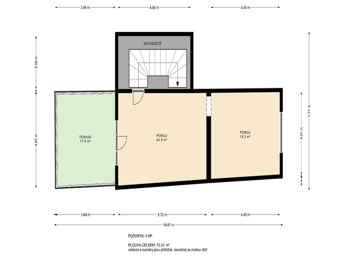
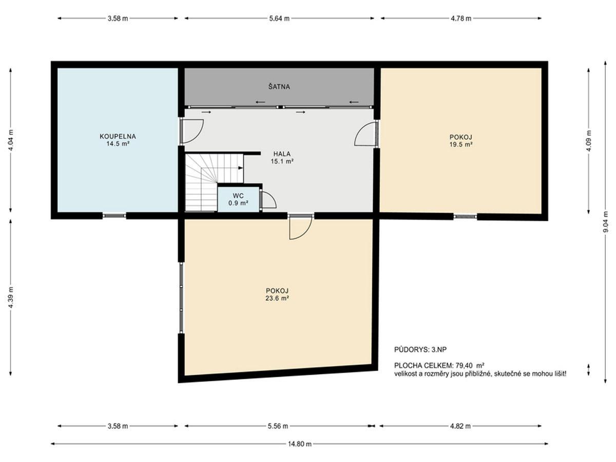
Hledáte opravdu, ale opravdu velký byt s nádechem života na zámku? Tak právě pro vás mám k prodeji zděný, až neuvěřitelně vzdušný, mezonetový, zařízený modernizovaný byt, se stávající dispozicí 5+1 v lokalitě: Brno-venkov, Měnín, 20. min jižně od Brna. Jedná se o bytový dům, pouze se 6.ti. byt. jednotkami v SVJ, v rámci kterého je tento byt charakterem spíše jako RD dle výměry a dispozic. Cp je cca 214m2, v reálu je ještě větší má uctyhodných 258m2, rozprostírá se ve 4. podlažích s terasou a 2-ma sklepy 28m2 +22m2 zahrada ve vnitrobloku. Je možné vestavět vnitřní osobní výtah mezi I. a II.NP. Byt je obyvatelný a v zásadě chybí pouze dokončit v přízemí Kuchyni s jídelnou a násl. (kuchňská linka je již připravena k montáži a v ceně). S dokončením může pomoci sám majitel a to se hodí co říkáte? Dispozice v reálu: (v m2 cca): I.NP- 74,50; a sestává ze Zádveří-3,4; jídelna( pokoj č.1) + kuchyň- 40,4m2; bonusový pokoj č.2. 22,3; Koupelna č.1 a WC-6,9; Komora-1,5 II.NP- 31,40; a sestává z: Pokoj č.3- 21,5; Pokoj č.4 -9,9; + Terasa-12,9; III.NP- 71,60; a sestává z: pokoj č.5-16,4; šatna-4,8; Koupelna č.II-12,2; Samost. 2.WC-1,1; Pokoj č.5-15,6; Pokoj č.6-21,5; -I.NP- 50,2; sklep 28; a bonusový sklep 22,1; Jako bonus nabízíme při rychlém jednání rozšíření na 6+1 a dva sklepy viz popis. Tz. o pokoj v přízemí navazující na jídelnu, (pokoj č.1) + 22,3m2 a druhý sklep + 22,1m2
k bytu náleží také podíl na zahradě a vlastní parkovací místo na jinak prostorném parkovišti před domem, zastávka IDS v blízkosti. Cena za m2 spolu s bonusy v základu je příznivá: 24.420Kč/m2
A teď si představte, že do centra Brna je to IDS cca 20. min. O tom, že bytový dům je napojen na všechny IS a byt je orientován do klidu s pěkným výhledem považuji za samozřejmost. K dispozici ihned po zaplacení. Pro prohlídku volejte makléře, než vás předběhnou ostatní.
Pomocí naší hypoteční kalkulačky si můžete udělat orientační představu o výši měsíčních splátek hypotéky. O vše ostatní se pak postaráme my ve spolupráci s našimi obchodními partnery.
25 507 Kč
* Odhadovaná měsíční splátka vychází z výše úvěru Kč s pevnou úrokovou sazbou % po celou dobu trvání úvěru.
Prodáváte nemovitost a potřebujete zjistit její reálnou hodnotu?
Uživatel serveru RealityMIX.cz (dále jen „Server“) dostupného na internetové adrese (URL) https://www.realitymix.cz, který provozuje společnost DALTEN media s.r.o., se sídlem Na Harfě 916/9a, Praha 9, 190 00, IČO: 271 35 306 (dále jen „Správce“) jako provozovateli tohoto Serveru uděluje svůj výslovný souhlas v souladu s ustanovením § 5 zákona č. 101/2000 Sb. O ochraně osobních údajů a o změně některých zákonů, v platném znění (dále jen „zákon o ochraně osobních údajů“), se zpracováním uživatelem poskytnutých osobních údajů a dalších dat.
Uživatel poskytuje Správci osobní údaje v rozsahu: jméno, příjmení, e-mailová adresa, telefonický kontakt a další data, a to z důvodu projeveného zájmu o nemovitost, kde prostřednictvím služby Serveru Správce osloví Uživatel inzerenta uvedeného v detailu
nemovitosti - Roman Kvasnica realitní makléř (IČ 70411301) se zájmem o jeho služby.
Uživatel tyto osobní údaje poskytuje dobrovolně a bere na vědomí, že součástí služeb Správce, které Správce Uživateli poskytuje, je vyhledání všech Uživateli vyhovujících (dle parametrů - cena, typ nemovitosti, lokalita atd.) nemovitostí. Správce za tímto účelem provozuje aplikace Hlídací pes a newsletter. Tyto služby je možné z každého zaslaného emailu odhlásit. Souhlas se zpracováním osobních údajů Uživatel poskytuje Správci na dobu neurčitou s tím, že svůj udělený souhlas může Uživatel kdykoliv na drese správce info@realitymix.cz odvolat. Správce garantuje Uživateli i další práva uvedené v ustanovení §11 a §21 zákoba č. 101/200 Sb. Ve znění pozdějších předpisů.
Více informací o zpracování údajů získáte zde (realitymix.cz/zasady-ochrany-osobnich-udaju)