Prodej bytu OV 7+2, Brno-venkov, Měnín, CP je 246m2, terasa, 12m2, 2. sklepy 38m2
Hledáte opravdu velký byt s nádechem života na zámku? Tak právě pro vás mám k prodeji zděný, až neuvěřitelně vzdušný, mezonetový, zařízený byt, v OV s dispozicí 7+2 v lokalitě: Brno-venkov, Měnín, 20. min jižně od Brna IDS. Cp je cca 246m2, rozprostírá se ve 3. podlažích s terasou a přiměřenými sklepními prostorami 28m2 a 12m2 + zahrada ve vnitrobloku. A co takhle jestli je možné vestavět vnitřní osobní výtah? Ano samozřejmě. Cenově se s bytem 20 min od Brna dostáváme na krásných cca 28.000 Kč/m2. Což ve srovnání s nedalekým Brnem u nové výstavby je i 120-140.000Kč/m2. Co k tomu dodat.
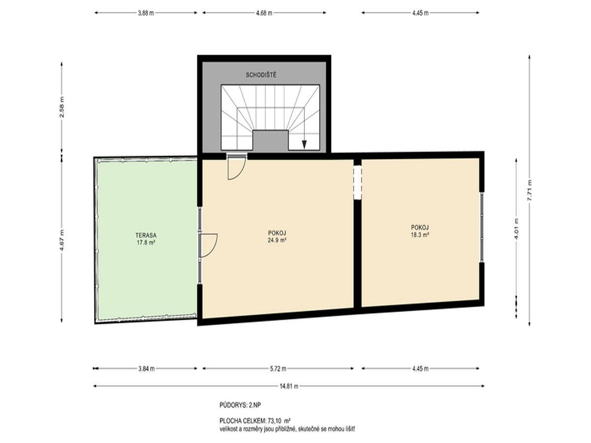
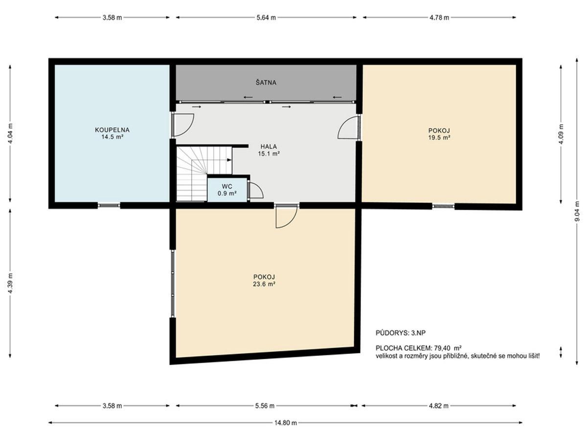
Dispozice: (v m2):
I.NP- 52,2; a sestává ze Zádveří-3,4; Pokoj + kuchyň- 40,5m2; Koupelna č.1 a WC-6,9; Komora-1,5; + b. 1+1 -40; s vlastní kuchyní WC koupelnou s vanou, vchodem z ulice a sklepem. V současnosti stavebně propojen na úrovni přízemí s bytem 5+1 (není na půdorysu ještě zakreslena, propojení dveřmi přes červenou stěnu)
III.NP- 71,6; a sestává z: Hala-16,4; šatna-4,8; Koupelna č.II-12,2; Samost. 2.WC-1,1; Pokoj č.4-15,6; Pokoj č.5-21,5; celkem tedy 213,6m2. + sklep + terasa, -INP sklep 28;
K bytu náleží velké sklepy 28 a12; k bytu náleží také podíl na zahradě a vlastní parkovací místo na jinak prostorném parkovišti před domem, zastávka IDS v blízkosti. A teď si představte, že do centra Brna je to IDS cca 20. min. Dům je napojen na všechny IS a byt je orientován do klidu s pěkným výhledem. K dispozici ihned. Při rychlém jednání výrazná sleva.
Pomocí naší hypoteční kalkulačky si můžete udělat orientační představu o výši měsíčních splátek hypotéky. O vše ostatní se pak postaráme my ve spolupráci s našimi obchodními partnery.
27 936 Kč
* Odhadovaná měsíční splátka vychází z výše úvěru Kč s pevnou úrokovou sazbou % po celou dobu trvání úvěru.
Prodáváte nemovitost a potřebujete zjistit její reálnou hodnotu?
Uživatel serveru RealityMIX.cz (dále jen „Server“) dostupného na internetové adrese (URL) https://www.realitymix.cz, který provozuje společnost DALTEN media s.r.o., se sídlem Na Harfě 916/9a, Praha 9, 190 00, IČO: 271 35 306 (dále jen „Správce“) jako provozovateli tohoto Serveru uděluje svůj výslovný souhlas v souladu s ustanovením § 5 zákona č. 101/2000 Sb. O ochraně osobních údajů a o změně některých zákonů, v platném znění (dále jen „zákon o ochraně osobních údajů“), se zpracováním uživatelem poskytnutých osobních údajů a dalších dat.
Uživatel poskytuje Správci osobní údaje v rozsahu: jméno, příjmení, e-mailová adresa, telefonický kontakt a další data, a to z důvodu projeveného zájmu o nemovitost, kde prostřednictvím služby Serveru Správce osloví Uživatel inzerenta uvedeného v detailu
nemovitosti - Roman Kvasnica realitní makléř (IČ 70411301) se zájmem o jeho služby.
Uživatel tyto osobní údaje poskytuje dobrovolně a bere na vědomí, že součástí služeb Správce, které Správce Uživateli poskytuje, je vyhledání všech Uživateli vyhovujících (dle parametrů - cena, typ nemovitosti, lokalita atd.) nemovitostí. Správce za tímto účelem provozuje aplikace Hlídací pes a newsletter. Tyto služby je možné z každého zaslaného emailu odhlásit. Souhlas se zpracováním osobních údajů Uživatel poskytuje Správci na dobu neurčitou s tím, že svůj udělený souhlas může Uživatel kdykoliv na drese správce info@realitymix.cz odvolat. Správce garantuje Uživateli i další práva uvedené v ustanovení §11 a §21 zákoba č. 101/200 Sb. Ve znění pozdějších předpisů.
Více informací o zpracování údajů získáte zde (realitymix.cz/zasady-ochrany-osobnich-udaju)