Na prodej nabízíme řadový rodinný dům se dvěmi bytovými jednotkami v oblíbeném městysi Měřín, přímo u Velkého Meziříčí a s perfektním napojením na dál nici D1, za pár minut jste na cestě do Brna i do Prahy.
Dům vlastní družstvo, je tedy možné převést družstevní podíl po zaplacení kupní ceny 4 930 000 Kč a dále splácet anuitu ve formě nájmu ve výši 26 546 Kč/měsíčně. V případě převodu do osobního vlastnictví je možné doplatit anuitu najednou. Anuita je cca 3 570 000 Kč. Přesně bude vyčíslena ke konkrétnímu datu, stále se snižuje splácením.
Při převodu družstevního podílu není třeba dokládat příjem.
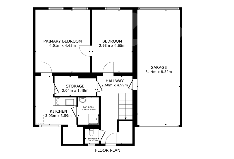
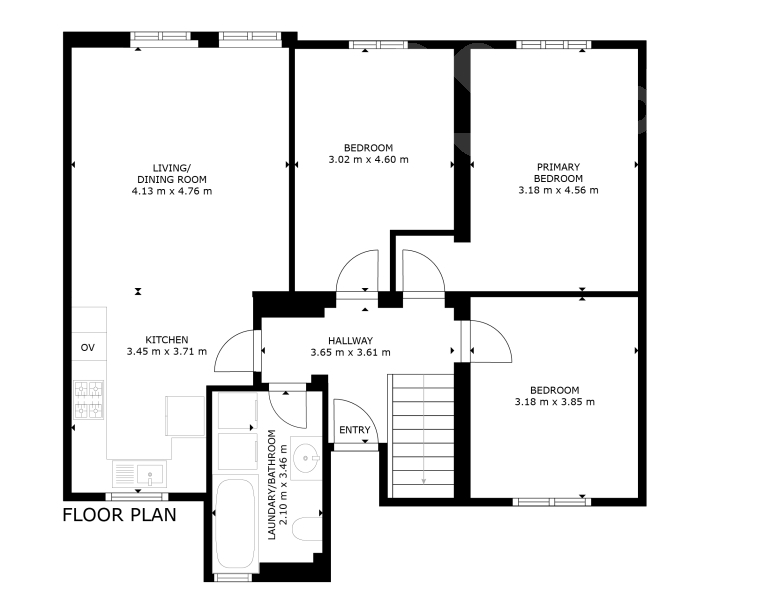
Dům se prodává včetně vybavení, které vidíte na fotografiích, je dispozičně řešen jako dvougenerační, nabízí dvě samostatné bytové jednotky (2+1 v přízemí a 4+1 v patře). Horní patro prošlo kompletní rekonstrukcí před dvěma lety-moderní kuchyně, koupelna v mramorovém stylu, světlé podlahy a elegantní detaily, které zaujmou na první pohled.
Nemovitost má dvě nadzemní podlaží, garáž a malý dvorek. Celková užitná plocha činí 143 m2, pozemek má 150 m2. Díky rozložení místností je dům vhodný nejen pro rodinné bydlení, ale i jako vícegenerační či investiční příležitost.
Ráda na vyžádání zašlu fotky půdy, protože ta má velký potenciál pro vybudování dalších prostor!
Součástí inzerátu je i virtuální prohlídka, kterou naleznete v galerii a vrchní patro si můžete projít z pohodlí domova.
Výhody domu:
- skvělá poloha v centru Měřína, pěší dostupnost obchodů a služeb
- dálnice D1 jen pár minut autem
- zrekonstruované horní patro (moderní standard)
- dvě bytové jednotky - možnost dvougeneračního bydlení
- garáž a praktický dvorek
Pro více informací mě neváhejte kontaktovat.
PENB je ve zpracování, proto je nyní uveden a třída G.
Cena:
4 930 000 Kč
Poznámka:
převod družstevního podílu, dál se splácí formou nájmu
Pomocí naší hypoteční kalkulačky si můžete udělat orientační představu o výši měsíčních splátek hypotéky. O vše ostatní se pak postaráme my ve spolupráci s našimi obchodními partnery.
19 960 Kč
* Odhadovaná měsíční splátka vychází z výše úvěru Kč s pevnou úrokovou sazbou % po celou dobu trvání úvěru.
Uživatel serveru RealityMIX.cz (dále jen „Server“) dostupného na internetové adrese (URL) https://www.realitymix.cz, který provozuje společnost DALTEN media s.r.o., se sídlem Na Harfě 916/9a, Praha 9, 190 00, IČO: 271 35 306 (dále jen „Správce“) jako provozovateli tohoto Serveru uděluje svůj výslovný souhlas v souladu s ustanovením § 5 zákona č. 101/2000 Sb. O ochraně osobních údajů a o změně některých zákonů, v platném znění (dále jen „zákon o ochraně osobních údajů“), se zpracováním uživatelem poskytnutých osobních údajů a dalších dat.
Uživatel poskytuje Správci osobní údaje v rozsahu: jméno, příjmení, e-mailová adresa, telefonický kontakt a další data, a to z důvodu projeveného zájmu o nemovitost, kde prostřednictvím služby Serveru Správce osloví Uživatel inzerenta uvedeného v detailu
nemovitosti - Bidli reality, a.s. (IČ 06790763) se zájmem o jeho služby. Tato společnost je součástí seskupení/sítě/franšízového modelu realitních kanceláří, jejich seznam můžete zobrazit kliknutím na tento odkaz.
Hypocentrum modré pyramidy - Praha (IČ ) , Hypocentrum modré pyramidy - Brno (IČ ) , Hypocentrum Modré pyramidy - Hradec Králové (IČ ) , Hypocentrum Modré pyramidy - České Budějovice (IČ ) , Hypocentrum Modré pyramidy - Pardubice (IČ ) , Hypocentrum Modré pyramidy - Plzeň (IČ ) , Hypocentrum Modré pyramidy - Ústí nad Labem (IČ ) , Hypocentrum Modré pyramidy - Ostrava (IČ ) , Hypocentrum Modré pyramidy - Olomouc (IČ ) , Bidli reality, a.s. (IČ 06790763)
Uživatel tyto osobní údaje poskytuje dobrovolně a bere na vědomí, že součástí služeb Správce, které Správce Uživateli poskytuje, je vyhledání všech Uživateli vyhovujících (dle parametrů - cena, typ nemovitosti, lokalita atd.) nemovitostí. Správce za tímto účelem provozuje aplikace Hlídací pes a newsletter. Tyto služby je možné z každého zaslaného emailu odhlásit. Souhlas se zpracováním osobních údajů Uživatel poskytuje Správci na dobu neurčitou s tím, že svůj udělený souhlas může Uživatel kdykoliv na drese správce info@realitymix.cz odvolat. Správce garantuje Uživateli i další práva uvedené v ustanovení §11 a §21 zákoba č. 101/200 Sb. Ve znění pozdějších předpisů.
Více informací o zpracování údajů získáte zde (realitymix.cz/zasady-ochrany-osobnich-udaju)