Prodej rodinného domu 721 m² k rekonstrukci, Miroslav
Hledáte zajímavou investici na jihu Moravy kousek od hranic s Rakouskem s vynikající dostupností služeb a zároveň přírody? Podívejte se na tuto nabídku.
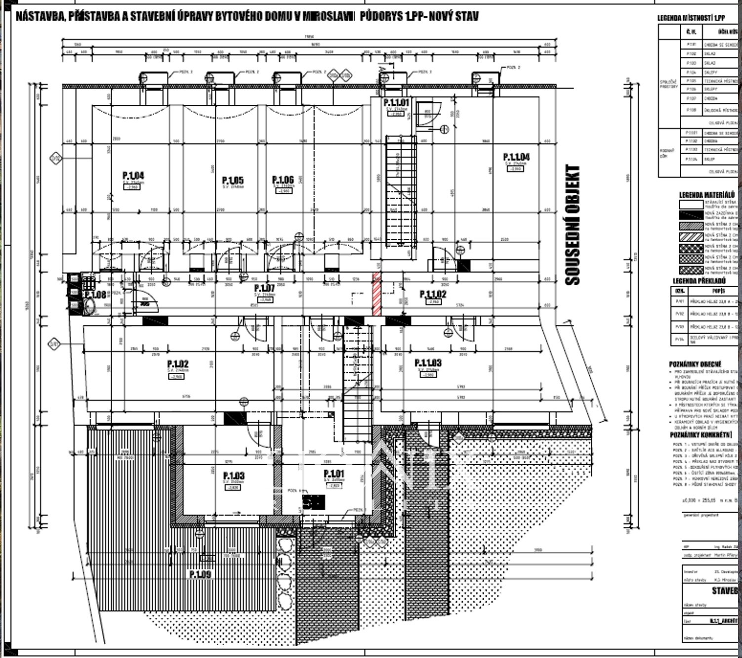
Původní rodinný dům je navrženo přestavět na dva samostatné RD. Bude se v něm nacházet RD a 3 bytové jednotky.
Jedná se o změnu dokončené stavby.
Objekt se nachází v zastavěném území obce. Pozemek je rovinatý. Postaven je v řadové zástavbě, přístup do objektu bude orientován na jih, přístup na pozemek bude umístěn na jižní straně parcely. Navržen je jako dvoupodlažní, nepodsklepený, stavba je zděná zakončená je sedlovou střechou z vaznicové soustavy. Půdorys objektu RD je obdélníkový s vnějšími rozměry cca 10x8 m. Střecha bude plochá jednoplášťová.
Objekt S01
Napojení na místní komunikaci bude ze severní strany z ulice Mlýnská. Parkování zajištěno na pozemku 3 venkovními stáními na zpevněné ploše. Vstup do domu je ze severní strany z venkovního parkoviště. V prvním podzemním podlaží se nachází sklep, hlavní vstup s chodbou, technická místnost, schodiště do 1.NP. V 1.NP se nachází ložnice, obývací pokoj s kuchyní, koupelna a chodba se schodištěm do 2.NP.
V 2.NP se nachází dvě ložnice, koupelna a chodba se schodištěm.
Objekt S02
Napojení na místní komunikaci bude ze severní strany z ulice Mlýnská. Parkování zajištěno na pozemku 4 venkovními stáními na zpevněné ploše. Vstup do domu je ze severní strany z venkovního parkoviště. V prvním podzemním podlaží se nachází sklepy, skaldy, hlavní vstup s chodbou, technická místnost, úklidová místnost, schodiště do 1.NP. V 1.NP se nachází 2 bytové jednotky. Dvě o velikostech 2+kk. V každé bytové jednotce se nachází koupelna s WC. V 2.NP se nachází 1 bytová jednotka o velikosti 4+1. V bytové jednotce se nachází koupelna s WC. Bytová jednotka má k dispozici venkovní terasu.
Celý dům i s pozemkem se nabízí v rozestavěném stavu s projektem, technickou správou, půdorysy atd..
Pomocí naší hypoteční kalkulačky si můžete udělat orientační představu o výši měsíčních splátek hypotéky. O vše ostatní se pak postaráme my ve spolupráci s našimi obchodními partnery.
16 094 Kč
* Odhadovaná měsíční splátka vychází z výše úvěru Kč s pevnou úrokovou sazbou % po celou dobu trvání úvěru.
Uživatel serveru RealityMIX.cz (dále jen „Server“) dostupného na internetové adrese (URL) https://www.realitymix.cz, který provozuje společnost DALTEN media s.r.o., se sídlem Na Harfě 916/9a, Praha 9, 190 00, IČO: 271 35 306 (dále jen „Správce“) jako provozovateli tohoto Serveru uděluje svůj výslovný souhlas v souladu s ustanovením § 5 zákona č. 101/2000 Sb. O ochraně osobních údajů a o změně některých zákonů, v platném znění (dále jen „zákon o ochraně osobních údajů“), se zpracováním uživatelem poskytnutých osobních údajů a dalších dat.
Uživatel poskytuje Správci osobní údaje v rozsahu: jméno, příjmení, e-mailová adresa, telefonický kontakt a další data, a to z důvodu projeveného zájmu o nemovitost, kde prostřednictvím služby Serveru Správce osloví Uživatel inzerenta uvedeného v detailu
nemovitosti - Lionix reality (IČ 27716007) se zájmem o jeho služby.
Uživatel tyto osobní údaje poskytuje dobrovolně a bere na vědomí, že součástí služeb Správce, které Správce Uživateli poskytuje, je vyhledání všech Uživateli vyhovujících (dle parametrů - cena, typ nemovitosti, lokalita atd.) nemovitostí. Správce za tímto účelem provozuje aplikace Hlídací pes a newsletter. Tyto služby je možné z každého zaslaného emailu odhlásit. Souhlas se zpracováním osobních údajů Uživatel poskytuje Správci na dobu neurčitou s tím, že svůj udělený souhlas může Uživatel kdykoliv na drese správce info@realitymix.cz odvolat. Správce garantuje Uživateli i další práva uvedené v ustanovení §11 a §21 zákoba č. 101/200 Sb. Ve znění pozdějších předpisů.
Více informací o zpracování údajů získáte zde (realitymix.cz/zasady-ochrany-osobnich-udaju)