Prodej rodinného domu 147 m², Mirovice, okres Písek
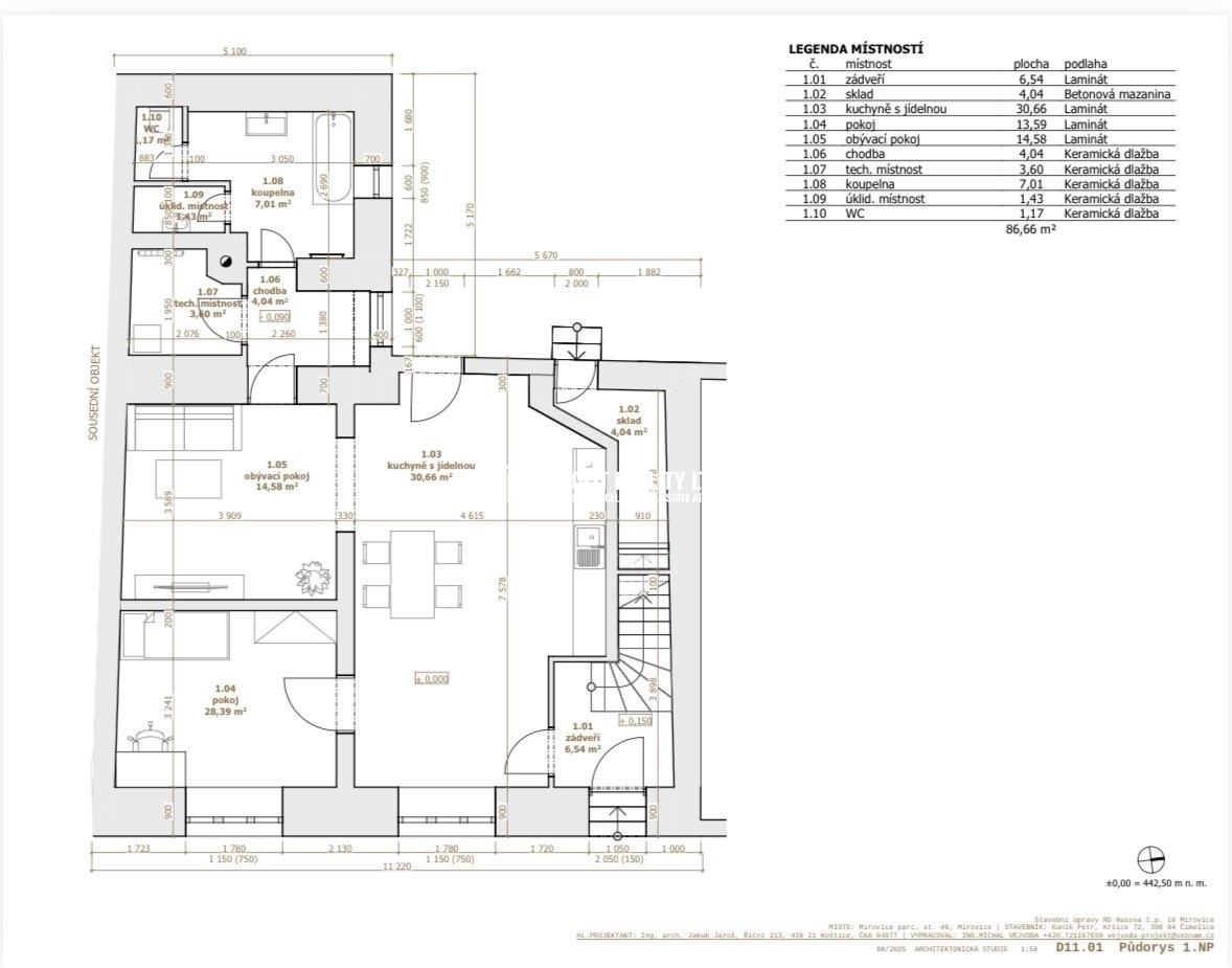
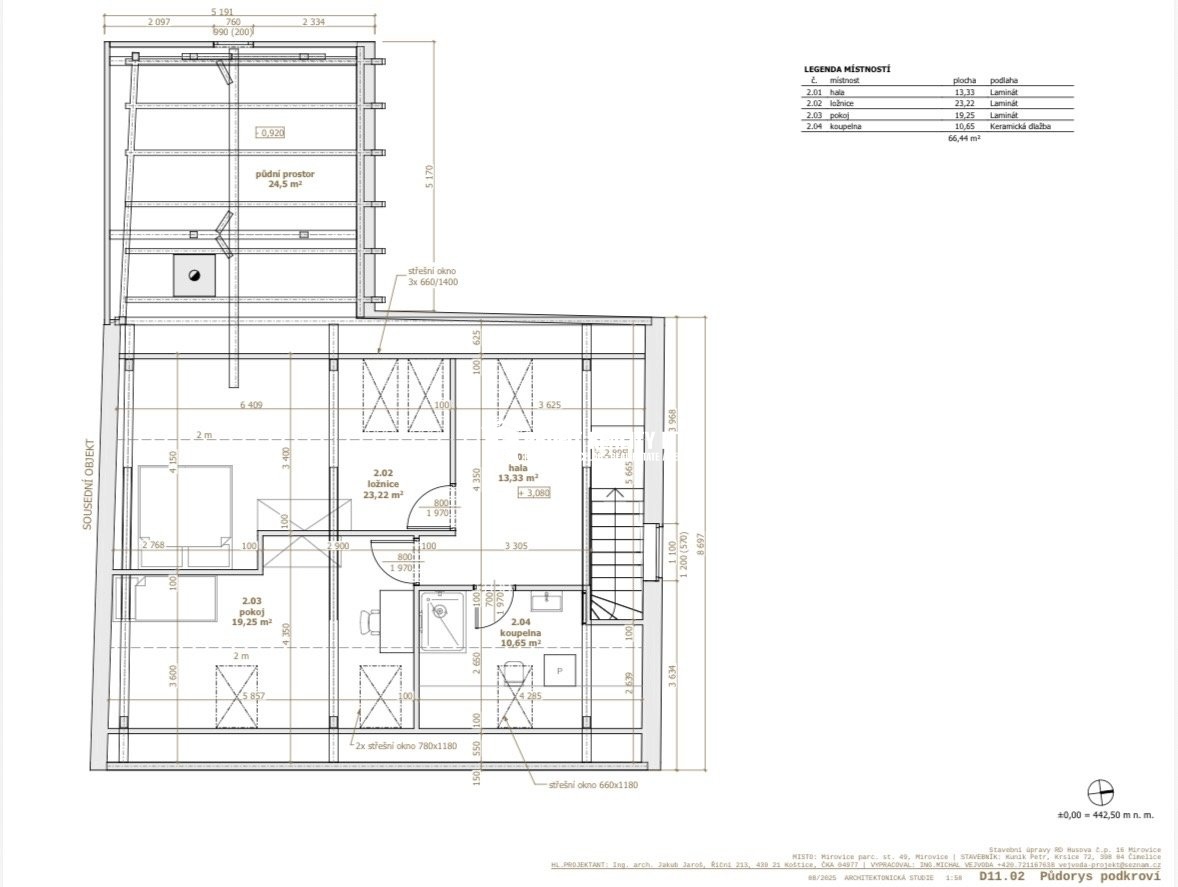
Zprostředkujeme vám prodej rodinného domu ve městě Mirovice, umístěného v klidné ulici Husova, poblíž historického náměstí. Objekt prošel kompletní rekonstrukcí, jen krovy a střešní krytina mají staří 11 let. Dům je z malé části podsklepený. V přízemí se nachází vstupní předsíň, pokoj s přípravou na kuchyňskou linku, obývací pokoj, koupelna s vanou, samostatná toaleta a technická místnost a kotelna. Podlahová plocha přízemí činí 79 m2. V rámci rekonstrukce jsou zde nové podlahy, izolace, podlahová krytina, dlažby, rozvody vody, elektřiny, odpady, plynové topení včetně nové přípojky a kotle, koupelna, příprava pro kuch. linku, okna, dveře, nové stropní trámy, sádrokartonové podhledy + izolace. Nová pojistková skříň. Z předsíně se po schodišti dostanete do podkroví, které se skládá z dvou ložnic se střešními okny, koupelny se sprchovým koutem a toaletou a předsíně, kde lze vybudovat menší kuchyňskou linku. Při rekonstrukci byla zhotovena nová dvojitá skladba podlahy, izolace v předstěnách, zateplení střechy, zateplení štítů, nové rozvody vody, elektřiny, topení, příprava pro malou kuch. linku, nové podlahoviny, sádrokartonové systémy, nová střešní okna dřevěná Velux. Nová pojistková skříň. Zahrada je za domem, s věcným břemenem chůze a jízdy pro vstup na zahradu, z domu je přístupná z obývacího pokoje francouzskými dveřmi. Ve městě Mirovice je kompletní občanská vybavenost.
Pomocí naší hypoteční kalkulačky si můžete udělat orientační představu o výši měsíčních splátek hypotéky. O vše ostatní se pak postaráme my ve spolupráci s našimi obchodními partnery.
26 924 Kč
* Odhadovaná měsíční splátka vychází z výše úvěru Kč s pevnou úrokovou sazbou % po celou dobu trvání úvěru.
Uživatel serveru RealityMIX.cz (dále jen „Server“) dostupného na internetové adrese (URL) https://www.realitymix.cz, který provozuje společnost DALTEN media s.r.o., se sídlem Na Harfě 916/9a, Praha 9, 190 00, IČO: 271 35 306 (dále jen „Správce“) jako provozovateli tohoto Serveru uděluje svůj výslovný souhlas v souladu s ustanovením § 5 zákona č. 101/2000 Sb. O ochraně osobních údajů a o změně některých zákonů, v platném znění (dále jen „zákon o ochraně osobních údajů“), se zpracováním uživatelem poskytnutých osobních údajů a dalších dat.
Uživatel poskytuje Správci osobní údaje v rozsahu: jméno, příjmení, e-mailová adresa, telefonický kontakt a další data, a to z důvodu projeveného zájmu o nemovitost, kde prostřednictvím služby Serveru Správce osloví Uživatel inzerenta uvedeného v detailu
nemovitosti - PROFIT REALITY LTD. (IČ 28259831) se zájmem o jeho služby.
Uživatel tyto osobní údaje poskytuje dobrovolně a bere na vědomí, že součástí služeb Správce, které Správce Uživateli poskytuje, je vyhledání všech Uživateli vyhovujících (dle parametrů - cena, typ nemovitosti, lokalita atd.) nemovitostí. Správce za tímto účelem provozuje aplikace Hlídací pes a newsletter. Tyto služby je možné z každého zaslaného emailu odhlásit. Souhlas se zpracováním osobních údajů Uživatel poskytuje Správci na dobu neurčitou s tím, že svůj udělený souhlas může Uživatel kdykoliv na drese správce info@realitymix.cz odvolat. Správce garantuje Uživateli i další práva uvedené v ustanovení §11 a §21 zákoba č. 101/200 Sb. Ve znění pozdějších předpisů.
Více informací o zpracování údajů získáte zde (realitymix.cz/zasady-ochrany-osobnich-udaju)