Nízkoenergetická novostavba 6+kk s garáží Přítoky u Kutné Hory
Nabízíme k prodeji prostorný rodinný dům o dispozici 6+kk s garáží a venkovním zastřešeným parkovacím stáním, situovaný v oblíbené obci Přítoky, v bezprostřední blízkosti Kutné Hory.
Jedná se o nízkoenergetickou novostavbu, vybudovanou na místě původního domu, která splňuje nároky na moderní, komfortní a úsporné bydlení. Dům je ideální volbou pro větší rodinu a nabízí velmi promyšlené dispoziční řešení.
Bonus: KUCHYŇ od stálého dodavatele ZDARMA.
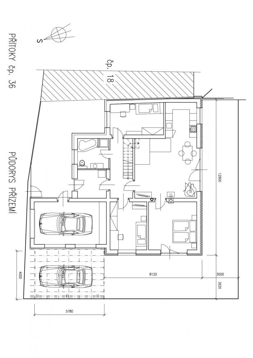
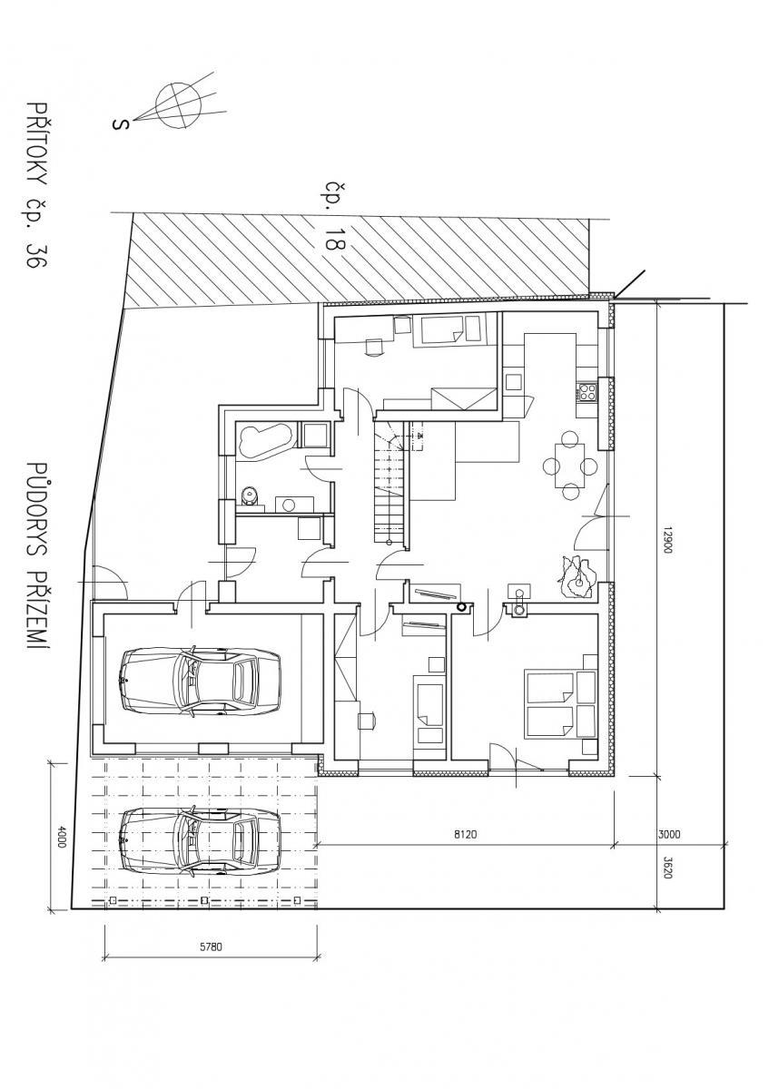
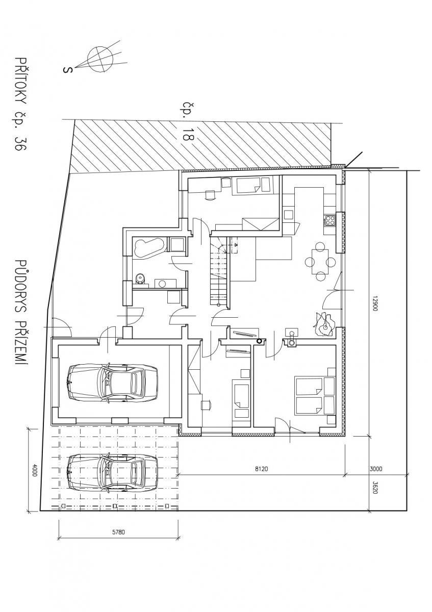
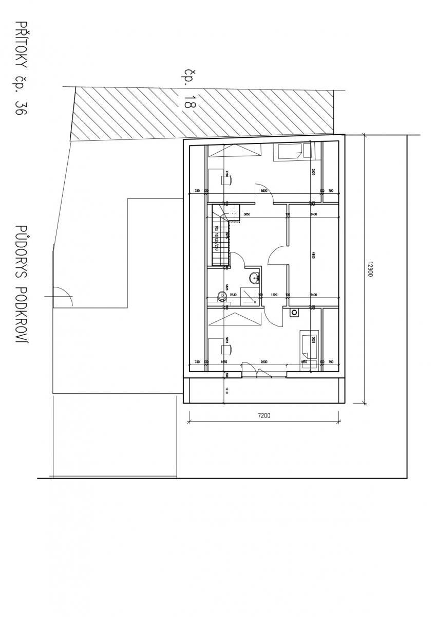
Dispozice domu
Přízemí:
vstupní chodba
prostorný obývací pokoj s kuchyňským koutem
tři samostatné pokoje
koupelna s vanou a WC
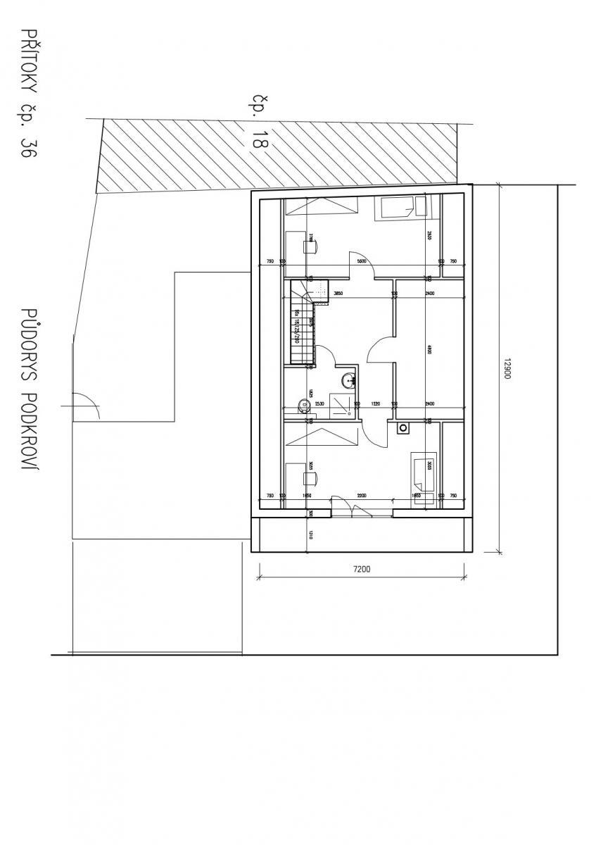
Podkroví:
dva další pokoje
šatna
koupelna se sprchovým koutem a WC
prostorná lodžie
Parkování
garáž pro 1 automobil
zpevněné venkovní parkovací stání
Technické informace
vytápění a ohřev vody zajišťuje tepelné čerpadlo BUDERUS WPL 8AR
napojení na obecní vodovod a kanalizaci
elektřina 230 / 400 V
plastová okna s trojsklem
Dům je dokončen a nový majitel má možnost výběru vnitřních dveří, které budou v rámci kupní ceny odborně nainstalovány.
Cena zahrnuje DPH ve výši 12 %.
Velkou výhodou je možnost nákupu na firmu a uplatnění odpočtu DPH pro plátce DPH.
Pro více informací mě neváhejte kontaktovat.
Prohlídky jsou možné po domluvě, včetně víkendů. K této nemovitosti máte připravené podrobné informace na: https://dagmarbacova.cz/prodej-rd-6kk-pritoky-u-kh/
Pomocí naší hypoteční kalkulačky si můžete udělat orientační představu o výši měsíčních splátek hypotéky. O vše ostatní se pak postaráme my ve spolupráci s našimi obchodními partnery.
39 475 Kč
* Odhadovaná měsíční splátka vychází z výše úvěru Kč s pevnou úrokovou sazbou % po celou dobu trvání úvěru.
Uživatel serveru RealityMIX.cz (dále jen „Server“) dostupného na internetové adrese (URL) https://www.realitymix.cz, který provozuje společnost DALTEN media s.r.o., se sídlem Na Harfě 916/9a, Praha 9, 190 00, IČO: 271 35 306 (dále jen „Správce“) jako provozovateli tohoto Serveru uděluje svůj výslovný souhlas v souladu s ustanovením § 5 zákona č. 101/2000 Sb. O ochraně osobních údajů a o změně některých zákonů, v platném znění (dále jen „zákon o ochraně osobních údajů“), se zpracováním uživatelem poskytnutých osobních údajů a dalších dat.
Uživatel poskytuje Správci osobní údaje v rozsahu: jméno, příjmení, e-mailová adresa, telefonický kontakt a další data, a to z důvodu projeveného zájmu o nemovitost, kde prostřednictvím služby Serveru Správce osloví Uživatel inzerenta uvedeného v detailu
nemovitosti - Bohemia servis spol. s r. o. (IČ 27473953) se zájmem o jeho služby.
Uživatel tyto osobní údaje poskytuje dobrovolně a bere na vědomí, že součástí služeb Správce, které Správce Uživateli poskytuje, je vyhledání všech Uživateli vyhovujících (dle parametrů - cena, typ nemovitosti, lokalita atd.) nemovitostí. Správce za tímto účelem provozuje aplikace Hlídací pes a newsletter. Tyto služby je možné z každého zaslaného emailu odhlásit. Souhlas se zpracováním osobních údajů Uživatel poskytuje Správci na dobu neurčitou s tím, že svůj udělený souhlas může Uživatel kdykoliv na drese správce info@realitymix.cz odvolat. Správce garantuje Uživateli i další práva uvedené v ustanovení §11 a §21 zákoba č. 101/200 Sb. Ve znění pozdějších předpisů.
Více informací o zpracování údajů získáte zde (realitymix.cz/zasady-ochrany-osobnich-udaju)