Pronájem souboru dvou domů sloužících k ubytování, Mladá Boleslav - ulice Vinecká
Pronájem ubytovacího zařízení | Mladá Boleslav – Vinecká ulice č.p. 82 a 93 | kapacita 25 osob | ideální pro firemní ubytování
V Mladé Boleslavi existuje segment, který má dlouhodobě stabilní poptávku – ubytování pro zaměstnance firem, především v návaznosti na ŠKODA AUTO a navazující průmysl. A právě zde přichází nabídka, která dává ekonomicky i provozně smysl.
Exkluzivně vám přinášíme novinku k pronájmu. Jedná se o soubor hned dvou domů (č.p. 82 a č.p. 93), které tvoří jeden funkční celek a jsou přizpůsobeny, aby sloužily jako ubytovací zařízení. Nemovitost je tak připravena přesně pro tento účel – bez nutnosti zásadních investic.
Stejně tak mohou prostory sloužit k jiným podnikatelským účelům - sídlo firmy + zázemí pro zaměstnance, kanceláře s možností ubytování, ordinace.
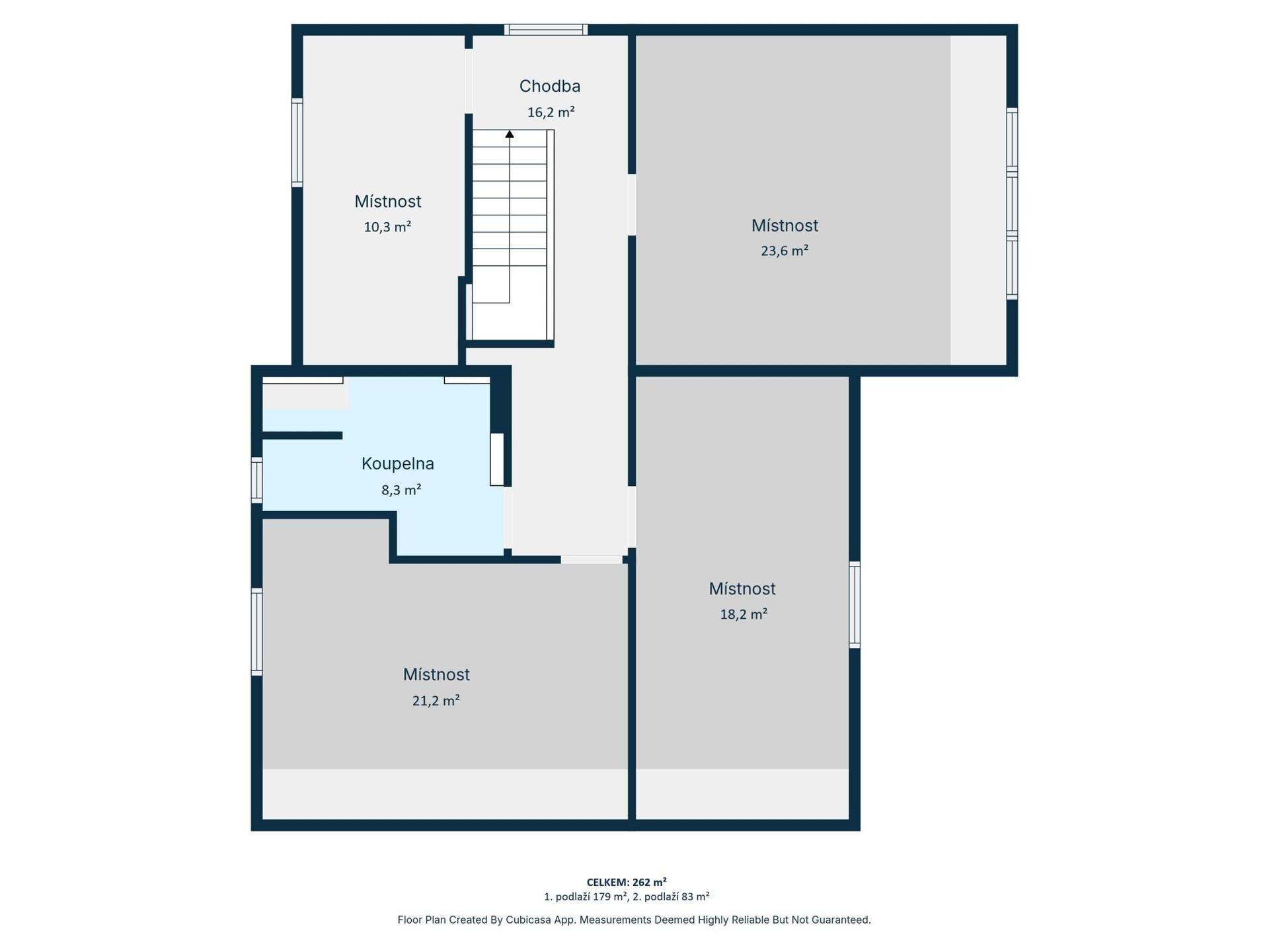
Celková užitná plocha: 341,48 m²
Kapacita: až 25 osob
Každý ubytovaný má zajištěno:
• plnohodnotný prostor pro lůžko a zázemí
• dostatek sociálních zařízení
• kuchyňské zázemí
• společné prostory pro odpočinek
Při plném obsazení vychází náklad na 5.000,- Kč / osoba / měsíc, což je v této lokalitě velmi konkurenceschopné a zároveň dobře udržitelné číslo pro provozovatele. Nájemník si přepisuje energie na sebe. Při dlouhodobé spolupráci a nájmu delší, než jeden rok - dohoda o ceně možná.
Majitel požaduje kauci ve výši 100.000,- Kč.
Dispozice domů:
Dům č.p. 82 (89,36 m²):
• vstup z ulice + průchod do celého areálu
• velká garáž (32 m²) – ideální i pro zásobování
• nad garáží samostatná garsonka s vlastním sociálním zázemím a terasou
Dům č.p. 93 (252,12 m², 2 podlaží):
Přízemí:
• vstupní chodba
• 4 prostorné pokoje
• kuchyň s jídelnou
• společenská místnost
• koupelna, toalety, technické zázemí
Patro:
• 4 velké ložnice
• koupelna a toaleta
• druhá kuchyň s výhledem do zahrady
Technický stav a vybavení
• kompletní rekonstrukce v roce 2019
• plastová okna v celém objektu
• nová střecha
• napojení na veškeré inženýrské sítě
• vytápění plynem
• objekt je plně funkční a připravený k okamžitému provozu
Další benefity
• uzavřený dvorek – ideální pro odpočinek, grilování nebo relax klientů
• oddělené objekty umožňují flexibilní rozdělení ubytovaných
• snadná logistika a přístup
• lokalita s dlouhodobě silnou poptávkou po ubytování pracovníků
Veškerá občanská vybavenost a autobusové či vlakové spojení v těsné blízkosti domu.
Pro koho je tato nemovitost ideální?
• agentury zajišťující pracovní sílu
• firmy ubytovávající své zaměstnance
• investory, kteří hledají funkční a zavedený model podnikání bez složitého startu
Tahle nabídka není „jen dům k pronájmu“.
Je to hotový nástroj pro podnikání v lokalitě, kde dává ubytování dlouhodobě smysl.
Pokud hledáte prostor, který vám začne fungovat prakticky okamžitě, rádi vám nemovitost osobně představíme.
Cena:
100 000 Kč / (za měsíc)
Poznámka:
Cena bez energií. Zálohové platby na vodu a odpad + přepis elektřiny a plynu na nájemníka. Volný ihned.
Uživatel serveru RealityMIX.cz (dále jen „Server“) dostupného na internetové adrese (URL) https://www.realitymix.cz, který provozuje společnost DALTEN media s.r.o., se sídlem Na Harfě 916/9a, Praha 9, 190 00, IČO: 271 35 306 (dále jen „Správce“) jako provozovateli tohoto Serveru uděluje svůj výslovný souhlas v souladu s ustanovením § 5 zákona č. 101/2000 Sb. O ochraně osobních údajů a o změně některých zákonů, v platném znění (dále jen „zákon o ochraně osobních údajů“), se zpracováním uživatelem poskytnutých osobních údajů a dalších dat.
Uživatel poskytuje Správci osobní údaje v rozsahu: jméno, příjmení, e-mailová adresa, telefonický kontakt a další data, a to z důvodu projeveného zájmu o nemovitost, kde prostřednictvím služby Serveru Správce osloví Uživatel inzerenta uvedeného v detailu
nemovitosti - RE | Partners (IČ 27562492) se zájmem o jeho služby.
Uživatel tyto osobní údaje poskytuje dobrovolně a bere na vědomí, že součástí služeb Správce, které Správce Uživateli poskytuje, je vyhledání všech Uživateli vyhovujících (dle parametrů - cena, typ nemovitosti, lokalita atd.) nemovitostí. Správce za tímto účelem provozuje aplikace Hlídací pes a newsletter. Tyto služby je možné z každého zaslaného emailu odhlásit. Souhlas se zpracováním osobních údajů Uživatel poskytuje Správci na dobu neurčitou s tím, že svůj udělený souhlas může Uživatel kdykoliv na drese správce info@realitymix.cz odvolat. Správce garantuje Uživateli i další práva uvedené v ustanovení §11 a §21 zákoba č. 101/200 Sb. Ve znění pozdějších předpisů.
Více informací o zpracování údajů získáte zde (realitymix.cz/zasady-ochrany-osobnich-udaju)