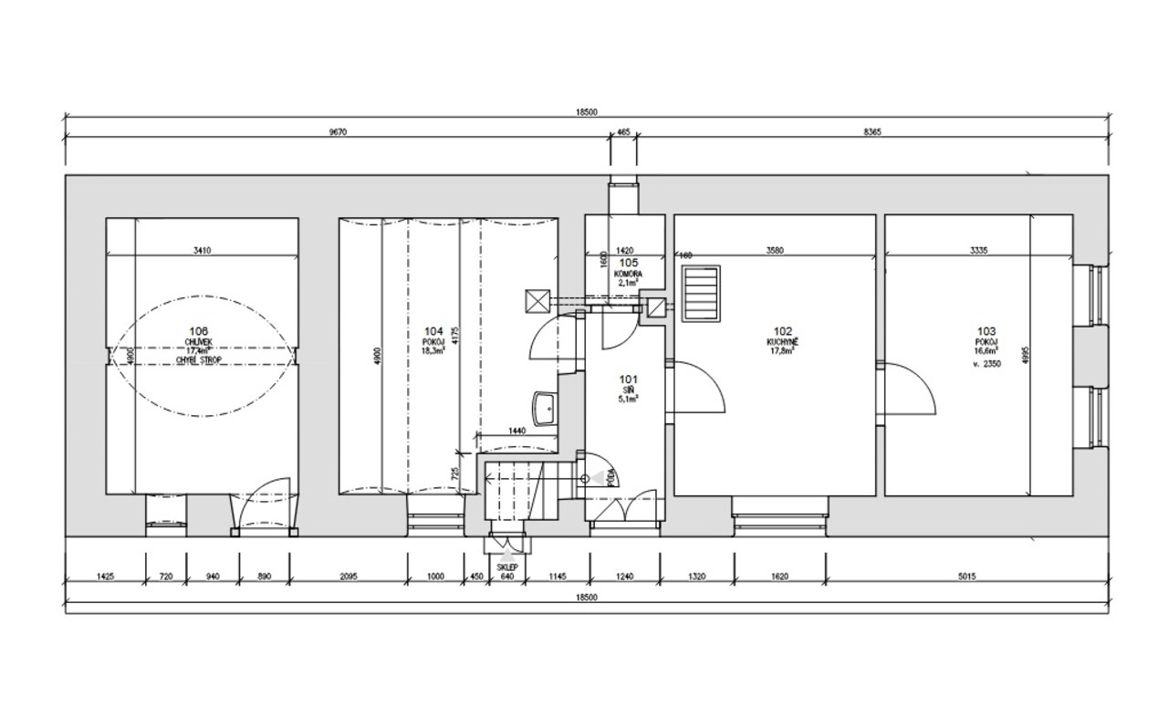
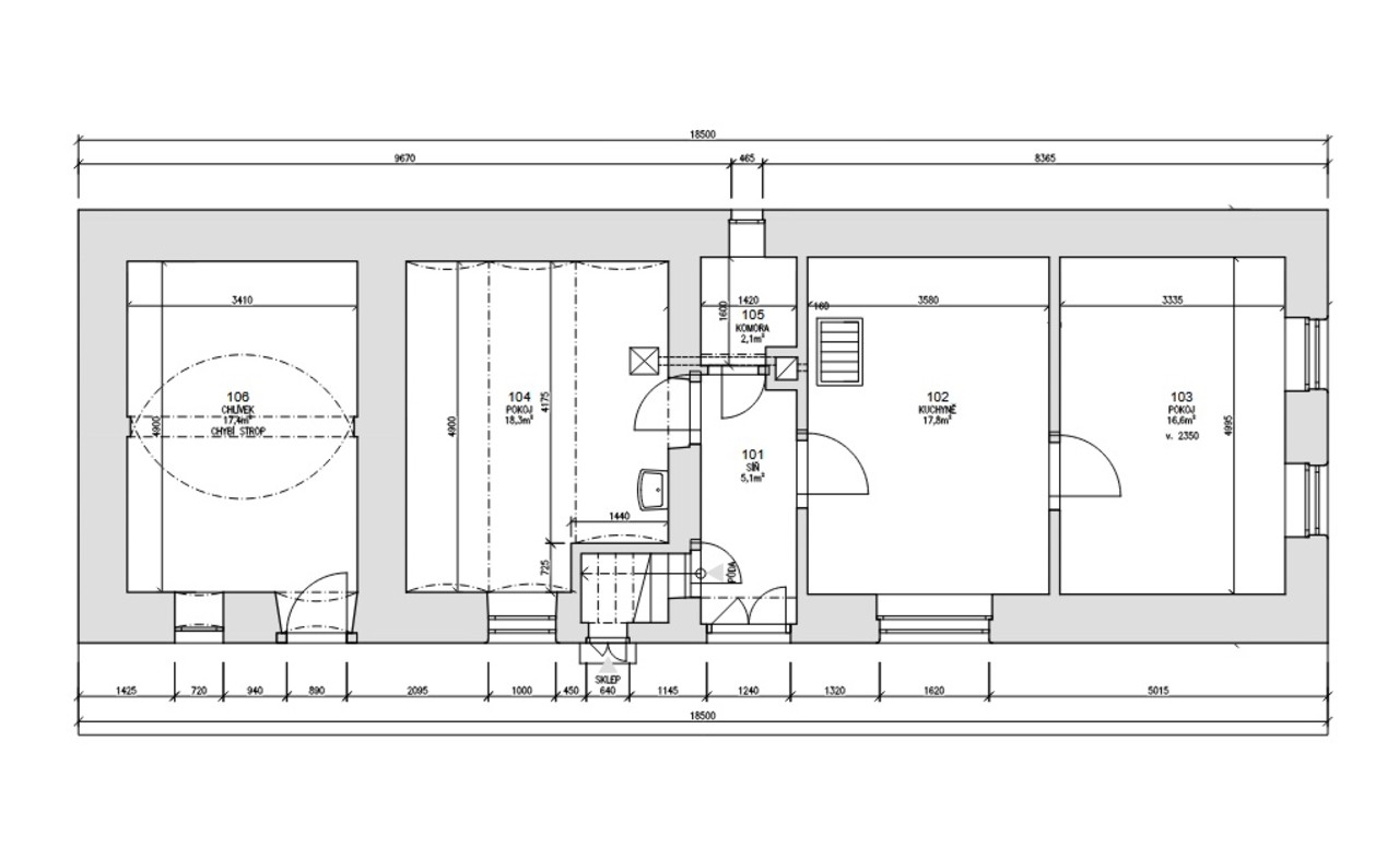
Rodinný dům se zahradou v obci Mnich, okr. Pelhřimov.
Na hranici Vysočiny a Jihočeského kraje, jen pár minut autem od Jindřichova Hradce nabízíme na prodej domek se zahradou. Je to rodinný dům, který čeká na nového majitele se smyslem pro rekonstrukci a vlastní představy o bydlení. Nemovitost nebyla delší dobu obývána a je určena k celkové modernizaci – od vyklizení interiéru, úprav vnitřních dispozic, zajištění nových přípojek na vodu a kanalizaci, až po vybudování oplocení. Výhodou je zachovalá a plně funkční střecha, která umožní soustředit se na ostatní části domu.Dům stojí na okraji obce v klidném prostředí, kde za zahradou začínají pole a nedaleké lesy. Tato poloha nabízí ideální kombinaci soukromí, klidu a blízkosti přírody – vhodné jak pro trvalé bydlení, tak i jako chalupa k rekreaci.Na pozemku se kromě rodinného domu nachází také bývalá kovárna a menší stodola, které lze využít podle vašich potřeb.Pokud hledáte místo, do kterého vtisknete svůj osobní styl a vytvoříte si domov podle vlastních představ, přijďte se přesvědčit na osobní prohlídku.
Pomocí naší hypoteční kalkulačky si můžete udělat orientační představu o výši měsíčních splátek hypotéky. O vše ostatní se pak postaráme my ve spolupráci s našimi obchodními partnery.
10 122 Kč
* Odhadovaná měsíční splátka vychází z výše úvěru Kč s pevnou úrokovou sazbou % po celou dobu trvání úvěru.
Uživatel serveru RealityMIX.cz (dále jen „Server“) dostupného na internetové adrese (URL) https://www.realitymix.cz, který provozuje společnost DALTEN media s.r.o., se sídlem Na Harfě 916/9a, Praha 9, 190 00, IČO: 271 35 306 (dále jen „Správce“) jako provozovateli tohoto Serveru uděluje svůj výslovný souhlas v souladu s ustanovením § 5 zákona č. 101/2000 Sb. O ochraně osobních údajů a o změně některých zákonů, v platném znění (dále jen „zákon o ochraně osobních údajů“), se zpracováním uživatelem poskytnutých osobních údajů a dalších dat.
Uživatel poskytuje Správci osobní údaje v rozsahu: jméno, příjmení, e-mailová adresa, telefonický kontakt a další data, a to z důvodu projeveného zájmu o nemovitost, kde prostřednictvím služby Serveru Správce osloví Uživatel inzerenta uvedeného v detailu
nemovitosti - RealitasFIN s.r.o. (IČ 02652668) se zájmem o jeho služby.
Uživatel tyto osobní údaje poskytuje dobrovolně a bere na vědomí, že součástí služeb Správce, které Správce Uživateli poskytuje, je vyhledání všech Uživateli vyhovujících (dle parametrů - cena, typ nemovitosti, lokalita atd.) nemovitostí. Správce za tímto účelem provozuje aplikace Hlídací pes a newsletter. Tyto služby je možné z každého zaslaného emailu odhlásit. Souhlas se zpracováním osobních údajů Uživatel poskytuje Správci na dobu neurčitou s tím, že svůj udělený souhlas může Uživatel kdykoliv na drese správce info@realitymix.cz odvolat. Správce garantuje Uživateli i další práva uvedené v ustanovení §11 a §21 zákoba č. 101/200 Sb. Ve znění pozdějších předpisů.
Více informací o zpracování údajů získáte zde (realitymix.cz/zasady-ochrany-osobnich-udaju)