Hledáte nové, klidné bydlení s dobrou dostupností do města? Nabízím k prodeji polovinu novostavby dvojdomu se zahradou v obci Skupice u Morašice.
Jedná se o moderní dvojdům, kde každá polovina domu má vlastní vstup, vlastní zahradu a dostatek soukromí. Nemovitost je ideální pro mladý pár nebo rodinu s dětmi, kteří chtějí spojit klid venkova s dobrou dostupností města.
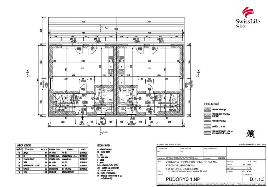
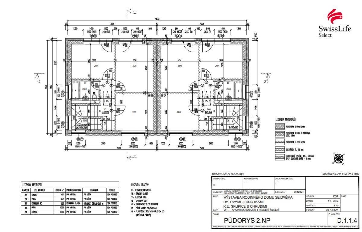
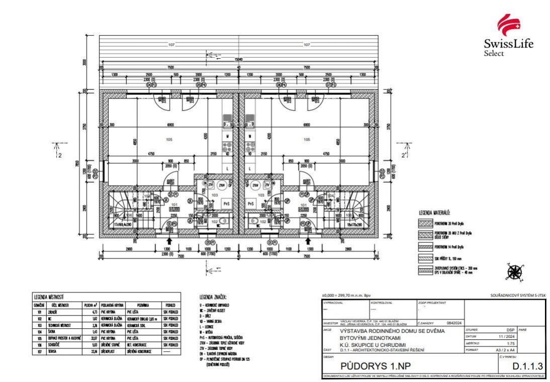
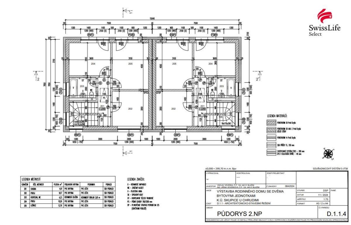
Velkou výhodou je, že budoucí majitel si může vybrat dispoziční řešení domu variantu A nebo variantu B, dle toho, která bude více vyhovovat jeho potřebám.
Součástí inzerátu je také Matterport virtuální prohlídka vzorového domu, který je o 1 m větší než nabízená nemovitost. Díky tomu si mohou zájemci velmi dobře představit budoucí dispozici, prostor i celkové provedení domu.
Co vám dům nabídne
pozemek o velikosti 264 m
dispozice domu ve dvou nadzemních podlažích
vlastní zahradu pro relaxaci i rodinné chvíle
parkovací stání u domu
energetická třída B velmi úsporná budova
Dům je aktuálně ve fázi výstavby (rozestavěný). Inzerovaná cena je za kompletně dokončený dům na klíč.
Budoucí majitel má navíc možnost ovlivnit finální podobu interiérových standardů (podlahy, obklady, dveře, sanita) dle vlastního vkusu.
Výborná dostupnost
Chrudim cca 10 minut autem
Pardubice cca 20 minut autem
Čáslav cca 25 minut autem
Klidná lokalita, příjemné okolí a rychlá dostupnost do zaměstnání, škol i služeb.
Rád vám poskytnu veškeré informace a osobně vás nemovitostí provedu.
Pomocí naší hypoteční kalkulačky si můžete udělat orientační představu o výši měsíčních splátek hypotéky. O vše ostatní se pak postaráme my ve spolupráci s našimi obchodními partnery.
23 037 Kč
* Odhadovaná měsíční splátka vychází z výše úvěru Kč s pevnou úrokovou sazbou % po celou dobu trvání úvěru.
Uživatel serveru RealityMIX.cz (dále jen „Server“) dostupného na internetové adrese (URL) https://www.realitymix.cz, který provozuje společnost DALTEN media s.r.o., se sídlem Na Harfě 916/9a, Praha 9, 190 00, IČO: 271 35 306 (dále jen „Správce“) jako provozovateli tohoto Serveru uděluje svůj výslovný souhlas v souladu s ustanovením § 5 zákona č. 101/2000 Sb. O ochraně osobních údajů a o změně některých zákonů, v platném znění (dále jen „zákon o ochraně osobních údajů“), se zpracováním uživatelem poskytnutých osobních údajů a dalších dat.
Uživatel poskytuje Správci osobní údaje v rozsahu: jméno, příjmení, e-mailová adresa, telefonický kontakt a další data, a to z důvodu projeveného zájmu o nemovitost, kde prostřednictvím služby Serveru Správce osloví Uživatel inzerenta uvedeného v detailu
nemovitosti - Swiss Life Select Reality (IČ 24260444) se zájmem o jeho služby. Tato společnost je součástí seskupení/sítě/franšízového modelu realitních kanceláří, jejich seznam můžete zobrazit kliknutím na tento odkaz.
Fincentrum a.s. (IČ 24260444) , Swiss Life Select Reality (IČ 24260444)
Uživatel tyto osobní údaje poskytuje dobrovolně a bere na vědomí, že součástí služeb Správce, které Správce Uživateli poskytuje, je vyhledání všech Uživateli vyhovujících (dle parametrů - cena, typ nemovitosti, lokalita atd.) nemovitostí. Správce za tímto účelem provozuje aplikace Hlídací pes a newsletter. Tyto služby je možné z každého zaslaného emailu odhlásit. Souhlas se zpracováním osobních údajů Uživatel poskytuje Správci na dobu neurčitou s tím, že svůj udělený souhlas může Uživatel kdykoliv na drese správce info@realitymix.cz odvolat. Správce garantuje Uživateli i další práva uvedené v ustanovení §11 a §21 zákoba č. 101/200 Sb. Ve znění pozdějších předpisů.
Více informací o zpracování údajů získáte zde (realitymix.cz/zasady-ochrany-osobnich-udaju)