Ve výhradním zastoupení majitele nabízíme k prodeji byt v obci Moravany u Brna, ul.Tichá.
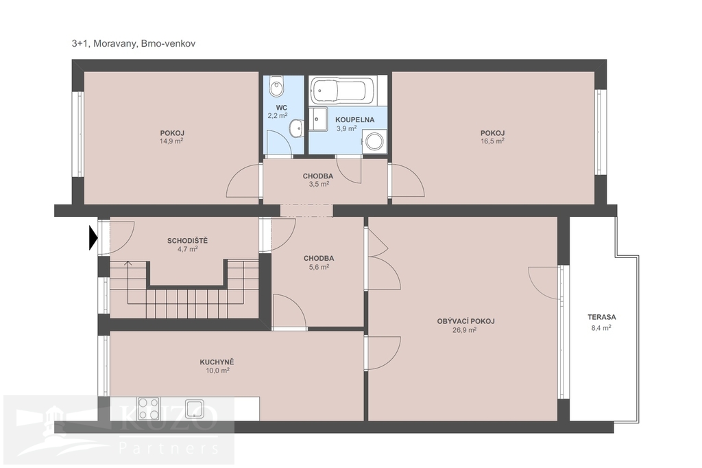
Byt o celkové ploše 100m2, 3+1 disponuje balkonem o velikosti 12 m². Velkým bonusem je samostatná jednotka 1+kk o velikosti cca 20 m² s vlastní koupelnou v suterénu, kterou lze případně propojit s dětským pokojem. K bytu dále náleží dva sklepy a možnost využívání společné zahrady.
Byt se nachází v prvním podlaží, jedná se o zvýšené přízemí, a hlavní obytné místnosti jsou orientovány na východ a západ. Součástí prodeje jsou vestavěné skříně v předsíni a koupelně a kompletní kuchyňská linka včetně spotřebičů, konkrétně myčky, lednice, pračky, trouby a indukční varné desky, digestoře.
Dům se nachází ve slepe ulici, na konci je dětské hřiště, kolaudace proběhla v roce 1984 a je ve velmi dobrém a udržovaném stavu. Přibližně před patnácti lety proběhla výměna oken, zateplení fasády a realizace nové asfaltové střešní krytiny. V domě se nacházejí pouze dvě bytové jednotky. V suterénu je garáž náležící druhé jednotce. Před osmi lety byly vyměněny vstupní dveře a instalován elektronický zabezpečovací systém Jablotron.
V roce 2017 prošel byt rekonstrukcí, která zahrnovala nové rozvody topení v mědi, rozvody vody v plastu a částečnou výměnu elektroinstalace v obývacím pokoji, koupelně a kuchyni, přičemž elektroinstalace je vedena v mědi. V samostatné jednotce v původním stavu v suterénu byly provedeny sádrokartonové podhledy se zvukovou a tepelnou izolací , vybudována nová kuchyňská linka a koupelna.
Vytápění a ohřev vody zajišťuje plynový kondenzační kotel starý přibližně pět až sedm let, který je řízen aplikací a slouží výhradně pro tuto bytovou jednotku a ateliér. V obývacím pokoji je možnost instalace krbových kamen nebo krbu.
Měsíční náklady na bydlení : 2.000,- Kč za elektřinu, 3.080,- Kč plyn a 500,- Kč voda. Příspěvek na budoucí eventuální opravy domu činí 2.000,- Kč měsíčně.
Na domě je instalována fotovoltaická elektrárna, která pokrývá společnou spotřebu v zahradě a sklepních prostorách.
Zahrada je v přední části společná se vstupem z ulice, v zadní části je částečně rozdělena terénním schodkem. K dispozici je studna se zahradním čerpadlem určeným k zálivce, bez rozvodu vody do domu.
Technický stav domu je velmi dobrý a nejsou plánovány žádné další investice.
Uvolnění bytu je možné na konci srpna nebo v první polovině září.
Průkaz Energetické náročnosti budovy je ve fázi zpracování.
V případě zájmu o více informací nebo domluvení osobní prohlídky kontaktujte makléře uvedeného v inzerátu.
Pomocí naší hypoteční kalkulačky si můžete udělat orientační představu o výši měsíčních splátek hypotéky. O vše ostatní se pak postaráme my ve spolupráci s našimi obchodními partnery.
46 115 Kč
* Odhadovaná měsíční splátka vychází z výše úvěru Kč s pevnou úrokovou sazbou % po celou dobu trvání úvěru.
Prodáváte nemovitost a potřebujete zjistit její reálnou hodnotu?
Uživatel serveru RealityMIX.cz (dále jen „Server“) dostupného na internetové adrese (URL) https://www.realitymix.cz, který provozuje společnost DALTEN media s.r.o., se sídlem Na Harfě 916/9a, Praha 9, 190 00, IČO: 271 35 306 (dále jen „Správce“) jako provozovateli tohoto Serveru uděluje svůj výslovný souhlas v souladu s ustanovením § 5 zákona č. 101/2000 Sb. O ochraně osobních údajů a o změně některých zákonů, v platném znění (dále jen „zákon o ochraně osobních údajů“), se zpracováním uživatelem poskytnutých osobních údajů a dalších dat.
Uživatel poskytuje Správci osobní údaje v rozsahu: jméno, příjmení, e-mailová adresa, telefonický kontakt a další data, a to z důvodu projeveného zájmu o nemovitost, kde prostřednictvím služby Serveru Správce osloví Uživatel inzerenta uvedeného v detailu
nemovitosti - KUZO Partners s.r.o. (IČ 27602974) se zájmem o jeho služby.
Uživatel tyto osobní údaje poskytuje dobrovolně a bere na vědomí, že součástí služeb Správce, které Správce Uživateli poskytuje, je vyhledání všech Uživateli vyhovujících (dle parametrů - cena, typ nemovitosti, lokalita atd.) nemovitostí. Správce za tímto účelem provozuje aplikace Hlídací pes a newsletter. Tyto služby je možné z každého zaslaného emailu odhlásit. Souhlas se zpracováním osobních údajů Uživatel poskytuje Správci na dobu neurčitou s tím, že svůj udělený souhlas může Uživatel kdykoliv na drese správce info@realitymix.cz odvolat. Správce garantuje Uživateli i další práva uvedené v ustanovení §11 a §21 zákoba č. 101/200 Sb. Ve znění pozdějších předpisů.
Více informací o zpracování údajů získáte zde (realitymix.cz/zasady-ochrany-osobnich-udaju)