Nabízíme k prodeji jedinečné bydlení v centrální části Moravan, v klidné ulici s pohodlným parkováním přímo u domu. Na první pohled působí jako klasický rodinný dům s obytným podkrovím, ve skutečnosti se však jedná o bytovou jednotku 4+kk se samostatným vstupem, vlastními měřidly a vlastní zahradou. Díky tomu nabízí ideální kombinaci komfortu bydlení v bytě a výhod rodinného domu.
Byt prošel kompletní a velmi zdařilou rekonstrukcí v roce 2014. Dům je zateplený, osazený dřevěnými okny a celkově působí velmi vzdušně, prostorně a příjemně. Kvalitní materiály a promyšlené řešení interiéru i exteriéru splňují veškeré standardy moderního bydlení.
Velkou předností této nemovitosti je vlastní zahrada o výměře 154 m², z toho je 26 m² zastavěno zahradním domkem, kolárnou a venkovním zastřešeným posezením. Zahrada nabízí příjemný prostor pro relaxaci, rodinné chvíle i praktické využití – ať už si představíte letní grilování, dětské hry nebo klidné ranní posezení s kávou.
Vytápění je řešeno kombinací teplovodního podlahového vytápění a radiátorů, což zajišťuje vysoký komfort i efektivní provoz.
Moravany patří dlouhodobě mezi velmi vyhledávané lokality v těsné blízkosti Brna – kombinují rychlou dostupnost do města s klidným rodinným prostředím. V obci najdete školku, školu i základní občanskou vybavenost, což z ní dělá ideální místo pro rodinné bydlení.
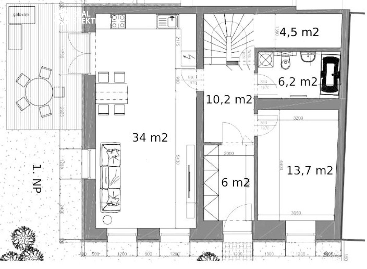
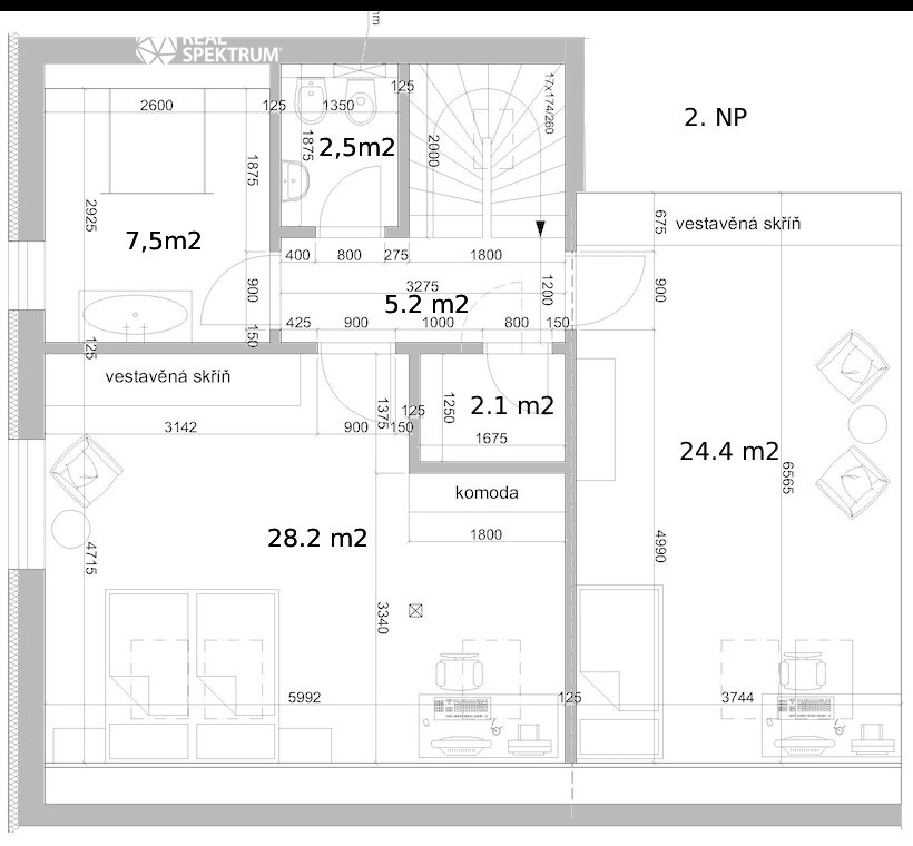
Prostorné uspořádání bytu ve dvou podlažích nabízí celkem 147 m² užitné plochy.Samotný dům nabízí nadstandardní úložné prostory. Ty zahrnují velmi kvalitní vestavěné skříně na míru, které se nacházejí v zádveří, ložnici a dětském pokoji. K dispozici je také prostorná půda nad dětským pokojem, úložná místnost v prvním patře a technické zázemí v přízemí.
Nemovitost je možné financovat hypotečním úvěrem, se kterým Vám rádi pomůžeme.
Tato nabídka je ideální pro ty, kteří hledají dlouhodobé, komfortní bydlení bez nutnosti dalších investic – stačí se nastěhovat a bydlet.
Pomocí naší hypoteční kalkulačky si můžete udělat orientační představu o výši měsíčních splátek hypotéky. O vše ostatní se pak postaráme my ve spolupráci s našimi obchodními partnery.
66 602 Kč
* Odhadovaná měsíční splátka vychází z výše úvěru Kč s pevnou úrokovou sazbou % po celou dobu trvání úvěru.
Prodáváte nemovitost a potřebujete zjistit její reálnou hodnotu?
Uživatel serveru RealityMIX.cz (dále jen „Server“) dostupného na internetové adrese (URL) https://www.realitymix.cz, který provozuje společnost DALTEN media s.r.o., se sídlem Na Harfě 916/9a, Praha 9, 190 00, IČO: 271 35 306 (dále jen „Správce“) jako provozovateli tohoto Serveru uděluje svůj výslovný souhlas v souladu s ustanovením § 5 zákona č. 101/2000 Sb. O ochraně osobních údajů a o změně některých zákonů, v platném znění (dále jen „zákon o ochraně osobních údajů“), se zpracováním uživatelem poskytnutých osobních údajů a dalších dat.
Uživatel poskytuje Správci osobní údaje v rozsahu: jméno, příjmení, e-mailová adresa, telefonický kontakt a další data, a to z důvodu projeveného zájmu o nemovitost, kde prostřednictvím služby Serveru Správce osloví Uživatel inzerenta uvedeného v detailu
nemovitosti - REAL SPEKTRUM, a.s. (IČ 25314718) se zájmem o jeho služby.
Uživatel tyto osobní údaje poskytuje dobrovolně a bere na vědomí, že součástí služeb Správce, které Správce Uživateli poskytuje, je vyhledání všech Uživateli vyhovujících (dle parametrů - cena, typ nemovitosti, lokalita atd.) nemovitostí. Správce za tímto účelem provozuje aplikace Hlídací pes a newsletter. Tyto služby je možné z každého zaslaného emailu odhlásit. Souhlas se zpracováním osobních údajů Uživatel poskytuje Správci na dobu neurčitou s tím, že svůj udělený souhlas může Uživatel kdykoliv na drese správce info@realitymix.cz odvolat. Správce garantuje Uživateli i další práva uvedené v ustanovení §11 a §21 zákoba č. 101/200 Sb. Ve znění pozdějších předpisů.
Více informací o zpracování údajů získáte zde (realitymix.cz/zasady-ochrany-osobnich-udaju)