Dovoluji si vám nabídnout k prodeji rodinný dům o dispozici 5+kk, který se nachází v klidné části obce Mratín, v ulici Za Dráhou. Tato nemovitost představuje ideální kombinaci pohodlného rodinného bydlení, dostatku soukromí a výborné dostupnosti do Prahy.
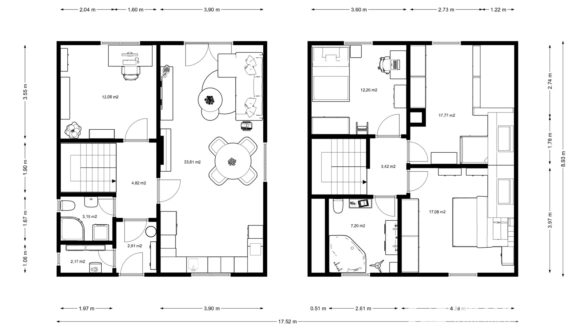
Dům je situován na pozemku o celkové výměře 644 m², přičemž samotná zahrada o velikosti 569 m² poskytuje dostatek prostoru pro každodenní život i odpočinek. Dispozice domu je navržena velmi prakticky a funkčně. V přízemí se nachází obývací pokoj s kuchyňským koutem a přímým vstupem na terasu s pergolou, která přirozeně rozšiřuje obytný prostor a vytváří příjemné zázemí pro posezení s rodinou či přáteli. Dále je zde pracovna, koupelna a technická místnost. V patře jsou umístěny tři samostatné ložnice, z nichž jedna slouží jako šatna a ve druhé je aktuálně umístěna sauna, dále je zde prostorná koupelna. Užitná plocha domu činí 121 m², doplněná o terasu s pergolou o velikosti cca 20 m² a kryté parkovací stání pro dva vozy o velikosti cca 25 m².
Dům byl postaven technologií monolitické železobetonové konstrukce společností Liapor, což zaručuje vysokou kvalitu, pevnost a dlouhou životnost stavby. Vytápění je řešeno kombinací tří zdrojů – krbem s výměníkem napojeným na radiátory v celém domě, plynovým kotlem a elektrickou patronou, díky čemuž je provoz domu flexibilní a efektivní. Významným benefitem je instalovaná solární elektrárna o výkonu 7,4 kWp doplněná bateriemi s celkovou kapacitou 11,6 kWh, která přispívá k výraznému snížení nákladů na energie. Dům je napojen na všechny inženýrské sítě a zároveň disponuje vlastní vrtanou studnou s kompletním filtračním systémem. V objektu je také nainstalován zabezpečovací systém a kamery.
Interiér domu působí velmi příjemně a je připraven k okamžitému užívání. Kuchyňská linka byla instalována přibližně před rokem a je plně vybavena spotřebiči značky Gorenje. Okna jsou plastová s dvojskly, doplněná žaluziemi a sítěmi proti hmyzu, v přízemí jsou navíc instalovány venkovní rolety. Střešní okna jsou vybavena roletami a dveře vedoucí na terasu disponují trojskly.
Pozemek je upraven s důrazem na praktičnost i soukromí. K dispozici je kryté parkovací stání pro dva vozy, vjezd je řešen elektricky ovládanou bránou a okolí domu je vydlážděno zámkovou dlažbou. Zahrada je orientována na jih, je vzrostlá a poskytuje příjemné soukromí bez rušivých vlivů okolí. Součástí je také zahradní domek a další úložný prostor na půdě domu.
Obec Mratín nabízí příjemné a klidné bydlení s kompletní základní občanskou vybaveností a zároveň rychlou dostupností do Prahy. K dispozici jsou mateřské školy, obchody, restaurace i další služby pro každodenní život. Velkou výhodou je také široké sportovní a volnočasové vyžití včetně sportovního areálu, dětských hřišť, cyklostezek a okolní přírody, která přímo vybízí k aktivnímu odpočinku.
Tato nemovitost je ideální volbou pro ty, kteří hledají kvalitní rodinné bydlení v klidném prostředí s výbornou dostupností do hlavního města.
Pomocí naší hypoteční kalkulačky si můžete udělat orientační představu o výši měsíčních splátek hypotéky. O vše ostatní se pak postaráme my ve spolupráci s našimi obchodními partnery.
60 245 Kč
* Odhadovaná měsíční splátka vychází z výše úvěru Kč s pevnou úrokovou sazbou % po celou dobu trvání úvěru.
Uživatel serveru RealityMIX.cz (dále jen „Server“) dostupného na internetové adrese (URL) https://www.realitymix.cz, který provozuje společnost DALTEN media s.r.o., se sídlem Na Harfě 916/9a, Praha 9, 190 00, IČO: 271 35 306 (dále jen „Správce“) jako provozovateli tohoto Serveru uděluje svůj výslovný souhlas v souladu s ustanovením § 5 zákona č. 101/2000 Sb. O ochraně osobních údajů a o změně některých zákonů, v platném znění (dále jen „zákon o ochraně osobních údajů“), se zpracováním uživatelem poskytnutých osobních údajů a dalších dat.
Uživatel poskytuje Správci osobní údaje v rozsahu: jméno, příjmení, e-mailová adresa, telefonický kontakt a další data, a to z důvodu projeveného zájmu o nemovitost, kde prostřednictvím služby Serveru Správce osloví Uživatel inzerenta uvedeného v detailu
nemovitosti - Aktivreality (IČ 04581679) se zájmem o jeho služby.
Uživatel tyto osobní údaje poskytuje dobrovolně a bere na vědomí, že součástí služeb Správce, které Správce Uživateli poskytuje, je vyhledání všech Uživateli vyhovujících (dle parametrů - cena, typ nemovitosti, lokalita atd.) nemovitostí. Správce za tímto účelem provozuje aplikace Hlídací pes a newsletter. Tyto služby je možné z každého zaslaného emailu odhlásit. Souhlas se zpracováním osobních údajů Uživatel poskytuje Správci na dobu neurčitou s tím, že svůj udělený souhlas může Uživatel kdykoliv na drese správce info@realitymix.cz odvolat. Správce garantuje Uživateli i další práva uvedené v ustanovení §11 a §21 zákoba č. 101/200 Sb. Ve znění pozdějších předpisů.
Více informací o zpracování údajů získáte zde (realitymix.cz/zasady-ochrany-osobnich-udaju)