Hledáte bezpečné a pohodové bydlení nejen ve vyšším věku, kde máte vše důležité doslova na dosah ruky?
Nebo zvažujete smysluplnou investici do nemovitosti s dlouhodobým a stabilním využitím?
Nabízím bytové jednotky situované pouhých 550 metrů od areálu oblíbených Lázní Mšené, který poskytuje ideální zázemí pro seniory i osoby hledající klid a dostupnou péči.
Bytové jednotky vhodné nejen k lázeňským pobytům, ale i běžnému dlouhodobému pronájmu s možností využití zvýhodněných lázeňských služeb.
Výhody bydlení pro seniory:
- přímá vazba na lázeňskou a lékařskou péči
- dostupné služby: lékař, masáže, wellness, stravování, úklid a další
- bezbariérový přístup u domu Fanda a klidné prostředí uzavřeného areálu
- možnost kulturních a společenských aktivit v areálu lázní
- pocit bezpečí a jistoty každodenního fungování
Investiční potenciál:
- dlouhodobě atraktivní lokalita se stálou poptávkou bydlení pro seniory
- možnost dlouhodobého pronájmu (některé jednotky jsou již obsazené)
- nízké provozní náklady díky menším dispozicím
- stabilní výnos bez nutnosti náročné správy (možná dohoda přímo s provozovatelem lázní)
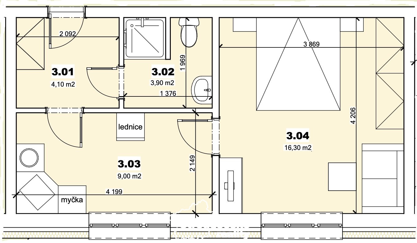
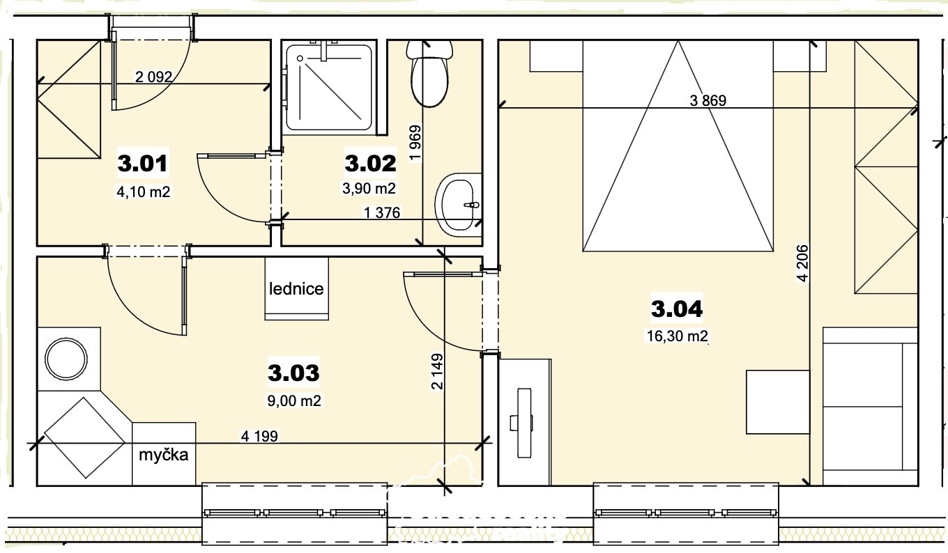
Nabízený byt č. 3 se nachází v domě Fanda a je řešen jako 1+1 o výměře 33,3 m², ideální pro jednotlivce. K bytu náleží parkovací stání (není součástí ceny) a je zde možnost přikoupení zahrádky.
Dům Fanda prošel úpravou, nejedná se o novostavbu, ale o tvz. "second-hand" nemovitost. Byl přizpůsoben malometrážnímu, pohodlnému a bezpečnému bydlení s vazbou na lázeňský areál. Jedná se o jednopodlažní, částečně podsklepený objekt, který je bezbariérově přístupný.
V domě Fanda se nachází:
- šest bytových jednotek 1+kk (od velikosti 21,9 m2 do 33,3 m2)
- pět bytových jednotek 1+1, přičemž některé lze využít jako 2+kk (od velikosti 37,8 m2 do 56,2 m2)
- součástí každé bytové jednotky je chodba, sociální zázemí, kuchyně vč. obytné místnosti (u některých dvě)
- společné prostory jsou tvořeny vstupním zádveřím, chodbou s druhým únikovým východem, technickou místností pro osobu zajištující úklid společných prostor, místností na kočárky a kola, sušárnou a vstupem do technické místnosti umístěné v 1. podzemním podlaží (dům je pouze částečně podsklepen), ve které jsou umístěny zásobníky TUV.
- každý byt má vlastní topení (přímotopy)
- ohřev teplé vody je společný pro celý dům
Okolí lázní nabízí klidnou přírodu, léčivé prostředí a více možností pro procházky, lehkou turistiku i cyklistiku. Za zmínku stojí hora Říp, zámek Libochovice, centrum Litoměřic, torzo Panenský Týnec, Oldřichův dub v Peruci, či hrad Házmburk. V blízké Ředhošti se pravidelně konají tradiční nedělní trhy.
Dobrá dopravní dostupnost do Slaného, Roudnice nad Labem i Prahy (autem i autobusovým spojením).
Nemovitost je bez právních omezení. Možnost financování hypotečním úvěrem, který vám rádi zajistíme.
Pomocí naší hypoteční kalkulačky si můžete udělat orientační představu o výši měsíčních splátek hypotéky. O vše ostatní se pak postaráme my ve spolupráci s našimi obchodními partnery.
8 089 Kč
* Odhadovaná měsíční splátka vychází z výše úvěru Kč s pevnou úrokovou sazbou % po celou dobu trvání úvěru.
Prodáváte nemovitost a potřebujete zjistit její reálnou hodnotu?
Uživatel serveru RealityMIX.cz (dále jen „Server“) dostupného na internetové adrese (URL) https://www.realitymix.cz, který provozuje společnost DALTEN media s.r.o., se sídlem Na Harfě 916/9a, Praha 9, 190 00, IČO: 271 35 306 (dále jen „Správce“) jako provozovateli tohoto Serveru uděluje svůj výslovný souhlas v souladu s ustanovením § 5 zákona č. 101/2000 Sb. O ochraně osobních údajů a o změně některých zákonů, v platném znění (dále jen „zákon o ochraně osobních údajů“), se zpracováním uživatelem poskytnutých osobních údajů a dalších dat.
Uživatel poskytuje Správci osobní údaje v rozsahu: jméno, příjmení, e-mailová adresa, telefonický kontakt a další data, a to z důvodu projeveného zájmu o nemovitost, kde prostřednictvím služby Serveru Správce osloví Uživatel inzerenta uvedeného v detailu
nemovitosti - Středočeské reality, spol. s r.o. (IČ 27450767) se zájmem o jeho služby.
Uživatel tyto osobní údaje poskytuje dobrovolně a bere na vědomí, že součástí služeb Správce, které Správce Uživateli poskytuje, je vyhledání všech Uživateli vyhovujících (dle parametrů - cena, typ nemovitosti, lokalita atd.) nemovitostí. Správce za tímto účelem provozuje aplikace Hlídací pes a newsletter. Tyto služby je možné z každého zaslaného emailu odhlásit. Souhlas se zpracováním osobních údajů Uživatel poskytuje Správci na dobu neurčitou s tím, že svůj udělený souhlas může Uživatel kdykoliv na drese správce info@realitymix.cz odvolat. Správce garantuje Uživateli i další práva uvedené v ustanovení §11 a §21 zákoba č. 101/200 Sb. Ve znění pozdějších předpisů.
Více informací o zpracování údajů získáte zde (realitymix.cz/zasady-ochrany-osobnich-udaju)