Novostavba 4+kk po kolaudaci, 120 m², Nedachlebice
Zkolaudovaná novostavba rodinného domu 4+kk s užitnou plochou 120 m², zahradou a možností jejího rozšíření se nachází v klidné části obce Nedachlebice. Dům je součástí řadového dvojdomku, přičemž druhá jednotka je již prodána – k dispozici je poslední volný dům označený SO 02. Kolaudace proběhla v prosinci 2025 a dům je povolen k trvalému užívání.
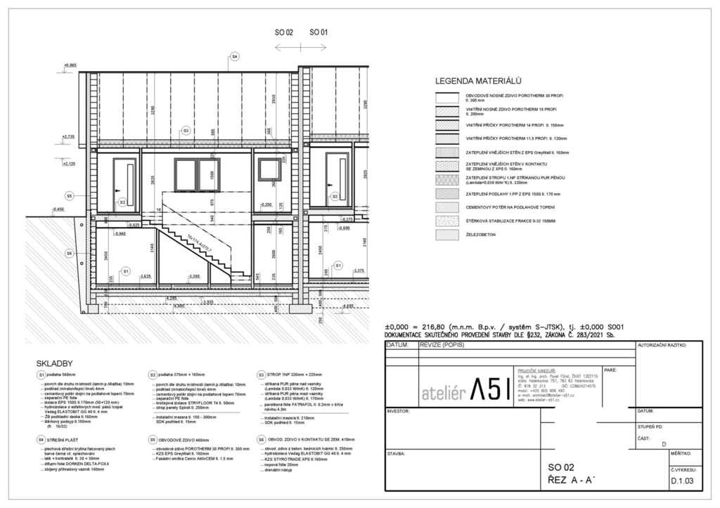
Dispozičně je dům řešen jako dvoupodlažní 4+kk s jasným oddělením denní a klidové části. V přízemí se nachází prostorný obývací pokoj s kuchyňským koutem a přímým vstupem na zahradu, technická místnost s prádelnou, koupelna s WC a schodiště. V patře jsou tři samostatné neprůchozí pokoje, druhá koupelna s WC a chodba. Nad obytnou částí je k dispozici velký půdní prostor, po dokončení vhodný pro skladování.
Užitná plocha domu činí 120 m². Pozemek má aktuální výměru 256 m², přičemž je předjednána možnost odkupu navazující části obecního pozemku o výměře cca 130 m² za symbolickou tržní cenu dle podmínek obce. Kupující tak může získat nadstandardně velkou zahradu, což je u novostaveb významná přidaná hodnota.
Dům je kompletně stavebně dokončen a zkolaudován. Součástí ceny je hotová koupelna v patře s kvalitními materiály a sanitou, kompletní rozvody, omítky, potěry a veškeré technologie. Finální podlahy, interiérové dveře, kuchyňská linka a koupelna v přízemí nejsou součástí ceny, což umožňuje novému majiteli dokončit interiér dle vlastního vkusu. Po dohodě je možné dům dokončit kompletně na klíč. Součástí prezentace jsou i vizualizace, které ilustrují možný finální vzhled domu po dokončení interiéru.
Dům je postaven ve vysokém technickém standardu – zděná konstrukce Porotherm, plastová okna s izolačním trojsklem, elektricky ovládané venkovní hliníkové žaluzie, kompletní zateplení, podlahové vytápění v celém domě, tepelné čerpadlo NIBE, centrální rekuperace a retenční nádrž na dešťovou vodu. Energetická náročnost budovy je ve třídě A, což zajišťuje velmi nízké provozní náklady. Vedle domu je k dispozici prostor vhodný pro výstavbu samostatné garáže či umístění montované garáže.
Lokalita nabízí klidné bydlení s dobrou dostupností – Uherské Hradiště 11 km, Napajedla 12 km, Zlín 20 km. Dům je ideální volbou pro ty, kteří hledají hotovou novostavbu bez rizik, s možností vlastního doladění a dlouhodobou hodnotou. Více informací Vám rád poskytnu na prohlídce nebo na vyžádání.
Pomocí naší hypoteční kalkulačky si můžete udělat orientační představu o výši měsíčních splátek hypotéky. O vše ostatní se pak postaráme my ve spolupráci s našimi obchodními partnery.
31 985 Kč
* Odhadovaná měsíční splátka vychází z výše úvěru Kč s pevnou úrokovou sazbou % po celou dobu trvání úvěru.
Uživatel serveru RealityMIX.cz (dále jen „Server“) dostupného na internetové adrese (URL) https://www.realitymix.cz, který provozuje společnost DALTEN media s.r.o., se sídlem Na Harfě 916/9a, Praha 9, 190 00, IČO: 271 35 306 (dále jen „Správce“) jako provozovateli tohoto Serveru uděluje svůj výslovný souhlas v souladu s ustanovením § 5 zákona č. 101/2000 Sb. O ochraně osobních údajů a o změně některých zákonů, v platném znění (dále jen „zákon o ochraně osobních údajů“), se zpracováním uživatelem poskytnutých osobních údajů a dalších dat.
Uživatel poskytuje Správci osobní údaje v rozsahu: jméno, příjmení, e-mailová adresa, telefonický kontakt a další data, a to z důvodu projeveného zájmu o nemovitost, kde prostřednictvím služby Serveru Správce osloví Uživatel inzerenta uvedeného v detailu
nemovitosti - PAN ESTATE s.r.o. (IČ 21335061) se zájmem o jeho služby.
Uživatel tyto osobní údaje poskytuje dobrovolně a bere na vědomí, že součástí služeb Správce, které Správce Uživateli poskytuje, je vyhledání všech Uživateli vyhovujících (dle parametrů - cena, typ nemovitosti, lokalita atd.) nemovitostí. Správce za tímto účelem provozuje aplikace Hlídací pes a newsletter. Tyto služby je možné z každého zaslaného emailu odhlásit. Souhlas se zpracováním osobních údajů Uživatel poskytuje Správci na dobu neurčitou s tím, že svůj udělený souhlas může Uživatel kdykoliv na drese správce info@realitymix.cz odvolat. Správce garantuje Uživateli i další práva uvedené v ustanovení §11 a §21 zákoba č. 101/200 Sb. Ve znění pozdějších předpisů.
Více informací o zpracování údajů získáte zde (realitymix.cz/zasady-ochrany-osobnich-udaju)