Novostavba rodinného domu 5+kk 120m2, pozemek 410m2 Nehvizdy
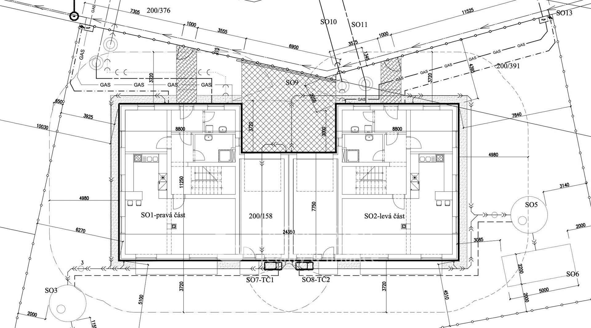
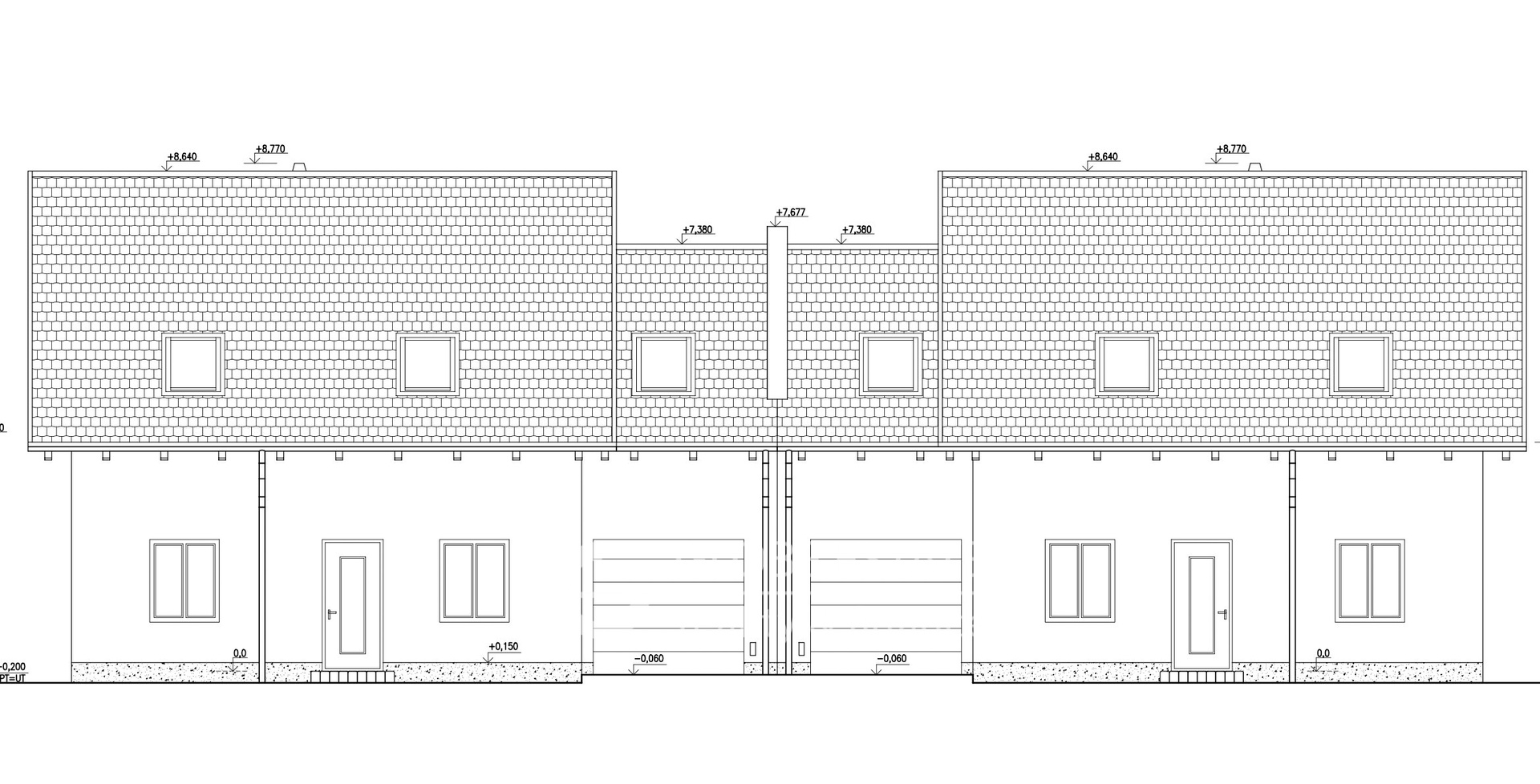
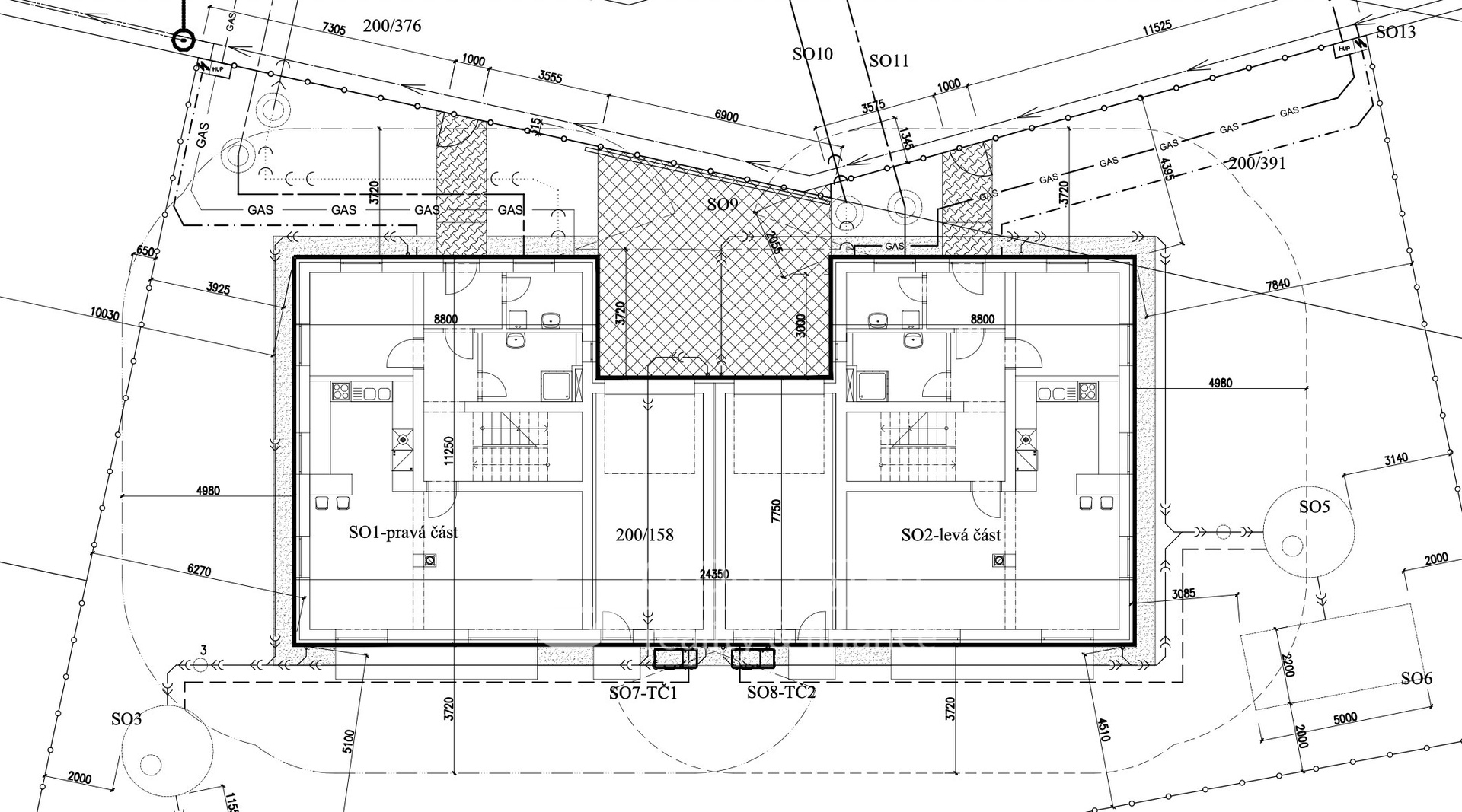
K prodeji nabízíme pravou půlku patrového dvojdomku 5+kk o rozloze cca 120 m² s pozemkem přibližně 410 m² v oblíbené lokalitě pro bydlení v obci Nehvizdy.
Tento moderní dům bude součástí nové zástavby rodinných domů, což zaručuje příjemné, klidné bydlení a zároveň dobrou dostupnost do Prahy, nebo okolních měst.
Zděný dům bude prodáván jako hrubá stavba, s novými kvalitními okny a vstupními dveřmi, to vám umožní přizpůsobit interiér podle vašich představ. Fasáda a interiér domu bude k dokončení po dohodě s realizující firmou, nebo si můžete vybrat stavební firmu podle vlastního uvážení.
Tímto způsobem získáte možnost vytvořit si domov přesně podle svých potřeb a vkusu.
Dům bude připojen na veškeré dostupné sítě – elektřinu, plyn, vodu, kanalizaci a optiku.
Pozemek bude v zadní části oplocen, pro zajištění potřebného soukromí a bezpečnosti. Vjezdová brána není součástí dodávky a tím budete mít možnost zvolit si vlastní řešení. Dokončení hrubé stavby je plánováno na léto 2026, termín vám dává dostatek času na přípravu a plánování vašeho nového bydlení.
Tato nemovitost představuje skvělou investici do budoucnosti, ať už hledáte rodinný dům pro sebe, nebo zajímavou příležitost na trhu s nemovitostmi.
Pomocí naší hypoteční kalkulačky si můžete udělat orientační představu o výši měsíčních splátek hypotéky. O vše ostatní se pak postaráme my ve spolupráci s našimi obchodními partnery.
42 350 Kč
* Odhadovaná měsíční splátka vychází z výše úvěru Kč s pevnou úrokovou sazbou % po celou dobu trvání úvěru.
Uživatel serveru RealityMIX.cz (dále jen „Server“) dostupného na internetové adrese (URL) https://www.realitymix.cz, který provozuje společnost DALTEN media s.r.o., se sídlem Na Harfě 916/9a, Praha 9, 190 00, IČO: 271 35 306 (dále jen „Správce“) jako provozovateli tohoto Serveru uděluje svůj výslovný souhlas v souladu s ustanovením § 5 zákona č. 101/2000 Sb. O ochraně osobních údajů a o změně některých zákonů, v platném znění (dále jen „zákon o ochraně osobních údajů“), se zpracováním uživatelem poskytnutých osobních údajů a dalších dat.
Uživatel poskytuje Správci osobní údaje v rozsahu: jméno, příjmení, e-mailová adresa, telefonický kontakt a další data, a to z důvodu projeveného zájmu o nemovitost, kde prostřednictvím služby Serveru Správce osloví Uživatel inzerenta uvedeného v detailu
nemovitosti - GLOBE ESTATE s.r.o. (IČ 11852828) se zájmem o jeho služby.
Uživatel tyto osobní údaje poskytuje dobrovolně a bere na vědomí, že součástí služeb Správce, které Správce Uživateli poskytuje, je vyhledání všech Uživateli vyhovujících (dle parametrů - cena, typ nemovitosti, lokalita atd.) nemovitostí. Správce za tímto účelem provozuje aplikace Hlídací pes a newsletter. Tyto služby je možné z každého zaslaného emailu odhlásit. Souhlas se zpracováním osobních údajů Uživatel poskytuje Správci na dobu neurčitou s tím, že svůj udělený souhlas může Uživatel kdykoliv na drese správce info@realitymix.cz odvolat. Správce garantuje Uživateli i další práva uvedené v ustanovení §11 a §21 zákoba č. 101/200 Sb. Ve znění pozdějších předpisů.
Více informací o zpracování údajů získáte zde (realitymix.cz/zasady-ochrany-osobnich-udaju)