Prodáme část vyčištěného zemědělského areálu, nyní užívaného pro skladování. Na pozemcích se nachází skladová hala, betonové areálové komunikace a požární nádrž. Na plánku vyznačeno jako část “A”.
Umístění a dopravní dostupnost:
- obec Neprobylice, okres Kladno
- 1,5 km silnice I. třídy I/7, na které již začala přestavba na dálnici D7 (uvedení dálnice do plného provozu v roce 2026); současně Neprobylice budou připojeny novou kapacitní přípojkou do města Slaný
- 7 km Slaný
- 20 km Louny
- 30 km Praha.
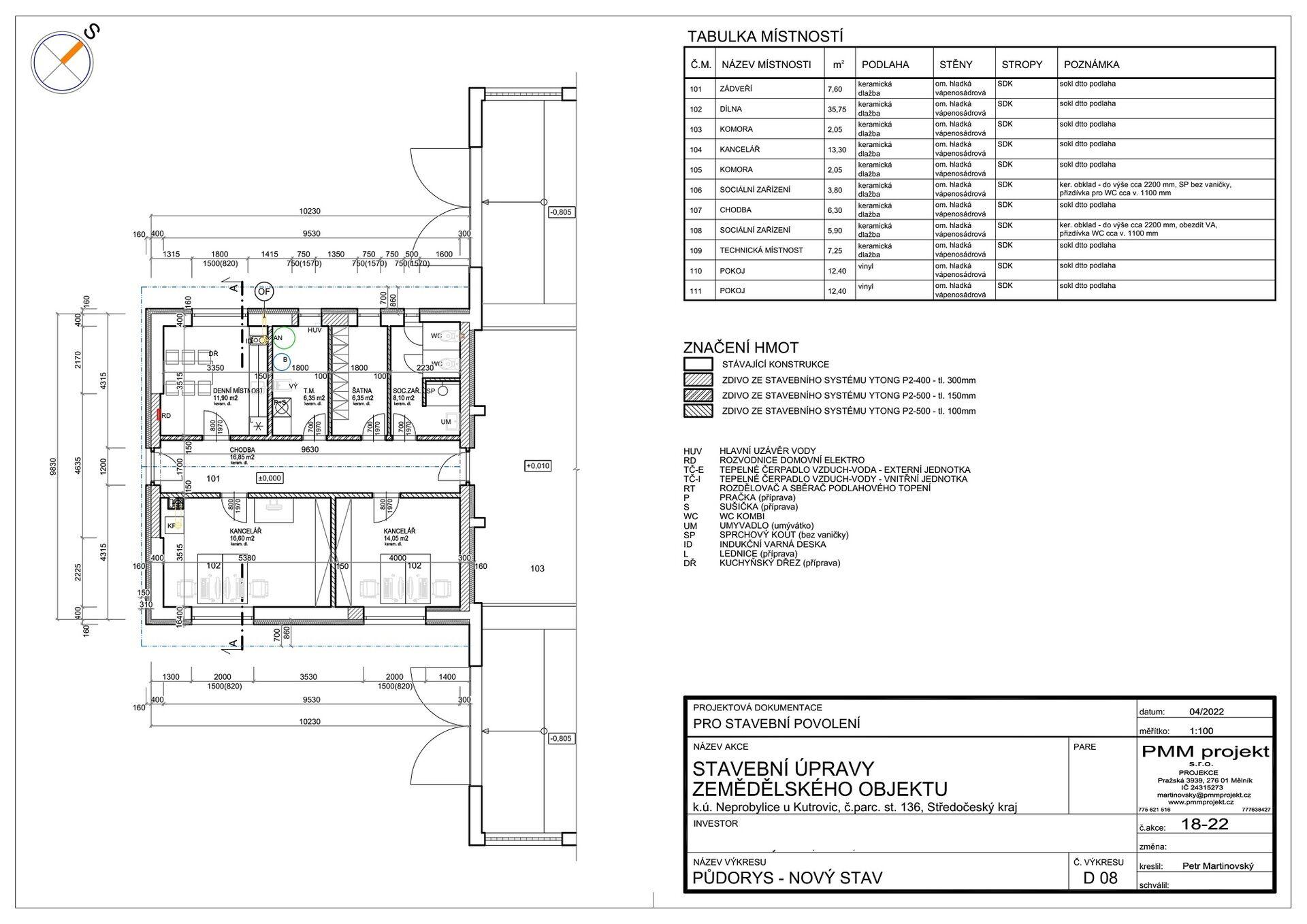
Skladovací hala:
- původně zemědělská hala o celkové zastavěné ploše 1.833 m2 (dle KN 2.650 m2 včetně rampy)
- dnes kompletně vyčištěná od zbytků živočišné výroby a technologie, opravená a přizpůsobená pro studené skladování
- objekt je obdélníkového půdorysu, jednopodlažní, bez podsklepení
- půdorysné rozměry 71,1 x 24,3 m
- nainstalována nová sekční vrata s výškou 5 m
- dále vstup do haly 4 původními dvoukřídlými vraty
- v zadní části je přístavek o zastavěné ploše 100 m2 (půdorysné rozměry 10,23 x 9,83 m), ve kterém vlastník zahájil výstavbu nového administrativního a sociálního zázemí areálu (vydané platné stavební povolení).
Pomocí naší hypoteční kalkulačky si můžete udělat orientační představu o výši měsíčních splátek hypotéky. O vše ostatní se pak postaráme my ve spolupráci s našimi obchodními partnery.
52 633 Kč
* Odhadovaná měsíční splátka vychází z výše úvěru Kč s pevnou úrokovou sazbou % po celou dobu trvání úvěru.
Uživatel serveru RealityMIX.cz (dále jen „Server“) dostupného na internetové adrese (URL) https://www.realitymix.cz, který provozuje společnost DALTEN media s.r.o., se sídlem Na Harfě 916/9a, Praha 9, 190 00, IČO: 271 35 306 (dále jen „Správce“) jako provozovateli tohoto Serveru uděluje svůj výslovný souhlas v souladu s ustanovením § 5 zákona č. 101/2000 Sb. O ochraně osobních údajů a o změně některých zákonů, v platném znění (dále jen „zákon o ochraně osobních údajů“), se zpracováním uživatelem poskytnutých osobních údajů a dalších dat.
Uživatel poskytuje Správci osobní údaje v rozsahu: jméno, příjmení, e-mailová adresa, telefonický kontakt a další data, a to z důvodu projeveného zájmu o nemovitost, kde prostřednictvím služby Serveru Správce osloví Uživatel inzerenta uvedeného v detailu
nemovitosti - GENERA s.r.o. (IČ 47541075) se zájmem o jeho služby.
Uživatel tyto osobní údaje poskytuje dobrovolně a bere na vědomí, že součástí služeb Správce, které Správce Uživateli poskytuje, je vyhledání všech Uživateli vyhovujících (dle parametrů - cena, typ nemovitosti, lokalita atd.) nemovitostí. Správce za tímto účelem provozuje aplikace Hlídací pes a newsletter. Tyto služby je možné z každého zaslaného emailu odhlásit. Souhlas se zpracováním osobních údajů Uživatel poskytuje Správci na dobu neurčitou s tím, že svůj udělený souhlas může Uživatel kdykoliv na drese správce info@realitymix.cz odvolat. Správce garantuje Uživateli i další práva uvedené v ustanovení §11 a §21 zákoba č. 101/200 Sb. Ve znění pozdějších předpisů.
Více informací o zpracování údajů získáte zde (realitymix.cz/zasady-ochrany-osobnich-udaju)