Nabízíme ke koupi prostorný a pečlivě udržovaný rodinný dům nacházející se na klidném okraji města Nová Paka. Součástí domu je krásná, udržovaná zahrada, která poskytuje ideální prostor pro relaxaci i volnočasové aktivity.
!AKTUÁLNĚ SLEVA Z PŮVODNÍ CENY 11 990 000 Kč!
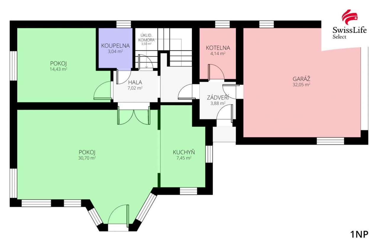
Tento patrový, cihlový dům zkolaudovaný v roce 2000 nabízí komfortní a promyšlenou dispozici 6+kk s užitnou plochou 180 m. Je připraven k okamžitému nastěhování bez dalších investic!
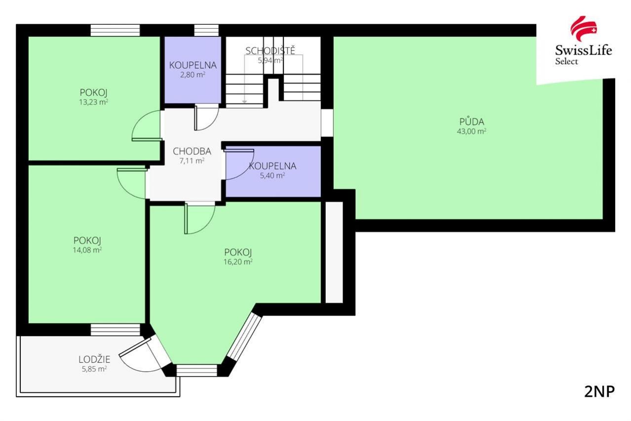
V přízemí naleznete prostorný obývací pokoj s krbem a kuchyňským koutem, dále ložnici a koupelnu s toaletou. V horním patře se nachází dva neprůchozí pokoje, koupelna a velký otevřený půdní prostor, který skýtá široké možnosti využití například jako ateliér, herna či další obytné místnosti. V domě jsou k dispozici tři koupelny a dvě toalety, což výrazně zvyšuje komfort každodenního bydlení. (Dispozice viz půdorys)
K ložnici v 2. nadzemním podlaží náleží lodžie o rozloze 6 m orientovaná na jih, ideální pro odpolední odpočinek. Příjemné venkovní posezení je doplněno terasou, která přímo vybízí k trávení času s rodinou a přáteli. Celková plocha pozemku činí 628 m.
Pro pohodlné parkování jsou k dispozici dvě garážová stání a také dvě venkovní parkovací místa přímo u domu.
O vytápění se stará ústřední plynový kotel s radiátory, v chladnějších měsících lze navíc využít krb. Dům je napojen na veřejnou kanalizaci, vodovod i plynovod. Energetickou úsporu zajistí solární panely, které přispívají k ohřevu vody a snižují náklady na vytápění.
Lokalita domu nabízí kompletní občanskou vybavenost: v pěší dostupnosti se nacházejí školy, školky, nákupní centrum, restaurace, pošta, obecní úřad, lékařská zařízení, bazén i koupaliště. Výborná dopravní dostupnost je zajištěna městskou hromadnou dopravou, vlakem i po silnici. Dům je situován v samostatné zástavbě a nabízí tak klidné, bezpečné a rodinně laděné prostředí.
Tato nemovitost je ideální volbou pro vícečlennou rodinu, která ocení dostatek prostoru, soukromí i funkční uspořádání interiéru a exteriéru.
Máte zájem o prohlídku nebo více informací? Neváhejte mě kontaktovat!
Rádi Vám také pomůžeme zajistit výhodné financování této nemovitosti za nejlepších podmínek na trhu.
Pomocí naší hypoteční kalkulačky si můžete udělat orientační představu o výši měsíčních splátek hypotéky. O vše ostatní se pak postaráme my ve spolupráci s našimi obchodními partnery.
42 172 Kč
* Odhadovaná měsíční splátka vychází z výše úvěru Kč s pevnou úrokovou sazbou % po celou dobu trvání úvěru.
Uživatel serveru RealityMIX.cz (dále jen „Server“) dostupného na internetové adrese (URL) https://www.realitymix.cz, který provozuje společnost DALTEN media s.r.o., se sídlem Na Harfě 916/9a, Praha 9, 190 00, IČO: 271 35 306 (dále jen „Správce“) jako provozovateli tohoto Serveru uděluje svůj výslovný souhlas v souladu s ustanovením § 5 zákona č. 101/2000 Sb. O ochraně osobních údajů a o změně některých zákonů, v platném znění (dále jen „zákon o ochraně osobních údajů“), se zpracováním uživatelem poskytnutých osobních údajů a dalších dat.
Uživatel poskytuje Správci osobní údaje v rozsahu: jméno, příjmení, e-mailová adresa, telefonický kontakt a další data, a to z důvodu projeveného zájmu o nemovitost, kde prostřednictvím služby Serveru Správce osloví Uživatel inzerenta uvedeného v detailu
nemovitosti - Swiss Life Select Reality (IČ 24260444) se zájmem o jeho služby. Tato společnost je součástí seskupení/sítě/franšízového modelu realitních kanceláří, jejich seznam můžete zobrazit kliknutím na tento odkaz.
Fincentrum a.s. (IČ 24260444) , Swiss Life Select Reality (IČ 24260444)
Uživatel tyto osobní údaje poskytuje dobrovolně a bere na vědomí, že součástí služeb Správce, které Správce Uživateli poskytuje, je vyhledání všech Uživateli vyhovujících (dle parametrů - cena, typ nemovitosti, lokalita atd.) nemovitostí. Správce za tímto účelem provozuje aplikace Hlídací pes a newsletter. Tyto služby je možné z každého zaslaného emailu odhlásit. Souhlas se zpracováním osobních údajů Uživatel poskytuje Správci na dobu neurčitou s tím, že svůj udělený souhlas může Uživatel kdykoliv na drese správce info@realitymix.cz odvolat. Správce garantuje Uživateli i další práva uvedené v ustanovení §11 a §21 zákoba č. 101/200 Sb. Ve znění pozdějších předpisů.
Více informací o zpracování údajů získáte zde (realitymix.cz/zasady-ochrany-osobnich-udaju)