Nabízíme k pronájmu atraktivní komerční prostory na frekventovaném místě v centru Nového Boru, v ulici B. Egermanna, přímo naproti městskému úřadu. Jedná se o prodejnu, situovanou v přízemí s bezbariérovým a přímým vstupem z ulice, což zaručuje výbornou viditelnost i dostupnost pro zákazníky.
Hlavní přednosti prostoru:
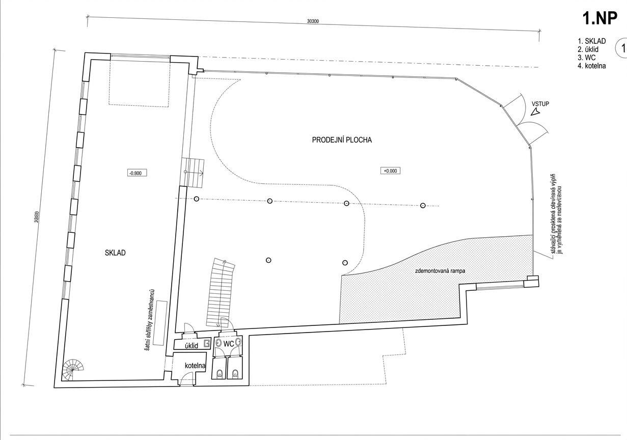
Prodejní plocha: 380 m²
Skladové prostory: 140 m²
Možnost pronájmu kanceláří v patře: až 300 m²
Přístup: samostatný vstup pro návštěvníky + vjezd pro zásobování
Zázemí pro zaměstnance, šatny a sociální zařízení
Parkování přímo před objektem
Prostory jsou ve velmi dobrém technickém stavu. Vytápění zajišťuje nový plynový kotel.
Díky umístění v centru města a výborné dopravní dostupnosti jsou prostory vhodné pro maloobchod, zákaznické centrum či kombinaci obchodu a služeb.
Dostupnost ihned
Nájemné: 39 000 Kč/měsíc + služby (zvýhodněné nájemné na 1.rok nájmu)
Pro více informací nebo sjednání prohlídky nás neváhejte kontaktovat.
Uživatel serveru RealityMIX.cz (dále jen „Server“) dostupného na internetové adrese (URL) https://www.realitymix.cz, který provozuje společnost DALTEN media s.r.o., se sídlem Na Harfě 916/9a, Praha 9, 190 00, IČO: 271 35 306 (dále jen „Správce“) jako provozovateli tohoto Serveru uděluje svůj výslovný souhlas v souladu s ustanovením § 5 zákona č. 101/2000 Sb. O ochraně osobních údajů a o změně některých zákonů, v platném znění (dále jen „zákon o ochraně osobních údajů“), se zpracováním uživatelem poskytnutých osobních údajů a dalších dat.
Uživatel poskytuje Správci osobní údaje v rozsahu: jméno, příjmení, e-mailová adresa, telefonický kontakt a další data, a to z důvodu projeveného zájmu o nemovitost, kde prostřednictvím služby Serveru Správce osloví Uživatel inzerenta uvedeného v detailu
nemovitosti - Real Profin CL s.r.o. (IČ 25035037) se zájmem o jeho služby.
Uživatel tyto osobní údaje poskytuje dobrovolně a bere na vědomí, že součástí služeb Správce, které Správce Uživateli poskytuje, je vyhledání všech Uživateli vyhovujících (dle parametrů - cena, typ nemovitosti, lokalita atd.) nemovitostí. Správce za tímto účelem provozuje aplikace Hlídací pes a newsletter. Tyto služby je možné z každého zaslaného emailu odhlásit. Souhlas se zpracováním osobních údajů Uživatel poskytuje Správci na dobu neurčitou s tím, že svůj udělený souhlas může Uživatel kdykoliv na drese správce info@realitymix.cz odvolat. Správce garantuje Uživateli i další práva uvedené v ustanovení §11 a §21 zákoba č. 101/200 Sb. Ve znění pozdějších předpisů.
Více informací o zpracování údajů získáte zde (realitymix.cz/zasady-ochrany-osobnich-udaju)