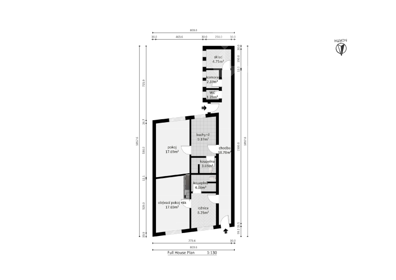
Nabízíme k prodeji rodinný dům v samotném centru Nového Bydžova, v ulici J. E. Purkyně. Nemovitost nabízí velmi zajímavé možnosti využití - lze ji pohodlně užívat jako dvě samostatné bytové jednotky, což z ní činí ideální investiční příležitost k pronájmu, nebo je možné jednotlivé místnosti propojit a vytvořit tak komfortní bydlení pro větší rodinu.
Dům je aktuálně dispozičně řešen jako byt 2+kk a byt 1+1, přičemž v domě se dále nachází také komora, samostatné WC a sklad. Další potenciál nabízí možnost vybudování podkroví, a tím rozšíření obytného prostoru dle vlastních představ.
Nemovitost prošla úpravami, je zateplená a má novou fasádu. Okna jsou s trojskly, na oknech jsou předokenní hliníkové žaluzie, které zvyšují komfort bydlení i soukromí. K příjemnému zázemí domu patří také pergola a slunná zahrada, která poskytuje dostatek soukromí i prostoru pro odpočinek. Na zahradě je k dispozici studna.
Vytápění domu je zajištěno plynovým kotlem, ohřev vody pak bojlerem.
Pokud hledáte dům s variabilním využitím, ať už pro vlastní bydlení, vícegenerační soužití nebo jako investici k pronájmu, tato nabídka v atraktivní lokalitě centra města vás jistě osloví.
Průkaz energetické náročnosti budovy je aktuálně ve zpracování, a proto je nemovitost v souladu se zákonem prozatím uváděna v energetické třídě G, po jeho zpracování bude údaj doplněn.
Pro více informací a domluvení prohlídky nás neváhejte kontaktovat. Výhodné financování Vám rádi zdarma zajistíme.
Pomocí naší hypoteční kalkulačky si můžete udělat orientační představu o výši měsíčních splátek hypotéky. O vše ostatní se pak postaráme my ve spolupráci s našimi obchodními partnery.
20 203 Kč
* Odhadovaná měsíční splátka vychází z výše úvěru Kč s pevnou úrokovou sazbou % po celou dobu trvání úvěru.
Uživatel serveru RealityMIX.cz (dále jen „Server“) dostupného na internetové adrese (URL) https://www.realitymix.cz, který provozuje společnost DALTEN media s.r.o., se sídlem Na Harfě 916/9a, Praha 9, 190 00, IČO: 271 35 306 (dále jen „Správce“) jako provozovateli tohoto Serveru uděluje svůj výslovný souhlas v souladu s ustanovením § 5 zákona č. 101/2000 Sb. O ochraně osobních údajů a o změně některých zákonů, v platném znění (dále jen „zákon o ochraně osobních údajů“), se zpracováním uživatelem poskytnutých osobních údajů a dalších dat.
Uživatel poskytuje Správci osobní údaje v rozsahu: jméno, příjmení, e-mailová adresa, telefonický kontakt a další data, a to z důvodu projeveného zájmu o nemovitost, kde prostřednictvím služby Serveru Správce osloví Uživatel inzerenta uvedeného v detailu
nemovitosti - Bidli reality, a.s. (IČ 06790763) se zájmem o jeho služby. Tato společnost je součástí seskupení/sítě/franšízového modelu realitních kanceláří, jejich seznam můžete zobrazit kliknutím na tento odkaz.
Hypocentrum modré pyramidy - Praha (IČ ) , Hypocentrum modré pyramidy - Brno (IČ ) , Hypocentrum Modré pyramidy - Hradec Králové (IČ ) , Hypocentrum Modré pyramidy - České Budějovice (IČ ) , Hypocentrum Modré pyramidy - Pardubice (IČ ) , Hypocentrum Modré pyramidy - Plzeň (IČ ) , Hypocentrum Modré pyramidy - Ústí nad Labem (IČ ) , Hypocentrum Modré pyramidy - Ostrava (IČ ) , Hypocentrum Modré pyramidy - Olomouc (IČ ) , Bidli reality, a.s. (IČ 06790763)
Uživatel tyto osobní údaje poskytuje dobrovolně a bere na vědomí, že součástí služeb Správce, které Správce Uživateli poskytuje, je vyhledání všech Uživateli vyhovujících (dle parametrů - cena, typ nemovitosti, lokalita atd.) nemovitostí. Správce za tímto účelem provozuje aplikace Hlídací pes a newsletter. Tyto služby je možné z každého zaslaného emailu odhlásit. Souhlas se zpracováním osobních údajů Uživatel poskytuje Správci na dobu neurčitou s tím, že svůj udělený souhlas může Uživatel kdykoliv na drese správce info@realitymix.cz odvolat. Správce garantuje Uživateli i další práva uvedené v ustanovení §11 a §21 zákoba č. 101/200 Sb. Ve znění pozdějších předpisů.
Více informací o zpracování údajů získáte zde (realitymix.cz/zasady-ochrany-osobnich-udaju)