Prodej moderního rodinného domu – splňte si sen o dokonalém bydlení na vašem pozemku
Představujeme Vám jedinečnou příležitost stát se majitelem novostavby rodinného domu, který je připraven splnit všechna Vaše očekávání o moderním a komfortním bydlení. Tento dům je ideální pro mladé rodiny, které hledají prostorné a prakticky řešené bydlení.
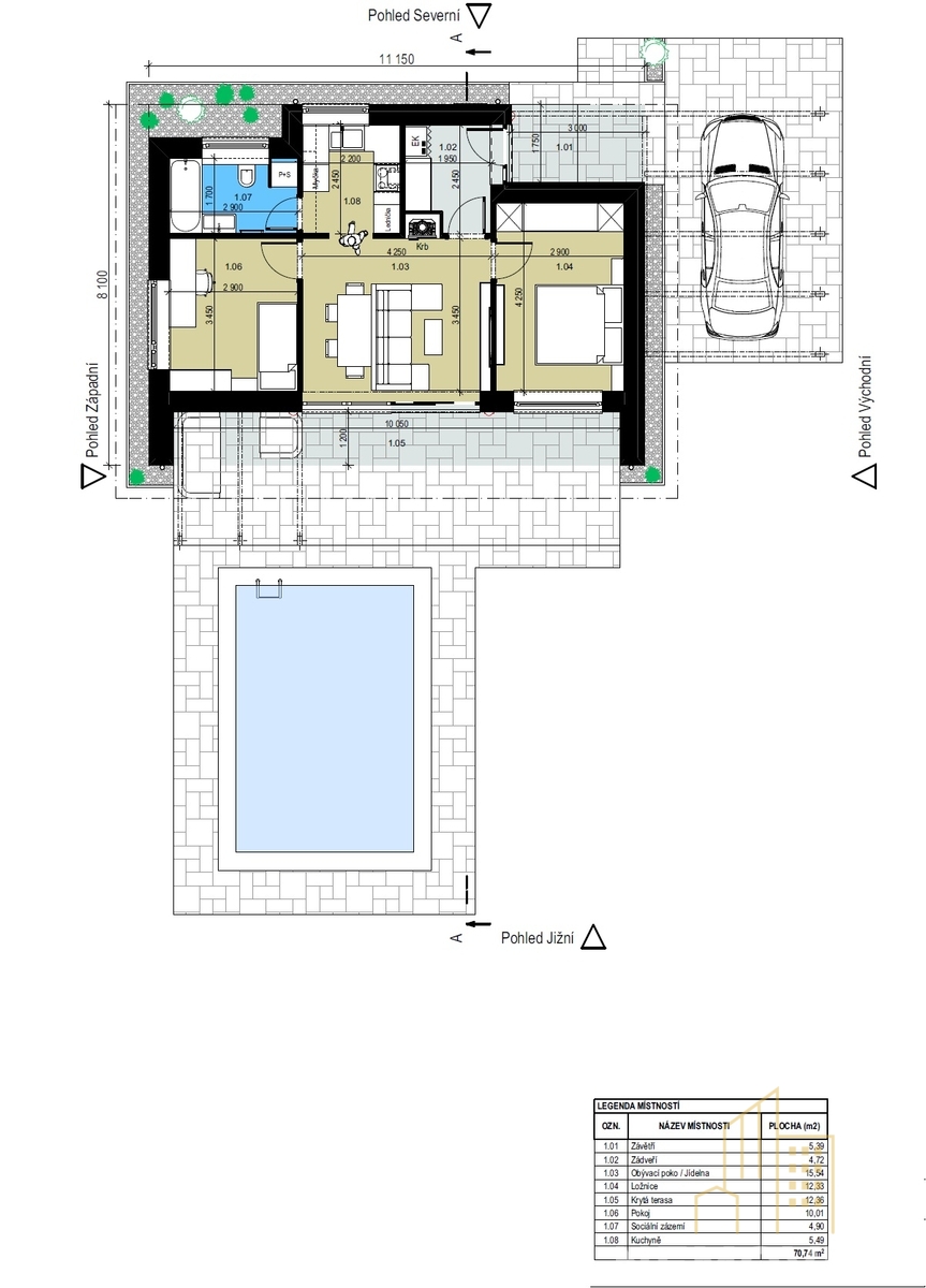
Dispozice a vybavení domu:
Ve chvíli, kdy vstoupíte do tohoto nádherného domu, ocitnete se v obývacím pokoji, který je chytře propojen s kuchyňským koutem. Tato oblast je ideálním místem pro rodinná setkání a posezení s přáteli. Z obývacího pokoje vedou balkónové dveře přímo na zahradu, což umožňuje snadné propojení interiéru s exteriérem a vytváří tak příjemnou atmosféru pro relaxaci na čerstvém vzduchu.
V domě naleznete ložnici a jeden dětský pokoj, který poskytnou dostatek prostoru pro klidný spánek a soukromí každému členu rodiny. Součástí domu je také WC s koupelnou. Dům nabízí desítky variant uspořádání a designu, takže si můžete přizpůsobit interiér i exteriér přesně podle Vašich představ.
Vybavení na míru:
V rámci prodeje je dům kompletně dokončen a vybaven a je připraven k okamžitému nastěhování. Můžete si vybrat podlahové krytiny, obklady, dlažby, sanitární keramiku, dveře a okna, stejně jako barvu a provedení fasády a střešní krytiny. Na přání lze dům doplnit terasou, pergolou, garážovým stáním nebo garáží.
Lokalita a financování:
Dům se bude nacházet na vašem pozemku. Pro ty, kteří ještě nemají pozemek, nabízíme službu vyhledání nebo prověření pozemku pro výstavbu. Navíc Vám pomůžeme zajistit nejvýhodnější hypotéku na trhu.
Rychlá výstavba:
Výstavba domu probíhá na klíč a trvá pouhých 8 až 12 měsíců. Tento jednopodlažní dům typu A5 splňuje všechny současné požadavky na moderní architekturu v městském stylu a představuje nejžádanější typ bytové jednotky v rodinných domech.
Cena:
V ceně je zahrnuta základová deska.
Nepromeškejte tuto jedinečnou příležitost a kontaktujte nás ještě dnes pro více informací a domluvení detailů. Tento dům je připraven stát se Vaším novým domovem, kde budete moci žít v pohodlí a stylu, jaký si zasloužíte.
Pomocí naší hypoteční kalkulačky si můžete udělat orientační představu o výši měsíčních splátek hypotéky. O vše ostatní se pak postaráme my ve spolupráci s našimi obchodními partnery.
14 171 Kč
* Odhadovaná měsíční splátka vychází z výše úvěru Kč s pevnou úrokovou sazbou % po celou dobu trvání úvěru.
Uživatel serveru RealityMIX.cz (dále jen „Server“) dostupného na internetové adrese (URL) https://www.realitymix.cz, který provozuje společnost DALTEN media s.r.o., se sídlem Na Harfě 916/9a, Praha 9, 190 00, IČO: 271 35 306 (dále jen „Správce“) jako provozovateli tohoto Serveru uděluje svůj výslovný souhlas v souladu s ustanovením § 5 zákona č. 101/2000 Sb. O ochraně osobních údajů a o změně některých zákonů, v platném znění (dále jen „zákon o ochraně osobních údajů“), se zpracováním uživatelem poskytnutých osobních údajů a dalších dat.
Uživatel poskytuje Správci osobní údaje v rozsahu: jméno, příjmení, e-mailová adresa, telefonický kontakt a další data, a to z důvodu projeveného zájmu o nemovitost, kde prostřednictvím služby Serveru Správce osloví Uživatel inzerenta uvedeného v detailu
nemovitosti - NEMO VIDO, s.r.o. (IČ 22656022) se zájmem o jeho služby.
Uživatel tyto osobní údaje poskytuje dobrovolně a bere na vědomí, že součástí služeb Správce, které Správce Uživateli poskytuje, je vyhledání všech Uživateli vyhovujících (dle parametrů - cena, typ nemovitosti, lokalita atd.) nemovitostí. Správce za tímto účelem provozuje aplikace Hlídací pes a newsletter. Tyto služby je možné z každého zaslaného emailu odhlásit. Souhlas se zpracováním osobních údajů Uživatel poskytuje Správci na dobu neurčitou s tím, že svůj udělený souhlas může Uživatel kdykoliv na drese správce info@realitymix.cz odvolat. Správce garantuje Uživateli i další práva uvedené v ustanovení §11 a §21 zákoba č. 101/200 Sb. Ve znění pozdějších předpisů.
Více informací o zpracování údajů získáte zde (realitymix.cz/zasady-ochrany-osobnich-udaju)