Exkluzivně nabízíme prodej bytu 3+kk , 99m2 s terasou, v Nučicích u Rudné
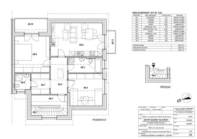
Exkluzivně nabízíme prodej bytu 3+kk, 99m2 v krásné lokalitě u lesa, ul. Na Stráži, Nučice u Rudné, v nově rostoucí rezidenční lokalitě "Na Stráži". Tento velmi prostorný byt v 2.NP, 3+kk, 99m2 s vyhrazeným parkováním před domem svou velkorysou dispozicí nabízí světlý obývací pokoj s kuchyňským koutem o velikosti 23,48m2, ložnici 14,95m2, dětský pokoj 17,53m2, koupelna s WC a vanou 7,32m2, druhá koupelna se sprchovým koutem a WC 3,52m2, šatna 5,25m2 a ostatním zázemím. Dokončení 4Q/2026. Dům ve kterém se bytová jednotka nachází je v krásné lokalitě Na Stráži, Nučice, je to nově vznikající rezidenční čtvrt s vlastním zázemím, s převažující zástavbou rodinnými domy, kde je kladený velký důraz na komfort a klidné bydlení u lesa. Nučice u Rudné (Praha – západ) se díky své poloze se staly velice žádanou lokalitou, a to nejen pro svou výbornou dopravní dostupnost, ale také bohatou občanskou vybavenost. Nučice a nedaleké město Rudná nabízejí bydlení v krásné přírodě, přesto však s veškerým komfortem a splněnými požadavky na aktivní život v této moderní době. Najdete zde mateřskou a základní školu, zdravotní středisko, zubní ordinaci, sportovní centra (moderní jízdárnu, kuželková dráha, areál pro frisbee, dva fotbalové stadiony, squash, tenis, plážový volejbal, minigolf, fitness, solárium, masáže atd.), poštu, obchody, restaurace a mnoho dalších služeb. Nučice jsou zároveň vstupní branou do kouzelných lesů Berounska, které lákají k vyjížďkám na kole po okolních cyklostezkách, nebo na rodinné výlety a pěší turistiku po krásných okolních místech jako je např. přírodní park Povodí Kačáku. Nedaleko se nachází i zatopený lom Amerika, hrad Karlštejn nebo romantické údolí řeky Berounky. Nučice a jejich okolí je místem jako stvořeným pro klidné bydlení, tak i výchovu Vašich dětí, nebo sport či relaxaci. K velkým nákupům můžete z Nučic vyrazit do blízkého komplexu, kterým je obchodní a zábavní centrum Zličín.Doporučuji prohlídku vzorového domu, kde Vám rádi poskytneme veškeré další informace a možnosti.
Pomocí naší hypoteční kalkulačky si můžete udělat orientační představu o výši měsíčních splátek hypotéky. O vše ostatní se pak postaráme my ve spolupráci s našimi obchodními partnery.
45 953 Kč
* Odhadovaná měsíční splátka vychází z výše úvěru Kč s pevnou úrokovou sazbou % po celou dobu trvání úvěru.
Prodáváte nemovitost a potřebujete zjistit její reálnou hodnotu?
Uživatel serveru RealityMIX.cz (dále jen „Server“) dostupného na internetové adrese (URL) https://www.realitymix.cz, který provozuje společnost DALTEN media s.r.o., se sídlem Na Harfě 916/9a, Praha 9, 190 00, IČO: 271 35 306 (dále jen „Správce“) jako provozovateli tohoto Serveru uděluje svůj výslovný souhlas v souladu s ustanovením § 5 zákona č. 101/2000 Sb. O ochraně osobních údajů a o změně některých zákonů, v platném znění (dále jen „zákon o ochraně osobních údajů“), se zpracováním uživatelem poskytnutých osobních údajů a dalších dat.
Uživatel poskytuje Správci osobní údaje v rozsahu: jméno, příjmení, e-mailová adresa, telefonický kontakt a další data, a to z důvodu projeveného zájmu o nemovitost, kde prostřednictvím služby Serveru Správce osloví Uživatel inzerenta uvedeného v detailu
nemovitosti - Reality PROSTOR s.r.o. (IČ 48951366) se zájmem o jeho služby.
Uživatel tyto osobní údaje poskytuje dobrovolně a bere na vědomí, že součástí služeb Správce, které Správce Uživateli poskytuje, je vyhledání všech Uživateli vyhovujících (dle parametrů - cena, typ nemovitosti, lokalita atd.) nemovitostí. Správce za tímto účelem provozuje aplikace Hlídací pes a newsletter. Tyto služby je možné z každého zaslaného emailu odhlásit. Souhlas se zpracováním osobních údajů Uživatel poskytuje Správci na dobu neurčitou s tím, že svůj udělený souhlas může Uživatel kdykoliv na drese správce info@realitymix.cz odvolat. Správce garantuje Uživateli i další práva uvedené v ustanovení §11 a §21 zákoba č. 101/200 Sb. Ve znění pozdějších předpisů.
Více informací o zpracování údajů získáte zde (realitymix.cz/zasady-ochrany-osobnich-udaju)