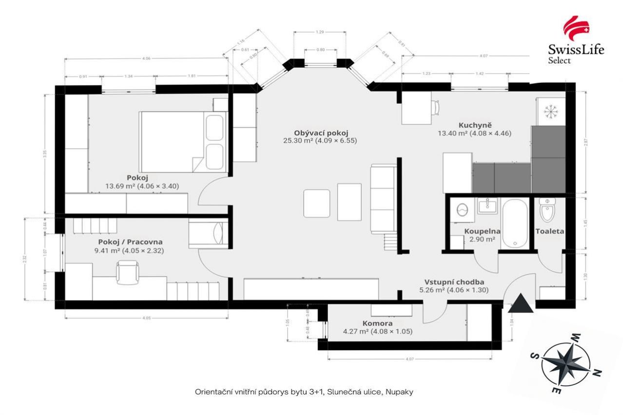
Připravil jsem pro vás k prodeji udržovaný byt 3+1 o užitné ploše 75 m v 1. patře bytového domu s velkou garáží v obci Nupaky u Prahy, který je ideální volbou pro mladou rodinu hledající klidné bydlení s výbornou dostupností do hlavního města a bezstarostným parkováním. Nemovitost se prodává s veškerými nábytkem vyrobeným na míru.
Byt je v standardním provedení a ve stavu, který umožňuje okamžité bydlení. Velkým benefitem je jihozápadní orientace bytu s dostatkem světla po celý den, dále dřevěné podlahy ve všech pokojích, které působí teple a útulně, a také okna s izolačními trojskly, díky nimž je v interiéru příjemný tepelný komfort a klid. Rozšíření možností úložného prostoru v bytě nabízí větší komora, kterou můžete využít i k jinému účelu. O bezpečí domova se starají kvalitní bezpečnostní vstupní dveře značky NEXT. Byt má vlastní vytápění plynovým kotlem s ohřevem teplé vody, což zajišťuje stabilní komfort a kontrolu nad provozními náklady.
Dům je po částečném zateplení fasády a připravuje se druhá etapa, která může do budoucna přinést další zlepšení energetických parametrů domu.
Základní měsíční platby byt 3.773 Kč, platby garáž 335 Kč, měsíční záloha za elektřinu 1.200 Kč, měsíční záloha za plyn 1.000 Kč.
K bytu náleží prostorná garáž o ploše 24 m, která kromě parkování skvěle poslouží i jako místo pro uskladnění kočárku, kol, sportovního vybavení nebo sezónních věcí, a další praktickou výhodou je možnost druhého stání přímo před garáží, takže pohodlně zaparkujete jedno až dvě auta bez hledání místa.
Nupaky jsou oblíbenou lokalitou pro rodinné bydlení díky poklidnému prostředí, blízkosti přírody a současně rychlému napojení na Prahu, což oceníte při každodenním dojíždění do práce i při cestách za službami a zábavou. Obec nabízí příjemnou atmosféru, základní občanskou vybavenost a v těsné blízkosti najdete další služby, školy, školky, obchody i volnočasové aktivity, takže máte vše potřebné prakticky po ruce.
Pokud hledáte byt, který kombinuje klid, bezpečné a komfortní bydlení, garáž a výhodu dvou parkovacích míst s výbornou dostupností Prahy, tenhle byt v Nupakách je velmi zajímavá příležitost.
Zavolejte, řekne si všechny detaily a můžeme dohodnout vhodný termín prohlídky. Prodávající si vyhrazuje právo výběru kupujícího a určení způsobu prodeje. Radim Macháček
Pomocí naší hypoteční kalkulačky si můžete udělat orientační představu o výši měsíčních splátek hypotéky. O vše ostatní se pak postaráme my ve spolupráci s našimi obchodními partnery.
40 475 Kč
* Odhadovaná měsíční splátka vychází z výše úvěru Kč s pevnou úrokovou sazbou % po celou dobu trvání úvěru.
Prodáváte nemovitost a potřebujete zjistit její reálnou hodnotu?
Uživatel serveru RealityMIX.cz (dále jen „Server“) dostupného na internetové adrese (URL) https://www.realitymix.cz, který provozuje společnost DALTEN media s.r.o., se sídlem Na Harfě 916/9a, Praha 9, 190 00, IČO: 271 35 306 (dále jen „Správce“) jako provozovateli tohoto Serveru uděluje svůj výslovný souhlas v souladu s ustanovením § 5 zákona č. 101/2000 Sb. O ochraně osobních údajů a o změně některých zákonů, v platném znění (dále jen „zákon o ochraně osobních údajů“), se zpracováním uživatelem poskytnutých osobních údajů a dalších dat.
Uživatel poskytuje Správci osobní údaje v rozsahu: jméno, příjmení, e-mailová adresa, telefonický kontakt a další data, a to z důvodu projeveného zájmu o nemovitost, kde prostřednictvím služby Serveru Správce osloví Uživatel inzerenta uvedeného v detailu
nemovitosti - Swiss Life Select Reality (IČ 24260444) se zájmem o jeho služby. Tato společnost je součástí seskupení/sítě/franšízového modelu realitních kanceláří, jejich seznam můžete zobrazit kliknutím na tento odkaz.
Fincentrum a.s. (IČ 24260444) , Swiss Life Select Reality (IČ 24260444)
Uživatel tyto osobní údaje poskytuje dobrovolně a bere na vědomí, že součástí služeb Správce, které Správce Uživateli poskytuje, je vyhledání všech Uživateli vyhovujících (dle parametrů - cena, typ nemovitosti, lokalita atd.) nemovitostí. Správce za tímto účelem provozuje aplikace Hlídací pes a newsletter. Tyto služby je možné z každého zaslaného emailu odhlásit. Souhlas se zpracováním osobních údajů Uživatel poskytuje Správci na dobu neurčitou s tím, že svůj udělený souhlas může Uživatel kdykoliv na drese správce info@realitymix.cz odvolat. Správce garantuje Uživateli i další práva uvedené v ustanovení §11 a §21 zákoba č. 101/200 Sb. Ve znění pozdějších předpisů.
Více informací o zpracování údajů získáte zde (realitymix.cz/zasady-ochrany-osobnich-udaju)