Dovolujeme si vám zprostředkovat koupi novostavby viladomu v rezidenční lokalitě Pod Vyhlídkou v Ochozu u Brna. Jedná se o třetí etapu výstavby, která zahrnuje čtyři rodinné domy v nadstandardním provedení. Dvoupodlažní dům s užitnou plochou 225 m2, zasazený do jižního svahu, je umístěn na pozemku s celkovou výměrou 959 m2.
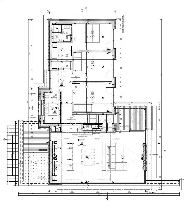
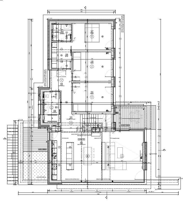
1. PP - technické: zádveří, vstupní hala, WC, technická místnost, pracovna, garáž pro dva automobily;
1. NP obytné: hala, obývací pokoj s kuchyňským koutem (57 m2, v obytné části s výškou stropu 4,5 m), dva pokoje (14,5 m2;14,5 m2), ložnice s vlastní šatnou, koupelnou a toaletou (24 m2), koupelna společná s toaletou, vstup na dvě terasy a do zahrady.
Technický popis: základové pasy + ŽB základová deska, svislé konstrukce 1.PP btb tvarovky, 1.NP keramické tvarovky, strop 1.PP ŽB monolitická deska, strop 1.NP řešen jako součást konstrukce dřevěného krovu, střecha sedlová s keramickou krytinou, omítaná fasáda s částečně dřevěným obkladem ze sibiřského modřínu, provedená v zateplovacím systému ETICS, výplně otvorů hliníkové, velkoplošná skla, předokenní žaluzie. Primárním zdrojem tepla je rekuperační jednotka s integrovaným tepelným čerpadlem s výkonem až 1,3 kW, sekundárním zdrojem tepla je ve všech místnostech elektrické podlahové topení, interiérové schodiště zděné Ytong, dešťová voda svedena do akumulační jímky s bezpečnostním přepadem do vsakovacích bloků. V ceně domu je zahrnuta chytrá domácnost SOMFY, díky které bude možné ovládat žaluzie, garážová vrata, regulaci topení a videotelefon, zabezpečovací systém s napojením dveřních magnetů a sensorů pohybu, venkovní kamery. V ložnici, dětských pokojích a obývacím prostoru budou integrovány klimatizační jednotky. Dům bude prodáván ve stupni dokončení and #34;White Walls and #34; (bez podlahových krytin, obkladů, zařizovacích předmětů, dveří).
Venkovní schodiště propojuje úroveň vjezdu a zahrady v úrovní 1.NP. Celý pozemek bude oplocen plotovými 3D panely, uliční oplocení bude tvořit opěrná zeď, zpevněné plochy budou zajišťovat jedno odstavné a jedno parkovací místo, zahrada bude oseta trávou.
V současné době je dům ve fázi hrubé stavby.
V lokalitě Pod Skalkou se k prodeji nabízí i další viladomy a RD, více informací v RK.
Obec Ochoz u Brna leží na okraji CHKO Moravský kras v těsné blízkosti lesů, ve vzdálenosti 7 km od hranice městské části Brno - Líšeň.
Občanská vybavenost: Česká pošta, praktický lékař pro dospělé, ZŠ a MŠ, Lesní mateřská škola LESINKA, Restaurace Na kovárně, pension Ochozzerie, Bistro - areál Svazarmu, Restaurace Verona, zájmové organizace Skaut, TJ.
Dostupnost IDS: autobus 201 - Židenice nádraží, Jedovnice; autobus č. 210 - Hostěnice, Bílovice nad Svitavou (žel. stanice).
Pomocí naší hypoteční kalkulačky si můžete udělat orientační představu o výši měsíčních splátek hypotéky. O vše ostatní se pak postaráme my ve spolupráci s našimi obchodními partnery.
121 057 Kč
* Odhadovaná měsíční splátka vychází z výše úvěru Kč s pevnou úrokovou sazbou % po celou dobu trvání úvěru.
Uživatel serveru RealityMIX.cz (dále jen „Server“) dostupného na internetové adrese (URL) https://www.realitymix.cz, který provozuje společnost DALTEN media s.r.o., se sídlem Na Harfě 916/9a, Praha 9, 190 00, IČO: 271 35 306 (dále jen „Správce“) jako provozovateli tohoto Serveru uděluje svůj výslovný souhlas v souladu s ustanovením § 5 zákona č. 101/2000 Sb. O ochraně osobních údajů a o změně některých zákonů, v platném znění (dále jen „zákon o ochraně osobních údajů“), se zpracováním uživatelem poskytnutých osobních údajů a dalších dat.
Uživatel poskytuje Správci osobní údaje v rozsahu: jméno, příjmení, e-mailová adresa, telefonický kontakt a další data, a to z důvodu projeveného zájmu o nemovitost, kde prostřednictvím služby Serveru Správce osloví Uživatel inzerenta uvedeného v detailu
nemovitosti - FIEDLER REALITY s.r.o. (IČ 25557441) se zájmem o jeho služby.
Uživatel tyto osobní údaje poskytuje dobrovolně a bere na vědomí, že součástí služeb Správce, které Správce Uživateli poskytuje, je vyhledání všech Uživateli vyhovujících (dle parametrů - cena, typ nemovitosti, lokalita atd.) nemovitostí. Správce za tímto účelem provozuje aplikace Hlídací pes a newsletter. Tyto služby je možné z každého zaslaného emailu odhlásit. Souhlas se zpracováním osobních údajů Uživatel poskytuje Správci na dobu neurčitou s tím, že svůj udělený souhlas může Uživatel kdykoliv na drese správce info@realitymix.cz odvolat. Správce garantuje Uživateli i další práva uvedené v ustanovení §11 a §21 zákoba č. 101/200 Sb. Ve znění pozdějších předpisů.
Více informací o zpracování údajů získáte zde (realitymix.cz/zasady-ochrany-osobnich-udaju)