Nabízím vám částečně zařízený byt 1+1 s lodžií (39m + 6m) s okny na jihovýchod ve 4. patře domu z roku 2004.
Jako velký bonus jsou sklep (1,5m), společná sušárna přímo na patře a kolárna v přízemí domu. To vše velmi zvyšuje úložné prostory.
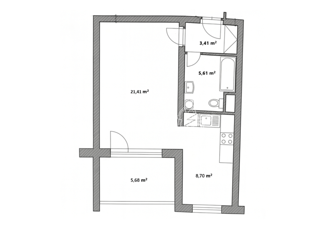
Z předsíně se skříní máte vstupy do koupelny s pračkou, nebo přímo do obývacího pokoje vybaveného postelí, sedačkou a menší obývací stěnou s televizí, ze kterého můžete pokračovat do kuchyně, kde máte k dispozici plně vybavenou kuchyňskou linku, lednici a stůl se židlemi. Dále můžete z obývacího pokoje vstoupit na prostornou lodžii, která je dispozičně optimální na posezení u kávy či vína.
Jedná se o velmi žádanou lokalitu s veškerou občanskou vybaveností a dobrou dopravní dostupností v centru města.
V docházkové vzdálenosti je autobusová zastávka PID s přímou linkou do Prahy (35 min).
Nájemné 13.500,- + poplatky 2.545,-, Kauce 16.100,-, poplatek za zpracování 7.000,- + energie se přepisují na podnájemníka.
V případě zájmu mě kontaktujte. Rád vám zodpovím otázky a případně domluvím prohlídku.
Cena:
13 500 Kč / (za měsíc)
Poznámka:
nájem + poplatky 16.100,-/měsíčně, kauce 16.100,- a elektřina a plyn se převádí na podnájemníka. Poplatek za zprostředkování 7.000,-
Datum k nastěhování:
08.12.2025
Dispozice/podlahová plocha:
1+1/47 m²
Číslo zakázky:
REALITYMIX-18116
Podrobné informace
Dispozice bytu:1+1
Číslo podlaží v domě:4
Počet podlaží objektu:6
Užitná plocha:39 m²
Celková podlahová plocha:47 m²
Druh objektu:smíšená
Stav objektu:velmi dobrý
Vlastnictví:osobní
Lodžie:6 m²
Sklep:2 m²
Vybaveno:ano
Umístění objektu:klidná část obce
Doprava:vlak, silnice, autobus
Elektřina:Elektro - 230 V
Voda:Voda - dálkový vodovod
Plyn:Plynovod
Odpad:Kanalizace
Energetická náročnost budovy:C - Úsporná
Energetický ukazatel podle vyhlášky:č. 264/2020 Sb.
Uživatel serveru RealityMIX.cz (dále jen „Server“) dostupného na internetové adrese (URL) https://www.realitymix.cz, který provozuje společnost DALTEN media s.r.o., se sídlem Na Harfě 916/9a, Praha 9, 190 00, IČO: 271 35 306 (dále jen „Správce“) jako provozovateli tohoto Serveru uděluje svůj výslovný souhlas v souladu s ustanovením § 5 zákona č. 101/2000 Sb. O ochraně osobních údajů a o změně některých zákonů, v platném znění (dále jen „zákon o ochraně osobních údajů“), se zpracováním uživatelem poskytnutých osobních údajů a dalších dat.
Uživatel poskytuje Správci osobní údaje v rozsahu: jméno, příjmení, e-mailová adresa, telefonický kontakt a další data, a to z důvodu projeveného zájmu o nemovitost, kde prostřednictvím služby Serveru Správce osloví Uživatel inzerenta uvedeného v detailu
nemovitosti - QARA s.r.o. (IČ 01740113) se zájmem o jeho služby. Tato společnost je součástí seskupení/sítě/franšízového modelu realitních kanceláří, jejich seznam můžete zobrazit kliknutím na tento odkaz.
QARA s.r.o. Ostrava (IČ 01740113) , QARA s.r.o. Brno (IČ 01740113) , QARA s.r.o. (IČ 01740113)
Uživatel tyto osobní údaje poskytuje dobrovolně a bere na vědomí, že součástí služeb Správce, které Správce Uživateli poskytuje, je vyhledání všech Uživateli vyhovujících (dle parametrů - cena, typ nemovitosti, lokalita atd.) nemovitostí. Správce za tímto účelem provozuje aplikace Hlídací pes a newsletter. Tyto služby je možné z každého zaslaného emailu odhlásit. Souhlas se zpracováním osobních údajů Uživatel poskytuje Správci na dobu neurčitou s tím, že svůj udělený souhlas může Uživatel kdykoliv na drese správce info@realitymix.cz odvolat. Správce garantuje Uživateli i další práva uvedené v ustanovení §11 a §21 zákoba č. 101/200 Sb. Ve znění pozdějších předpisů.
Více informací o zpracování údajů získáte zde (realitymix.cz/zasady-ochrany-osobnich-udaju)