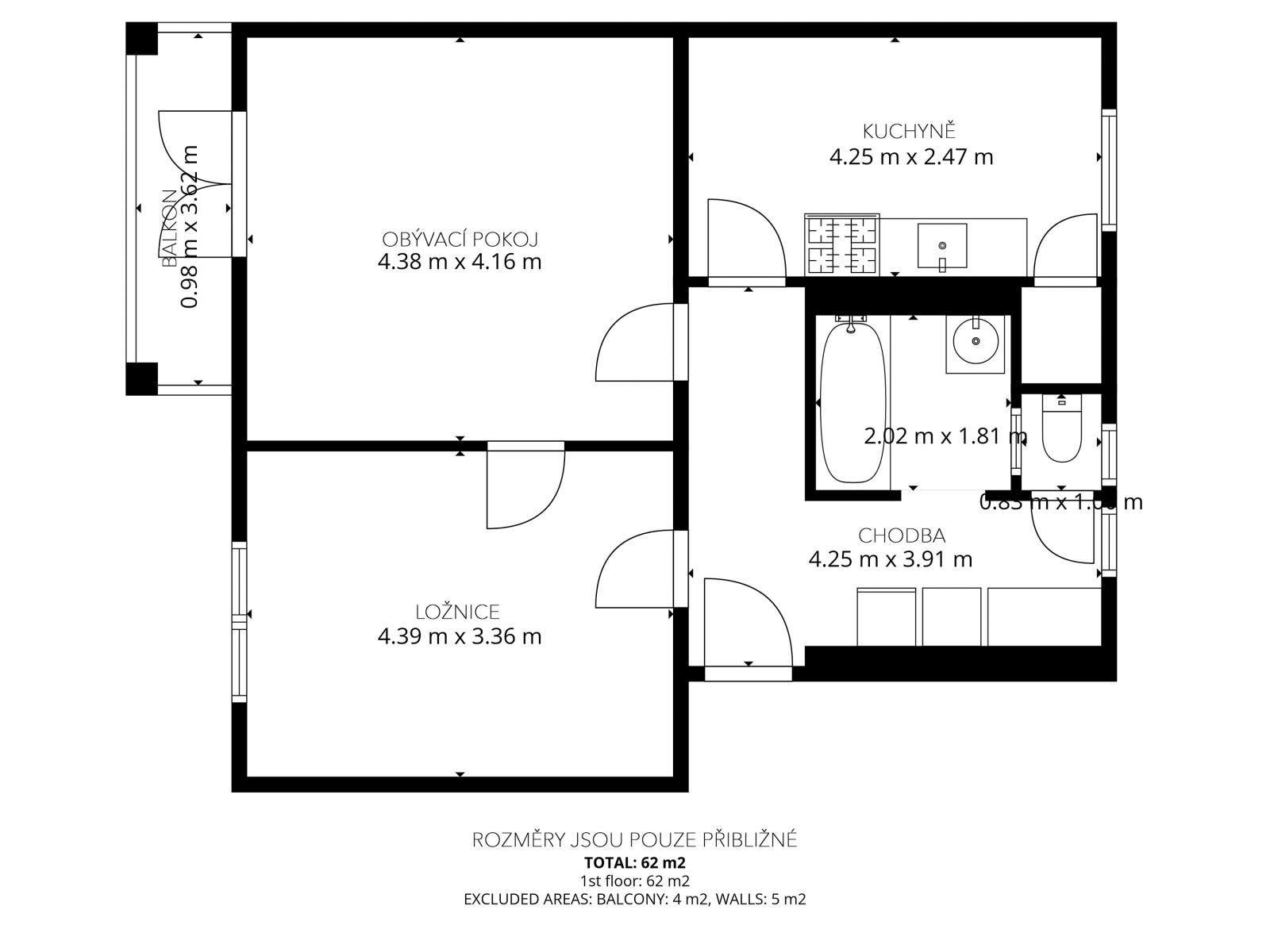
Prodej bytu 2+kk, 62 m2, Praha - Východ, Odolená Voda
Exkluzivně nabízíme byt 2+1 o výměře 61,5 m and sup2; v klidné části Odolené Vody (3. NP) s balkonem a třemi sklepními prostory. Dispozice bytu nabízí vzdušné a otevřené řešení ložnice je průchozí z obývacího pokoje i chodby, což vytváří příjemné propojení prostoru. Dále samostatná kuchyně, koupelna, samostatné WC a prostorná chodba. V bytě je zaveden plyn, vytápění je řešeno pomocí WAW a elektricky.
Byt je v původním stavu a ideální k rekonstrukci možnost upravit dispozice a provést změny dle vlastních představ nebo využít jako investice.
Dopravní dostupnost: pravidelné autobusové spoje (přibližně každých 30 minut) směr Kobylisy (přestup na metro); autem k metru Letňany cca 18 min. Občanská vybavenost v obci: mateřská škola, základní škola, střední škola a několik obchodů.
Upozornění: některé fotografie v inzerci jsou vizualizace znázorňující možný budoucí stav bytu po rekonstrukci.
V případě
zájmu o více informací nebo domluvení prohlídky neváhejte kontaktovat realitní
kancelář. Rádi Vám pomůžeme i se zajištěním financování hypotečním úvěrem.
Pomocí naší hypoteční kalkulačky si můžete udělat orientační představu o výši měsíčních splátek hypotéky. O vše ostatní se pak postaráme my ve spolupráci s našimi obchodními partnery.
20 608 Kč
* Odhadovaná měsíční splátka vychází z výše úvěru Kč s pevnou úrokovou sazbou % po celou dobu trvání úvěru.
Prodáváte nemovitost a potřebujete zjistit její reálnou hodnotu?
Uživatel serveru RealityMIX.cz (dále jen „Server“) dostupného na internetové adrese (URL) https://www.realitymix.cz, který provozuje společnost DALTEN media s.r.o., se sídlem Na Harfě 916/9a, Praha 9, 190 00, IČO: 271 35 306 (dále jen „Správce“) jako provozovateli tohoto Serveru uděluje svůj výslovný souhlas v souladu s ustanovením § 5 zákona č. 101/2000 Sb. O ochraně osobních údajů a o změně některých zákonů, v platném znění (dále jen „zákon o ochraně osobních údajů“), se zpracováním uživatelem poskytnutých osobních údajů a dalších dat.
Uživatel poskytuje Správci osobní údaje v rozsahu: jméno, příjmení, e-mailová adresa, telefonický kontakt a další data, a to z důvodu projeveného zájmu o nemovitost, kde prostřednictvím služby Serveru Správce osloví Uživatel inzerenta uvedeného v detailu
nemovitosti - MP reality servis s.r.o. (IČ 19625251) se zájmem o jeho služby.
Uživatel tyto osobní údaje poskytuje dobrovolně a bere na vědomí, že součástí služeb Správce, které Správce Uživateli poskytuje, je vyhledání všech Uživateli vyhovujících (dle parametrů - cena, typ nemovitosti, lokalita atd.) nemovitostí. Správce za tímto účelem provozuje aplikace Hlídací pes a newsletter. Tyto služby je možné z každého zaslaného emailu odhlásit. Souhlas se zpracováním osobních údajů Uživatel poskytuje Správci na dobu neurčitou s tím, že svůj udělený souhlas může Uživatel kdykoliv na drese správce info@realitymix.cz odvolat. Správce garantuje Uživateli i další práva uvedené v ustanovení §11 a §21 zákoba č. 101/200 Sb. Ve znění pozdějších předpisů.
Více informací o zpracování údajů získáte zde (realitymix.cz/zasady-ochrany-osobnich-udaju)