Prodej Velké a Malé Číhalky s pozemky 45.000m2 v Olešnici v Orlických horách
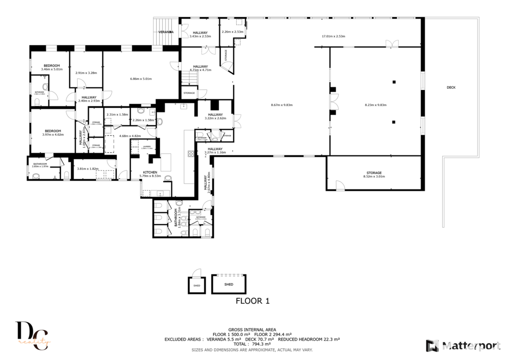
Nabízím k prodeji horskou chatu Velká Číhalka s pozemky 34.000m2 včetně Malé Číhalky nacházející na okraji lesa v Olešnici v Orlických horách, nedaleko Deštného. Velká Číhalka: Tento dvoupodlažní objekt ve stavu před kompletní rekonstrukci se zastavěnou plochu 514 m² a užitnou plochou 1400m2, představuje skvělé zázemí pro podnikání nejen v gastronomii. Celkový pozemek má rozlohu přibližně 31.000 m². Nemovitost je vybavena vším potřebným k provozu. Restaurace má kapacitu pro cca 100 hostů a je doplněna o více než 20 míst na venkovní terase s krásným výhledem na okolní krajinu. V rámci objektu se nachází plně vybavená kuchyně splňující veškeré standardy pro profesionální provoz. Kapacita ubytovacích lůžek sčítá cca 65 míst. V prvním patře se nachází 15 pokojů, v přízemí 2 apartmány s vlastním sociálním zařízením. Přívod vody je zajištěn ze studně a odpad je řešen čističkou odpadních vod pro celý objekt. Areál je obklopen lesy a krásnou horskou krajinou, která ji přidává na atraktivitě místa. Okolí nabízí v létě možnosti pro turistiku, výlety na kole do okolí což zvyšuje návštěvnost restaurace a v zimě ve vzdálenosti 1km můžete navštívit lyžařský areál. Malá Číhalka(naproti Velké Číhalky): Tento Depandance s pozemky 11.000m2 je vybaven 6 pokoji. K tomuto objektu máme vyhotovenou projektovou dokumentaci pro výstavbu nových apartmánů, kterou vám předložíme na prohlídce nemovitosti. Doprava k místu je bezproblémová. V současné době je objekt pronajímán velmi zodpovědným nájemníkem. Toto místo představuje nejen ideální prostor pro provoz restaurace, ale i pro vybudování nových ubytovacích kapacit, což může přitáhnout rekreanty hledající klid a pohodu v přírodě a zároveň výhodnou investici pro výstavbu nových apartmánů v této lokalitě
V případě zájmu o prohlídku mě neváhejte kontaktovat.
Uživatel serveru RealityMIX.cz (dále jen „Server“) dostupného na internetové adrese (URL) https://www.realitymix.cz, který provozuje společnost DALTEN media s.r.o., se sídlem Na Harfě 916/9a, Praha 9, 190 00, IČO: 271 35 306 (dále jen „Správce“) jako provozovateli tohoto Serveru uděluje svůj výslovný souhlas v souladu s ustanovením § 5 zákona č. 101/2000 Sb. O ochraně osobních údajů a o změně některých zákonů, v platném znění (dále jen „zákon o ochraně osobních údajů“), se zpracováním uživatelem poskytnutých osobních údajů a dalších dat.
Uživatel poskytuje Správci osobní údaje v rozsahu: jméno, příjmení, e-mailová adresa, telefonický kontakt a další data, a to z důvodu projeveného zájmu o nemovitost, kde prostřednictvím služby Serveru Správce osloví Uživatel inzerenta uvedeného v detailu
nemovitosti - eDO reality, s.r.o. (IČ 07268602) se zájmem o jeho služby.
Uživatel tyto osobní údaje poskytuje dobrovolně a bere na vědomí, že součástí služeb Správce, které Správce Uživateli poskytuje, je vyhledání všech Uživateli vyhovujících (dle parametrů - cena, typ nemovitosti, lokalita atd.) nemovitostí. Správce za tímto účelem provozuje aplikace Hlídací pes a newsletter. Tyto služby je možné z každého zaslaného emailu odhlásit. Souhlas se zpracováním osobních údajů Uživatel poskytuje Správci na dobu neurčitou s tím, že svůj udělený souhlas může Uživatel kdykoliv na drese správce info@realitymix.cz odvolat. Správce garantuje Uživateli i další práva uvedené v ustanovení §11 a §21 zákoba č. 101/200 Sb. Ve znění pozdějších předpisů.
Více informací o zpracování údajů získáte zde (realitymix.cz/zasady-ochrany-osobnich-udaju)