Jen málokdy se objeví příležitost bydlet v místě, kde se snoubí noblesa staré Olomouce s pohodlím moderního života. Tento výjimečný byt o rozloze 177 m² v ulici Nešverova v historickém jádru města je přesně takovou příležitostí.
Byt vznikl spojením dvou jednotek a nabízí tak mimořádně velkorysé prostory. Už při vstupu vás okouzlí vysoké stropy a dvoukřídlé dveře, které vyprávějí příběh domu s dlouhou historií. Nadstandardní výměra pokojů působí vzdušně a reprezentativně.
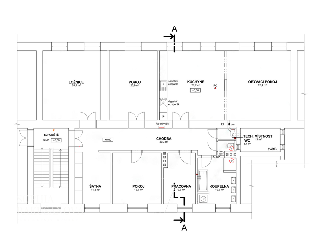
Dispozice bytu je navržena s ohledem na potřeby početné rodiny. Dlouhá chodba prochází středem celého bytu a po obou jejích stranách jsou dveře do jednotlivých pokojů. Vlevo se nachází prostorná ložnice (28,1m²), za ní dětský pokoj (20,9m²), kuchyně (28,7m²) s obývacím pokojem (28,4m²), vpravo poté šatna (11,8m²), dětský pokoj (15,7m²), pracovna (9,8m²) a koupelna (10,8m²). Naproti vstupním dveřím, na konci chodby, se nachází samostatná toaleta a technická místnost.
Historické prvky bytu doplňují moderní technologie: podlahové vytápění pro pocit tepla a pohodlí, centrální vysavač pro snadnou údržbu a vstupní dveře v nejvyšší bezpečnostní třídě, které zajistí klidný spánek.
Ulice Nešverova je tichou součástí historického centra, jen pár kroků od Dolního a Horního náměstí se Sloupem Nejsvětější Trojice, kavárnami, galeriemi i kulturním životem. Na dosah máte i Smetanovy a Čechovy sady, které vybízejí k procházkám, sportu i rodinným odpoledním piknikům.
Parcela pro výstavbu obytného domu byla zakoupena od města roku 1903. Náčrty stavby vznikly ve Vídni na ústředním řádovém ředitelství a následně byl stavebním úřadem v Olomouci zpracován prováděcí projekt (Karl Panitschek, Carl Liwanètz a Franz Bernkopf). Na stavbě pracovalo 320 dělníků. Hmotově neobarokní čtyřkřídlá budova s manýristickými detaily a tradičními kamennými portály s nádvořím, je pozdní obdobou vídeňského typu Wohnof.
Tento byt není jen adresou. Je to domov, který propojuje ducha historie s komfortem současnosti, prostor, kde každý detail podtrhuje noblesu a kde se rodinný život odehrává v kulisách staré Olomouce. Pokud hledáte výjimečné bydlení, které vám nabídne víc než jen čtyři stěny, Nešverova 1 je tou správnou volbou.
PENB nebyl dodán, proto je uvedena energetická třída G.
Pro více informací a sjednání prohlídky mne kontaktujte.
Pomocí naší hypoteční kalkulačky si můžete udělat orientační představu o výši měsíčních splátek hypotéky. O vše ostatní se pak postaráme my ve spolupráci s našimi obchodními partnery.
50 609 Kč
* Odhadovaná měsíční splátka vychází z výše úvěru Kč s pevnou úrokovou sazbou % po celou dobu trvání úvěru.
Prodáváte nemovitost a potřebujete zjistit její reálnou hodnotu?
Uživatel serveru RealityMIX.cz (dále jen „Server“) dostupného na internetové adrese (URL) https://www.realitymix.cz, který provozuje společnost DALTEN media s.r.o., se sídlem Na Harfě 916/9a, Praha 9, 190 00, IČO: 271 35 306 (dále jen „Správce“) jako provozovateli tohoto Serveru uděluje svůj výslovný souhlas v souladu s ustanovením § 5 zákona č. 101/2000 Sb. O ochraně osobních údajů a o změně některých zákonů, v platném znění (dále jen „zákon o ochraně osobních údajů“), se zpracováním uživatelem poskytnutých osobních údajů a dalších dat.
Uživatel poskytuje Správci osobní údaje v rozsahu: jméno, příjmení, e-mailová adresa, telefonický kontakt a další data, a to z důvodu projeveného zájmu o nemovitost, kde prostřednictvím služby Serveru Správce osloví Uživatel inzerenta uvedeného v detailu
nemovitosti - Sophia Rakušanová (IČ 21047103) se zájmem o jeho služby.
Uživatel tyto osobní údaje poskytuje dobrovolně a bere na vědomí, že součástí služeb Správce, které Správce Uživateli poskytuje, je vyhledání všech Uživateli vyhovujících (dle parametrů - cena, typ nemovitosti, lokalita atd.) nemovitostí. Správce za tímto účelem provozuje aplikace Hlídací pes a newsletter. Tyto služby je možné z každého zaslaného emailu odhlásit. Souhlas se zpracováním osobních údajů Uživatel poskytuje Správci na dobu neurčitou s tím, že svůj udělený souhlas může Uživatel kdykoliv na drese správce info@realitymix.cz odvolat. Správce garantuje Uživateli i další práva uvedené v ustanovení §11 a §21 zákoba č. 101/200 Sb. Ve znění pozdějších předpisů.
Více informací o zpracování údajů získáte zde (realitymix.cz/zasady-ochrany-osobnich-udaju)